Найти в Дзене
ЭТО ВАШ ИНТЕРЬЕР

Показываю, как мы с мужем купили старую квартиру и самостоятельно сделали ремонт всего за 4 месяца

Дорогие подписчики! В скором времени я полностью перейду на свой новый канал, где буду так же освещать различного рода переделки. Этот канал станет не активным, поэтому буду рад вашей подписке на своем новом канале! Героиня сегодняшней статьи вместе со своим мужем давно искала новую квартиру и наконец-то нашла в сталинском доме 1957 года постройки. Квартира была в плохом состоянии поэтому ремонт начался незамедлительно. Единственное, что осложняло ремонтные работы, так это локдаун (переделка выпала на середину пандемии). Из-за ограничительных мер было очень затруднительно с покупкой материалов, строителями и тд. Проект Кухня-гостиная В квартире не было несущих перегородок, поэтому новые владельцы решили сделать перепланировку. Кухню и гостиную было решено объединить в одно большое пространство. Дизайн будущего интерьера хозяйка придумывала сама. Линейный кухонный гарнитур был сделан на заказ и в длину получился 3 метра. Фасады выбрали в классическом белом цвете. Что касается наполнен
Оглавление

Дорогие подписчики! В скором времени я полностью перейду на свой новый канал, где буду так же освещать различного рода переделки. Этот канал станет не активным, поэтому буду рад вашей подписке на своем новом канале!

Героиня сегодняшней статьи вместе со своим мужем давно искала новую квартиру и наконец-то нашла в сталинском доме 1957 года постройки. Квартира была в плохом состоянии поэтому ремонт начался незамедлительно.

Единственное, что осложняло ремонтные работы, так это локдаун (переделка выпала на середину пандемии). Из-за ограничительных мер было очень затруднительно с покупкой материалов, строителями и тд.

Проект

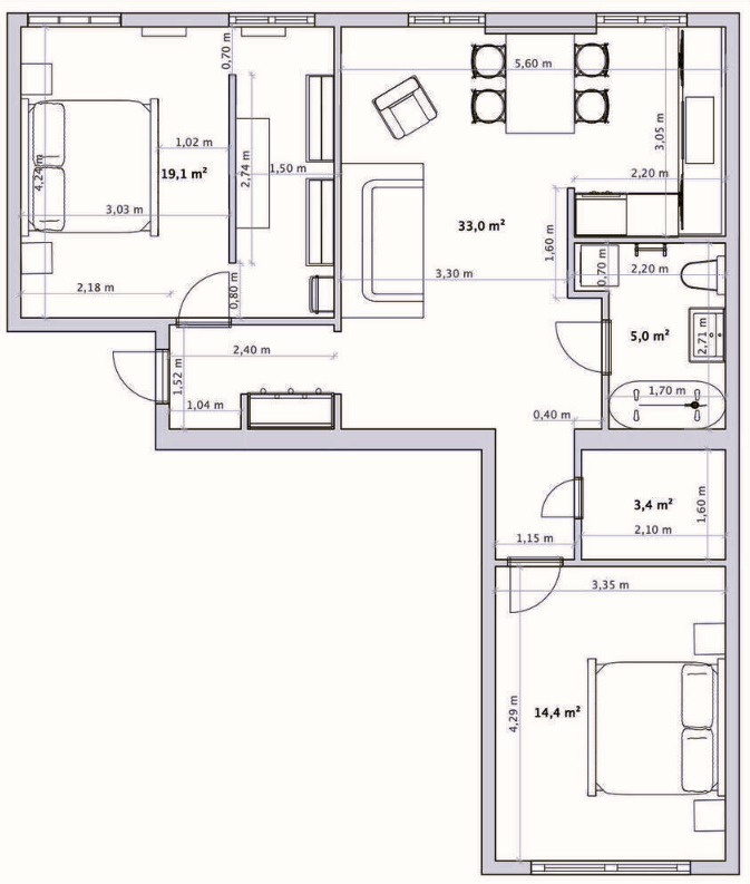
  • Местоположение: г. Москва
  • Площадь квартиры: 78 кв. метров
  • Владельцы: семейная пара
  • Бюджет: 2,3 млн рублей
-2

Кухня-гостиная

В квартире не было несущих перегородок, поэтому новые владельцы решили сделать перепланировку. Кухню и гостиную было решено объединить в одно большое пространство. Дизайн будущего интерьера хозяйка придумывала сама.

-3

Линейный кухонный гарнитур был сделан на заказ и в длину получился 3 метра. Фасады выбрали в классическом белом цвете. Что касается наполнения, то здесь есть всё необходимое для любой хозяйки, в том числе измельчитель бытовых отходов в раковине. Холодильник выбрали отдельно стоящий.

На стыке двух функциональных зон располагается столовая зона. Обеденный стол решили сделать полубарным, чтобы он был одной высотой с рабочей столешницей (так выглядит более гармоничней).

-5

В противоположной стороне от кухни была организована зона гостиной. Здесь находится большой диван, яркое кресло и места для хранения.

Спальня

Часть хозяйской спальни было решено отдать под полноценную гардеробную. Её зонировали от комнаты перегородкой, которую можно обойти с двух сторон: с одной стороны гардероб для мужа, с другой для хозяйки. Напротив этой перегородки располагается большая кровать с мягким изголовьем, которое выполнено в насыщенном красном цвете.

Детская

Изначально, это комната планировалась, как гостевая. Потом муж хозяйки хотел организовать здесь зону отдыха с бильярдом и игровой приставкой. Но по итогу, хозяйка сразу обозначила, что здесь будет детская комната. Теперь здесь появилось всё необходимое для любого ребенка: спальное место, детский столик, игрушки и места для хранения.

Ванная комната

В отделке ванной комнаты использовали широкоформатный керамогранит с имитацией мрамора и краску двух цветов: белую и серо-зеленую. В результате перепланировки здесь сделали нишу, в которой расположили сушильную и стиральную машины.

Если вам нравятся ремонты разных квартир, то добро пожаловать на мой новый канал, где вы увидите еще больше интересных переделок! Вот несколько из них, можете сами оценить:

«О такой квартире мечтает каждый» — пенсионеры переехали в другой город, купили квартиру и сделали потрясающий ремонт
НЕтипичный ремонт28 мая 2024
«Рассказываю, как мне досталась "убитая" сталинка без ремонта» — хозяйка полностью преобразила свою старую квартиру. Сравни фото ДО и ПОСЛЕ
НЕтипичный ремонт27 мая 2024
«Крошечная, но зато своя» — женщина купила маленькую квартиру площадью 19 м² и сделала классный ремонт. Показываю фото ДО и ПОСЛЕ
НЕтипичный ремонт26 мая 2024

Если вам понравилась статья, то не забудьте поставить лайк и подписаться, чтобы не пропустить новый материал!

Так же пишите в комментариях, что вам понравилось в этом проекте, а что вызывает сомнения.