Найти в Дзене
DIVAN.RU

Модная студия 35 кв.м с антресолью и видом на Петроградку

Сильная сторона этой квартиры — высокие потолки. Здесь возвели второй этаж, увеличив функциональную площадь на 14 кв.м. Четыре спальных места, хозблок и гардеробная — заглянем в гости. О квартире: г. Санкт-Петербург, студия 35 кв.м в монолитном доме
Высота потолков: 4 м
Автор проекта: дизайнер Наталия Лукьянчикова, автор фото Катерина Литке
Бюджет проекта: 5,5 млн рублей
Реализация: 2023 год Дом, о котором пойдет речь, построен в некогда промышленном районе Санкт-Петербурга на месте чулочно-носочной фабрики Керстена. Квартира на момент покупки была с черновой отделкой — здесь будет жить дочка владельцев, а до ее поступления в институт объект планируют сдавать. Поэтому перед дизайнером стояла нелегкая интерьерная задача: пространство идеально должно подходить и для будущей студентки, и для сегодняшних потенциальных арендаторов. Четырехметровые потолки позволили сконструировать антресольный этаж. На первом уровне организовали кухню-гостиную и гардеробную, а на втором — спальню и рабочий
Оглавление

Сильная сторона этой квартиры — высокие потолки. Здесь возвели второй этаж, увеличив функциональную площадь на 14 кв.м. Четыре спальных места, хозблок и гардеробная — заглянем в гости.

Проект дизайнера Натальи Лукьянчиковой, автор фото: Катерина Литке
Проект дизайнера Натальи Лукьянчиковой, автор фото: Катерина Литке

О квартире: г. Санкт-Петербург, студия 35 кв.м в монолитном доме
Высота потолков: 4 м
Автор проекта: дизайнер Наталия Лукьянчикова, автор фото Катерина Литке
Бюджет проекта: 5,5 млн рублей
Реализация: 2023 год

Дом, о котором пойдет речь, построен в некогда промышленном районе Санкт-Петербурга на месте чулочно-носочной фабрики Керстена. Квартира на момент покупки была с черновой отделкой — здесь будет жить дочка владельцев, а до ее поступления в институт объект планируют сдавать. Поэтому перед дизайнером стояла нелегкая интерьерная задача: пространство идеально должно подходить и для будущей студентки, и для сегодняшних потенциальных арендаторов.

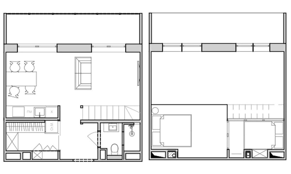
Четырехметровые потолки позволили сконструировать антресольный этаж. На первом уровне организовали кухню-гостиную и гардеробную, а на втором — спальню и рабочий кабинет, который на данный момент выполняет функцию дополнительного спального места.

План первого и второго яруса
План первого и второго яруса

Кухня-гостиная

Трудно поверить, что фактическая площадь студии всего 35 метров: четырехметровые потолки и большие окна в пол наполняют помещение «воздухом». Так квартира несколько лет будет сдаваться в аренду, в отделке использовали износостойкие материалы: на пол уложили керамогранит, а стены покрыли антивандальной краской.

После возведения антресоли, на первом этаже образовалась ниша, в которую вписали гарнитур. Кухню укомплектовали по максимуму: установили посудомоечную машину, духовой шкаф с функцией СВЧ и холодильник. Обратите внимание на единственный верхний шкафчик: его фасады покрыли грифельной краской, а внутри спрятали вытяжку.

Столовую зону освещают подвесы в биофильном стиле: в светильниках есть специальные углубления для цветов.

Диван в гостиную искали небольшой, чтобы не мешал проходу в кухню, и нейтральный, чтобы не затмевать декор. Вдобавок, он должен был раскладываться — спальные места в арендном жилье в приоритете. Минималистичная модель Кускен от divan.ru удовлетворила все запросы: диван имеет механизм трансформации, а его ширина в сложенном виде всего 145 см.

В кадре: диван Кускен, divan.ru от 36 990₽* >>

-6

☀️ Этот диван сейчас можно купить с выгодой 27 000₽! Выбирайте мебель и аксессуары для дома со скидками до 60% на распродаже в divan.ru

Скандинавский дизайн предполагает обилие предметов из натуральных материалов. Так в ТВ-зоне появилась тумба Рошаль от divan.ru: фасады с плетеными вставками из ротанга реализуют биофильную задумку.

В кадре: тв-тумба Рошаль, divan.ru от 24 990₽* >>

Терраса

Одно из преимуществ квартиры — открытая терраса площадью 10 кв.м. Здесь обустроили чилаут зону для вечерних посиделок, чтобы любоваться видом на Петроградку.

Спальня

На антресольным этаже организовали две спальни. В главной поставили кровать Дарлайн от divan.ru. Модель в лаконичном дизайне не имеет изголовья, поэтому акцентную стену смело декорировали панно в технике макраме.

В кадре: кровать Дарлайн, divan.ru от 21 990₽* >>

Помещение напротив планировалось под кабинет. Однако вместо рабочего стола здесь поставили еще одну кровать, так как квартира на данный момент предназначена для посуточной аренды.

Обратите внимание на шкаф справа от кровати. За закрытыми панелями скрываются вовсе не полки, а вентиляционный канал и короб с сантехническими трубами.

Прихожая

Гардеробную спрятали за дверями-купе. Внутреннее наполнение изготовлено на заказ, чтобы продуктивно использовать каждый сантиметр пространства. Интересно обустроили постирочный уголок: хозблок находится на торце гардеробной, но доступ к нему осуществляется из прихожей.

Санузел

Строгое минималистичное оформление санузла разбавляют теплые подтоны дерева и неожиданный принт обоев за раковиной. Сантехнические коммуникации закрывает не ревизионный люк, а грифельная доска — черные детали особенно выразительно смотрятся на фоне керамогранита под бетон.

Оцените интерьер в комментариях, а если материал понравился — не забудьте поставить лайк.

🖤divan.ru — не только блог про интерьеры, но и производитель доступной дизайнерской мебели. Ищите новые идеи и переходите на сайт, чтобы воплотить их в жизнь.

*Цены актуальны на момент публикации статьи