Добавить в корзинуПозвонить
Найти в Дзене
Заметки дизайнера

Почему важно думать о планировке еще на этапе покупки квартиры

У меня есть немного странное хобби: время от времени я просиживаю на сайтах поиска недвижимости и смотрю, какую квартиру я бы купила. Это не значит, что я собираюсь сейчас менять жилье, мне просто нравится этот процесс😅 На что вы обращаете внимание, когда ищете жилье? Расположение? Инфраструктура? Отзывы жильцов района? Я смотрю на планировки:) И не так уж часто я вижу действительно удачные планировки, в которых мне не хочется ничего изменить. А это важно! Далеко не каждую планировку можно исправить, да и не каждую перепланировку можно согласовать. Не говоря уже о том, что согласование требует времени и денег. Мне искренне непонятно, почему так много вокруг совершенно непродуманных планировок. В них же кому-то жить! Порой кажется, что застройщикам важнее внешний вид дома, чем его наполнение. Согласитесь, сейчас очень много необычных, интересных и внешне очень красивых построек. Однако, когда я вижу, к примеру, очередное круглое здание, мне становится плохо от мысли, какие же там плани

У меня есть немного странное хобби: время от времени я просиживаю на сайтах поиска недвижимости и смотрю, какую квартиру я бы купила. Это не значит, что я собираюсь сейчас менять жилье, мне просто нравится этот процесс😅

На что вы обращаете внимание, когда ищете жилье? Расположение? Инфраструктура? Отзывы жильцов района? Я смотрю на планировки:)

И не так уж часто я вижу действительно удачные планировки, в которых мне не хочется ничего изменить. А это важно! Далеко не каждую планировку можно исправить, да и не каждую перепланировку можно согласовать. Не говоря уже о том, что согласование требует времени и денег. Мне искренне непонятно, почему так много вокруг совершенно непродуманных планировок. В них же кому-то жить! Порой кажется, что застройщикам важнее внешний вид дома, чем его наполнение. Согласитесь, сейчас очень много необычных, интересных и внешне очень красивых построек. Однако, когда я вижу, к примеру, очередное круглое здание, мне становится плохо от мысли, какие же там планировки😅

Взято с сайта по продаже недвижимости. Планировка уже была, видимо вариант от отдела продаж:)
Взято с сайта по продаже недвижимости. Планировка уже была, видимо вариант от отдела продаж:)

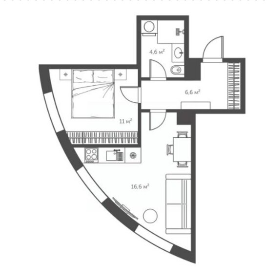
Вот пример такой квартиры. Не сомневаюсь, что внешне это выглядит прекрасно. А теперь от лирики к реальности:

  • Вдоль такой стены ничего толком не поставишь (отдельно смешит изогнутый телевизор, направленный куда-то в коридор).
  • Хотите повесить шторы на эти великолепные окна? Поздравляю, радиусный карниз (причем, скорее всего на заказ) стоит дороже обычного. С плинтусом так же, хотя сейчас уже есть гибкие варианты.
  • Там, где предполагается диван, мы видим странный острый угол. Туда не пройдешь, ничего толком не поставишь, приходится отступать какое-то расстояние. Т.е. теряем полезное пространство.
  • В спальне на плане показан шкаф с нестандартным скошенным углом. Это мебель на заказ, причем ещё нужно будет посидеть и продумать наполнение такого шкафа, чтобы угол не был совсем уж бесполезным. Та же история с кухонным гарнитуром. Не говоря уже о том, что для него почти не остаётся места. Вариант для тех, кто не готовит, видимо:)

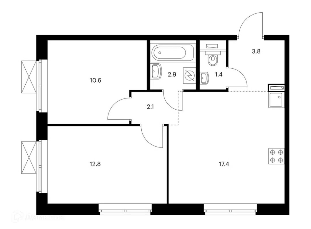
Ну ладно, скажете вы, нашла какое-то безумие одно на сотню и разбирает тут сидит. Не будем мы покупать такую квартиру, на рынке полно квартир с прямыми углами! Хорошо, давайте посмотрим такую:)

Пример с сайта по продаже недвижимости
Пример с сайта по продаже недвижимости

На первый взгляд неплохой вариант для семьи с ребенком или когда человеку нужен отдельный кабинет. Но тут есть небольшой подвох: если вы хотите устроить спальню в большей комнате (той, что 12.8м), вы столкнетесь с проблемой нехватки стен:) Обратите внимание: тут два окна и остается не так много места, чтобы разместить кровать, какой-то шкаф, возможно косметический столик с зеркалом и при этом свободно передвигаться по комнате.

Таких нюансов может быть довольно много: узкие комнаты, длинные бесполезные коридоры, маленькие санузлы, недостаточно места для нормальной кухни и т.д.

Далеко не каждый человек может сходу прикинуть реальные размеры мебели относительно планировки, из-за чего может столкнуться со сложной головоломкой при планировании. Кстати, многие дизайнеры предлагают в том числе услугу консультации при выборе квартиры, чтобы уберечь от дальнейшей головной боли "впихнуть невпихуемое":)

А вы прикидываете планировку при покупке квартиры?