Добавить в корзинуПозвонить
Найти в Дзене

ЖК 1147. Ремонт в квартире по дизайн - проекту.

Сегодня хотим рассказать про необычный проект, главным отделочным материалом которого стало пробковое покрытие! Заказчики пришли к нам с запросом современного минималистичного интерьера, но главным фокусом их внимания стали природные элементы: Именно на эти материалы мы сделали акцент и применили их в интерьере! Вводные данные, с которыми мы работали: Какие задачи предстояло решить? По планировке был запрос на большую вместительную кухню, совмещенную с гостиной. Отдельный мастер блок (спальня, гардероб и су), и обязательное наличие кабинета - заказчица писательница и чаще всего работает из дома, проводит конференции в том числе. Кабинет удалось выделить в мастер блоке . Также было важно предусмотреть две раздельные равноценные детские - для сына и дочери. По су и хоз помещением обязательно учесть: су детский, су при входе гостевой (без душа), отдельная постирочная зона. Какое планировочное решение мы предложили с учетом всех требований? Мы соблюли все пожелания заказчиков, и соблюли ч

Сегодня хотим рассказать про необычный проект, главным отделочным материалом которого стало пробковое покрытие!

Заказчики пришли к нам с запросом современного минималистичного интерьера, но главным фокусом их внимания стали природные элементы:

  • пробка
  • дерево
  • камень

Именно на эти материалы мы сделали акцент и применили их в интерьере!

Вводные данные, с которыми мы работали:

  • площадь квартиры составляет 120 м²
  • высота потолка черновая 3 м, чистовая 2,9 м
  • монолитный простенок поперек всей квартиры
Обмерный план
Обмерный план

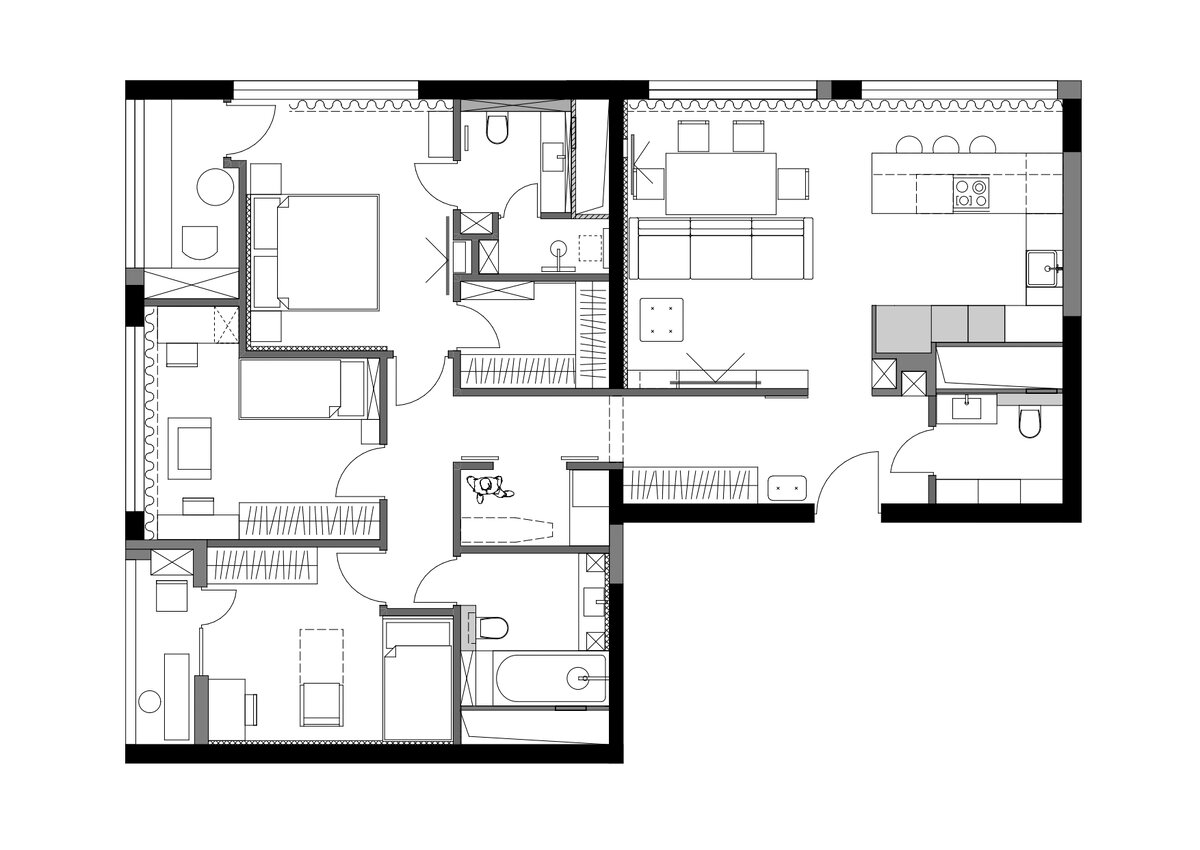
Какие задачи предстояло решить?

По планировке был запрос на большую вместительную кухню, совмещенную с гостиной. Отдельный мастер блок (спальня, гардероб и су), и обязательное наличие кабинета - заказчица писательница и чаще всего работает из дома, проводит конференции в том числе. Кабинет удалось выделить в мастер блоке . Также было важно предусмотреть две раздельные равноценные детские - для сына и дочери. По су и хоз помещением обязательно учесть: су детский, су при входе гостевой (без душа), отдельная постирочная зона.

Какое планировочное решение мы предложили с учетом всех требований?

Мы соблюли все пожелания заказчиков, и соблюли четкое зонирование: входная зона с вместительным хранением, а также местом для пуфа и зеркала. Не забыли про отдельный гостевой санузел - он расположился при входе. Далее просторная гостиная, которая перетекает в столовую и кухню. Мастер блок полностью изолирован от основной зоны. Две равноценные детские для дочери и сына, и их отельный санузел. Также удалось выделить место под отдельное помещение для хоз. блока!

Итоговое планировочное решение
Итоговое планировочное решение

Кухня - гостиная

— зона гостиной и столовой (20 м²)

— кухня (13,5 м²)

Нам удалось разместить большой диван, обеденный стол и п-образную кухню с полубарным ответвлением.

Стилистические решения

Как упоминалось ранее, акцент был на природные материалы, по всей квартире на полу применена пробка, в том числе в гостевом су. Также пробка заведена на стену за ТВ в гостиной. Другая стена - хаотично расположенный крупноформатный керамогранит со встроенными световыми полосами, переходящими на потолок. Основной объем выполнен штукатуркой песочного тона.

Фотографии гостиной и столовой зоны
Фотографии гостиной и столовой зоны

В интерьере преобладают серые, песочные тона и дерево - все натуральные оттенки. Дерево фасадов кухни перекликаются с деревом обеденного стола. Также столу предает индивидуальность вставка смолы по центру, выполненная на заказ.

-5

Кухню украшает фартук, перетекающий в столешницу, который выполнен из кварцевого агломерата. Уют создают разные световые сценарии: точечный свет, подвесные светильники и много подсветок (карнизы штор, цоколь кухни, подсвеченные стеклянные полки кухни). Еще один интересный привлекающий внимание световой элемент - светильники из бетона над баром.

Классные решения применены и по технике, на кухне удалось разместить большой глубокий холодильник нестандартных размеров, а все ТВ квартиры превращаются в картины, сам блок от этих тв расположен в специально продуманных во время проекта местах, соединение происходит без проводов. Также на кухне вы не найдете вытяжку, потому что она встроена в варочную поверхность и не нагромождает визуал кухни.

Мастер блок

— зона с кроватью (14 м²)

— санузел (5 м²)

— гардеробная (4,5 м²)

— также нам удалось выделить зону небольшого кабинета за изголовьем кровати (5 м²)

Кровать выделена белой пробкой и объемной конструкцией из гипсокартона с подсветкой по периметру. Основная отделка стен - матовая краска. Напротив кровати расположился тот же современный телевизор, напоминающий картину, и два симметричных входа - су и гардеробная.

Помещения получились небольшие по площади, но очень функциональные! В каждой из зон много хранения, а в кабинете удалось организовать сидячее место под окном.

Мебель мастер блока также выполнена на заказ из натурального дерева с вставками из матовой смолы! Выглядит очень эффектно, правда?

Детские

— детская дочери (13 м²)

— детская сына (12 м²)

Равноценные комнаты для детей были обязательным условием! И все мы понимаем почему, конечно, чтобы никто не обиделся и не был обделен!

В каждой комнате есть спальное и рабочее место, а кресла предусматривают гостевое размещение для друзей!

В детской дочери организовали уютное место в нише под будуарный столик с круглым зеркалом. А в детской сына в нише разместилась кровать - это придает камерности. Дети очень любят пространства в нишах! Ниша для сна выделена светом с помощью встроенного профиля по периметру, такой прием дополнительно зонирует вечерним освещением зону с кроватью.

Санузлы и хоз. блок

— детский су (5 м²)

Необычная отделка стены при входе натуральным камнем (кажется песчаник)

Фотографии детского санузла
Фотографии детского санузла

— гостевой су (4 м²)

В качестве напольного покрытия остановились на пробке. Также предусмотрели большое вместительное хоз. хранение по одной из стен, при этом есть и открытые полки - для размещения необходимых средств гигиены для гостей.

Фотографии гостевого санузла
Фотографии гостевого санузла

Прихожую и коридор освещают встроенные линии на потолке вдоль пространства, а также отвечающими элементами послужили вертикальные бра(в качестве вечернего света).

Фотографии коридора
Фотографии коридора

— постирочная (3 м²)

Разместилась за откатными дверьми в тон мебели прихожей. В этой зоне разместились стиральная и сушильная машинки (в колонке), откидная гладильная доска и корзины для белья.

Немного технической части

По вентиляции приток воздуха осуществляется под потолком с помощью канальной системы, таким образом свежий воздух подается в каждую комнату. Визуально читаются только встроенные настенные решетки.

В качестве охлаждения воздуха - сплит система (настенные кондиционеры) в каждой комнате.

Также на фотографиях вы можете увидеть домашнего питомца, который идеально вписался в интерьер, а может и послужил вдохновением! Для котика мы предусмотрели место для домика, спрятали зону лотков и мисок - чтобы не создавать в интерьере визуальный шум.

Поделитесь своим впечатлением об интерьере! Какие задумки понравились больше всего?

За стильными интерьерами - к нам! Оставляйте заявку на сайте для расчета стоимости дизайн-проекта и реализации.