Найти в Дзене
Берег Песочной

Двухэтажный дом в стиле Барнхаус

⭐ Барнхаус ПБ-130 Просторный дом для семьи из 4-5 человек с простой геометрией, большими окнами в пол и террасой – всё это проект дома ПБ-130 в стиле барнхаус. Планировкой дома предусмотрено деление первого этажа на две части: слева от холла находится кухня-гостиная с выходом на террасу, а справа: ◼ спальня; ◼ техническое помещение; ◼ душевая. На втором этаже размещены: ◼ три спальни (одна с санузлом); ◼ общий санузел; ◼ холл. Дом возводится в комплектации «Теплый контур»: ◼ фундамент; ◼ коробка дома из панелей БЭНПАН+; ◼ утепленная кровля; ◼ отделка фасада; ◼ оконные блоки с ламинацией; ◼ металлический каркас лестницы; ◼ входная утепленная дверь с терморазрывом. Во время строительства в дом заводятся: ◼ водопровод; ◼ канализация; ◼ электричество; ◼ интернет. Газопровод проходит по границе участка. Строительство ведётся на участке 5,02 сотки и уже сейчас, на этапе возведения стен, дом ПБ-130 доступен к покупке по максимально выгодной цене. 💲Покупка доступна в ипотеку, с использованием

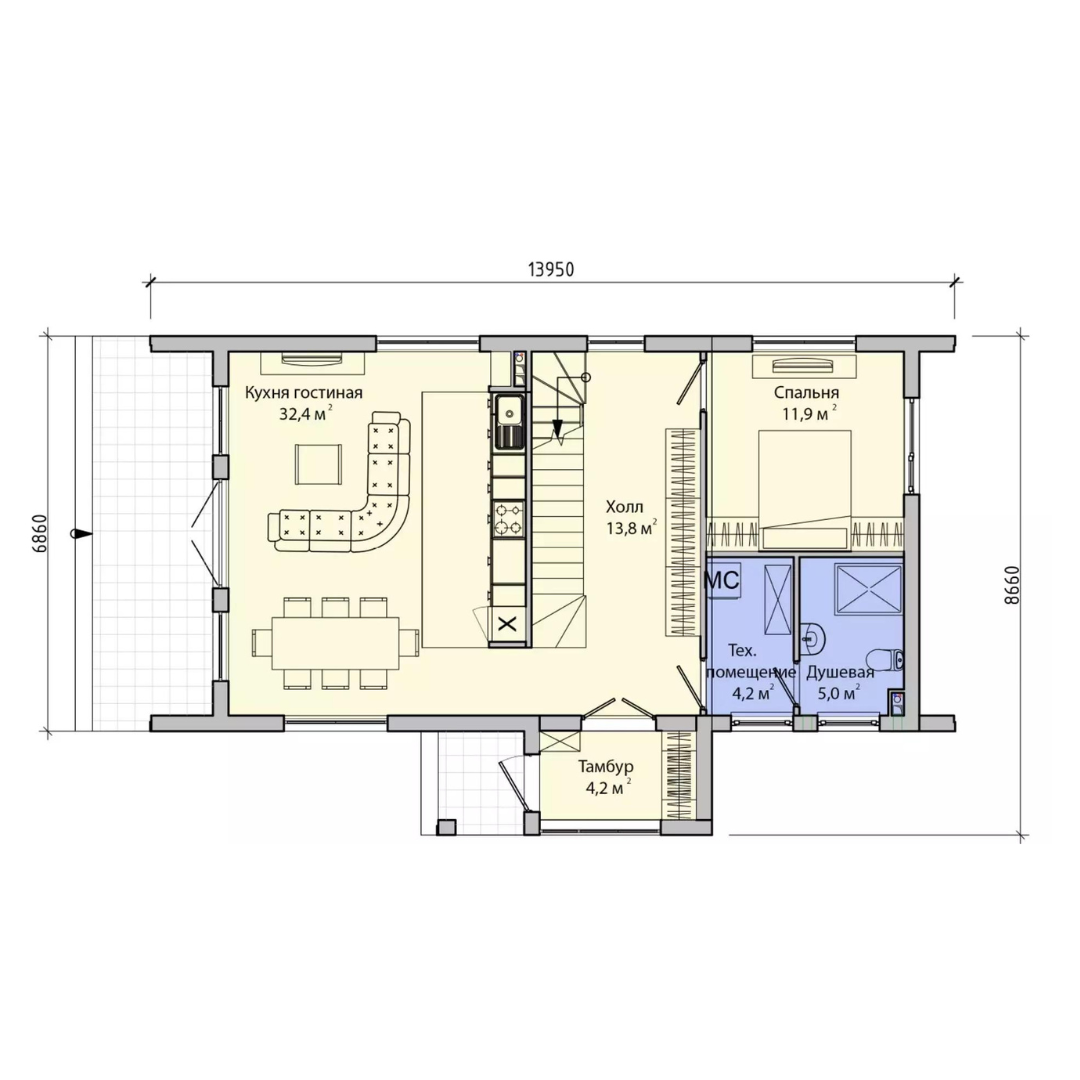
⭐ Барнхаус ПБ-130

Просторный дом для семьи из 4-5 человек с простой геометрией, большими окнами в пол и террасой – всё это проект дома ПБ-130 в стиле барнхаус.

Планировкой дома предусмотрено деление первого этажа на две части: слева от холла находится кухня-гостиная с выходом на террасу, а справа:

◼ спальня;

◼ техническое помещение;

◼ душевая.

На втором этаже размещены:

◼ три спальни (одна с санузлом);

◼ общий санузел;

◼ холл.

Дом возводится в комплектации «Теплый контур»:

◼ фундамент;

◼ коробка дома из панелей БЭНПАН+;

◼ утепленная кровля;

◼ отделка фасада;

◼ оконные блоки с ламинацией;

◼ металлический каркас лестницы;

◼ входная утепленная дверь с терморазрывом.

Во время строительства в дом заводятся:

◼ водопровод;

◼ канализация;

◼ электричество;

◼ интернет.

Газопровод проходит по границе участка.

Строительство ведётся на участке 5,02 сотки и уже сейчас, на этапе возведения стен, дом ПБ-130 доступен к покупке по максимально выгодной цене.

💲Покупка доступна в ипотеку, с использованием средств маткапитала

❗ ИЖС, прописка

Узнать подробнее об условиях приобретения, записаться на просмотр можно по телефону: 📞 +7 (495) 927-93-28

#коттеджныйпоселок #коттеджныйгородок #берегпесочной #стройкадома #москвадома #строительстводомов #строительстоподключ #строительстводома #строительствокоттеджей #поселокновый #поселокмечта #бэнпан #покупкадома