Найти в Дзене

Эргономика спальни

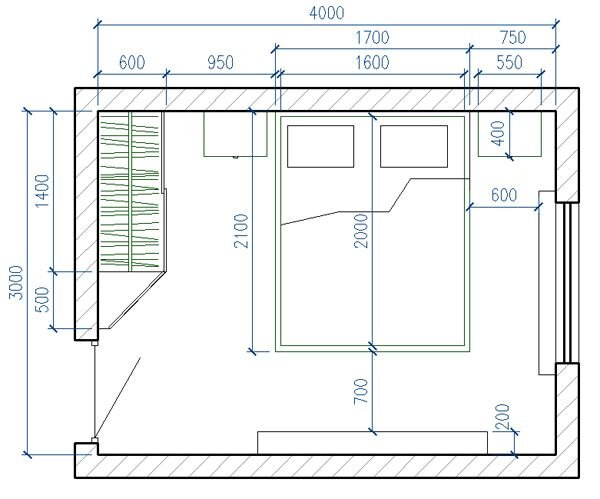
При планировании спальни помните, что это место, где человек отдыхает и восстанавливается. Кровать - сердце спальни. Кровать подбирают в соответствии с размером комнаты, чтоб спальня не выглядела тесной. Важно выделить вокруг кровати достаточно пространства, которое позволит удобно ложиться и вставать.   Кровати шириной 80-140 см - односпальные. К двуспальным относятся кровати шириной 160-180 см.  Длина стандартной кровати – 200 см. Комфортной высотой считается 55-60 см с учетом ножек и матраса. Выберите кровать высотой 45-50 см, если вы часто сидите на краю кровати. Изголовье кровати должно возвышаться над матрасом минимум на 20 см. Это защитит стену и удержит подушки на месте.   Ставьте кровать так, чтобы вдоль ее стены оставался проход шириной не менее 70 см. Для односпальной кровати достаточно одного прохода. Для двуспальной кровати нужен проход с двух сторон. Если вдоль длинной стороны кровати планируете ставить шкаф, проход должен быть шире, чтоб было комфортно подойти и открыть

При планировании спальни помните, что это место, где человек отдыхает и восстанавливается.

Кровать - сердце спальни. Кровать подбирают в соответствии с размером комнаты, чтоб спальня не выглядела тесной. Важно выделить вокруг кровати достаточно пространства, которое позволит удобно ложиться и вставать.   Кровати шириной 80-140 см - односпальные. К двуспальным относятся кровати шириной 160-180 см.  Длина стандартной кровати – 200 см.

Комфортной высотой считается 55-60 см с учетом ножек и матраса. Выберите кровать высотой 45-50 см, если вы часто сидите на краю кровати.

Изголовье кровати должно возвышаться над матрасом минимум на 20 см. Это защитит стену и удержит подушки на месте.   Ставьте кровать так, чтобы вдоль ее стены оставался проход шириной не менее 70 см. Для односпальной кровати достаточно одного прохода. Для двуспальной кровати нужен проход с двух сторон.

Если вдоль длинной стороны кровати планируете ставить шкаф, проход должен быть шире, чтоб было комфортно подойти и открыть дверцу. Обращайте внимание, чтобы дверцы не ударялись о прикроватную тумбочку.   Если вы планируете шкаф в потолок, то проследите, чтобы при открывании дверцы не задевали потолочные светильники. Здесь нужно учесть расстояние от открытой дверцы до светильника и высоту осветительного прибора.

Высота прикроватной тумбочки зависит от высоты кровати с учетом ножек и матраса. Стандартная – 50-70 см.

При выборе прикроватных светильников нужно задаться вопросом: свет нужен для чтения перед сном или как дополнительное освещение перед тем, как лечь спать?   Если предпочитаете читать сидя, лежа, то выберете лампу, которая регулируется по высоте и направлению света. Оптимальная высота светильников зависит от высоты кровати и матраса. Установите освещение на высоте 60 см от матраса, отступите 20 см от его края.

Планируя освещение в спальне помните, что осветительные приборы лучше не устанавливать над самой кроватью - свет будет слепить, когда вы отдыхаете в кровати.