Найти в Дзене
DIVAN.RU

Евродвушка 35 кв.м: вау-интерьер со скромным бюджетом

Подчеркнуть достоинства и скрыть недостатки этой квартиры удалось с помощью исключительно бюджетных решений. Берем на заметку. Об объекте: г. Москва, евродвушка 35 кв.м в новостройке
Автор проекта и стилист: дизайнер Элина Мусина
Бюджет проекта: 2,3 млн рублей Логика планировки В квартире просторная кухня-гостиная 16,3 кв.м, спальня 11 кв.м, объединенный санузел и прихожая с нишей под шкаф. Кухня-гостиная Ламинат на полу в гостиной и плитку в кухне оставили от застройщика. Стены перекрасили в бежевый цвет. В целях экономии корпусную мебель выбирали из готовых решений. Угловой гарнитур средней высоты, с одним верхним ярусом не перегружает кухню. Пространство оформили в аппетитных ванильно-шоколадных оттенках. Фартук с черными прожилками «под мрамор» объединяет композицию. Графичный черный стол и стулья в обеденной зоне визуально «продолжает» столешницу и цоколя кухни. В гостиной — изумрудный диван Слипсон и тумба Тайрон с принтованными фасадами. Я часто использую мебель отечественного б
Оглавление

Подчеркнуть достоинства и скрыть недостатки этой квартиры удалось с помощью исключительно бюджетных решений. Берем на заметку.

Проект дизайнера Элины Мусиной, автор фото Константин Пырьев
Проект дизайнера Элины Мусиной, автор фото Константин Пырьев

Об объекте: г. Москва, евродвушка 35 кв.м в новостройке
Автор проекта и стилист: дизайнер Элина Мусина
Бюджет проекта: 2,3 млн рублей

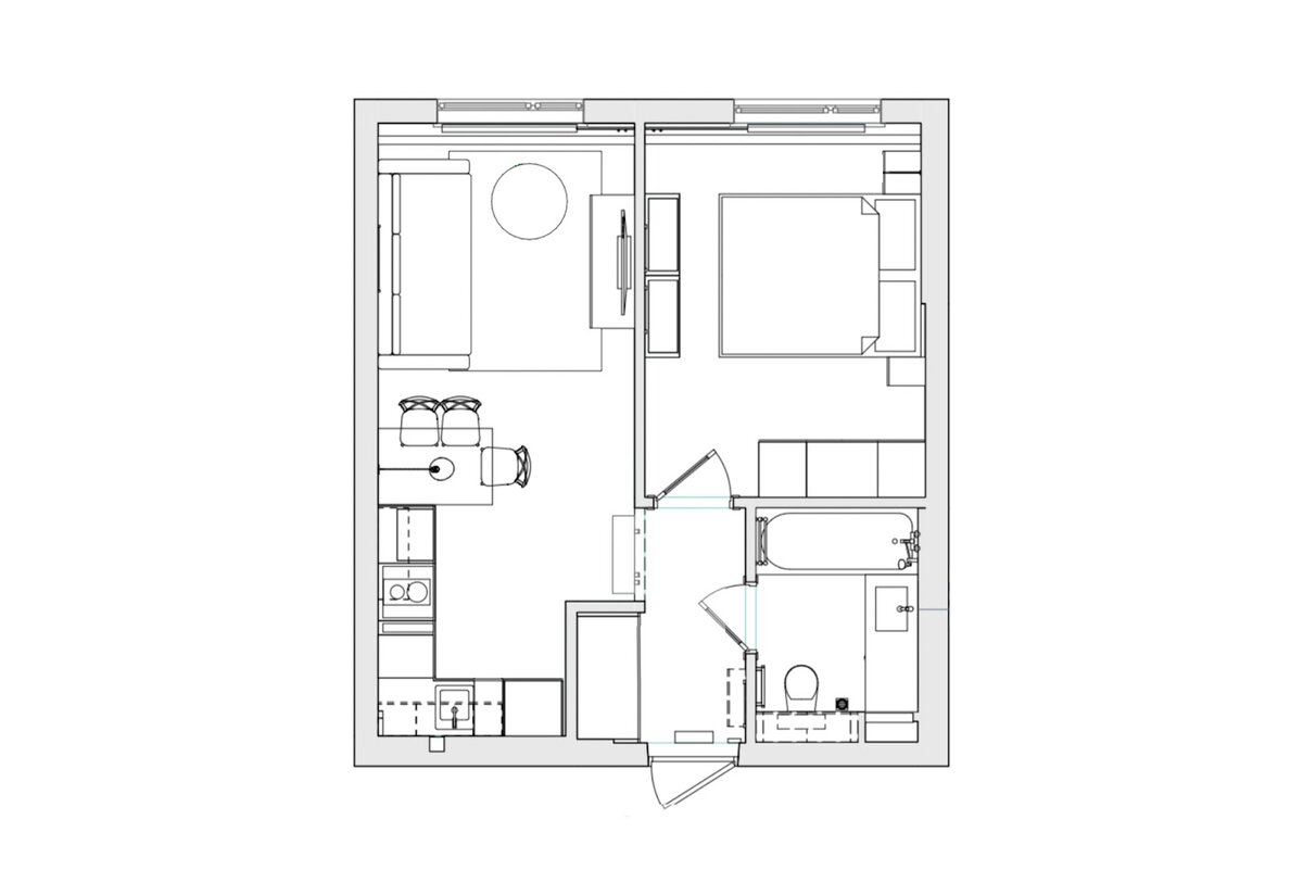
Логика планировки

В квартире просторная кухня-гостиная 16,3 кв.м, спальня 11 кв.м, объединенный санузел и прихожая с нишей под шкаф.

План квартиры с расстановкой мебели
План квартиры с расстановкой мебели

Кухня-гостиная

Ламинат на полу в гостиной и плитку в кухне оставили от застройщика. Стены перекрасили в бежевый цвет. В целях экономии корпусную мебель выбирали из готовых решений.

Угловой гарнитур средней высоты, с одним верхним ярусом не перегружает кухню. Пространство оформили в аппетитных ванильно-шоколадных оттенках. Фартук с черными прожилками «под мрамор» объединяет композицию. Графичный черный стол и стулья в обеденной зоне визуально «продолжает» столешницу и цоколя кухни.

В гостиной — изумрудный диван Слипсон и тумба Тайрон с принтованными фасадами. Я часто использую мебель отечественного бренда divan.ru в своих проектах. Нравится современный дизайн, приемлемые цены и качество изделий — рассказывает дизайнер.
Проект дизайнера Элины Мусиной, автор фото Константин Пырьев
Проект дизайнера Элины Мусиной, автор фото Константин Пырьев

В кадре диван Слипсон, divan.ru от 54 990₽* >>

-5

☀️ Этот диван сейчас можно купить с выгодой 24 000₽! Выбирайте мебель и аксессуары для дома со скидками до 60% на распродаже в divan.ru

Основное освещение оставили от застройщика. На гарнитуре закрепили подсветку (светодиодную ленту), в обеденной зоне повесили светильник на длинной ножке с направленным светом.

В кадре ТВ-тумба Тайрон, divan.ru от 21 990₽* >>

Спальня

Перепад глубины на стене за изголовьем замаскировали рейками — покрыли бежевой краской и декорировали мазками зеленого цвета. Получился оригинальный геометрический принт, напоминающий бамбуковый лес. Кровать Динс от divan.ru с зеленым изголовьем поддерживает эко-тему. Распашной шкаф с зеркальными фасадами расширяет пространство.

В кадре кровать Динс, divan.ru от 34 990₽* >>

Часть стены напротив выкрасили в зеленый. Для хранения предусмотрели пару комодов, составленных вместе, и распашной шкаф с зеркальными фасадами.

Прихожая

Стена, входная дверь и настенная вешалка, окрашенные в сложный бордовый оттенок, делают пространство визуально глубже. В нишу встроили шкаф-купе с зеркальными фасадами. Чтобы не переносить пожарную сигнализацию и не менять натяжной потолок, высоту шкафа пришлось ограничить.

Санузел

Отделку от застройщика оживили за счет контрастной затирки и яркой зеленой мебели. Стиральную машину с функцией сушки установили под столешницей. Ванну декорировали съемным экраном, чтобы организовать там место для хранения.

---------------
Оцените интерьер в комментариях, а если материал понравился — не забудьте поставить лайк.

🖤divan.ru — не только блог про интерьеры, но и производитель доступной дизайнерской мебели. Ищите новые идеи и переходите на сайт, чтобы воплотить их в жизнь.

*Цены актуальны на момент публикации статьи