Найти в Дзене

Каркасный дом “Традиция”: опыт и новаторство для комфортной жизни за городом

Строительная компания "Мастер" представляет новинку — проект двухэтажного каркасного дома "Традиция" площадью 121 квадратный метр в классическом европейском стиле. Прямоугольный эркер на фасаде эффектно смотрится с контрастной отделкой, что открывает широкое пространство вариантов для творчества. Можно сочетать не только цвета, но также фактуры за счет разных материалов или использования фасадной плитки HAUBERK, имитирующей кирпич, дерево или натуральный камень. Планировочные решения При проектировании этого дома наши архитекторы ориентировались на нужды семьи до 6 человек, которым нужен уютный и компактный дом для постоянного проживания. Габаритные размеры дома 12 на 9,5 метров, что позволяет разместить его на участках разного размера и конфигурации. Если нужен более компактный вариант, можно присмотреться к варианту в размерах 7,5х9,5 метров. Всего в доме 4 просторных спальни: одна на первом этаже и три на втором, и две отдельных ванных комнаты. На первом этаже расположена просторная
Оглавление

Строительная компания "Мастер" представляет новинку — проект двухэтажного каркасного дома "Традиция" площадью 121 квадратный метр в классическом европейском стиле. Прямоугольный эркер на фасаде эффектно смотрится с контрастной отделкой, что открывает широкое пространство вариантов для творчества. Можно сочетать не только цвета, но также фактуры за счет разных материалов или использования фасадной плитки HAUBERK, имитирующей кирпич, дерево или натуральный камень.

Проект дома "Традиция"
Проект дома "Традиция"

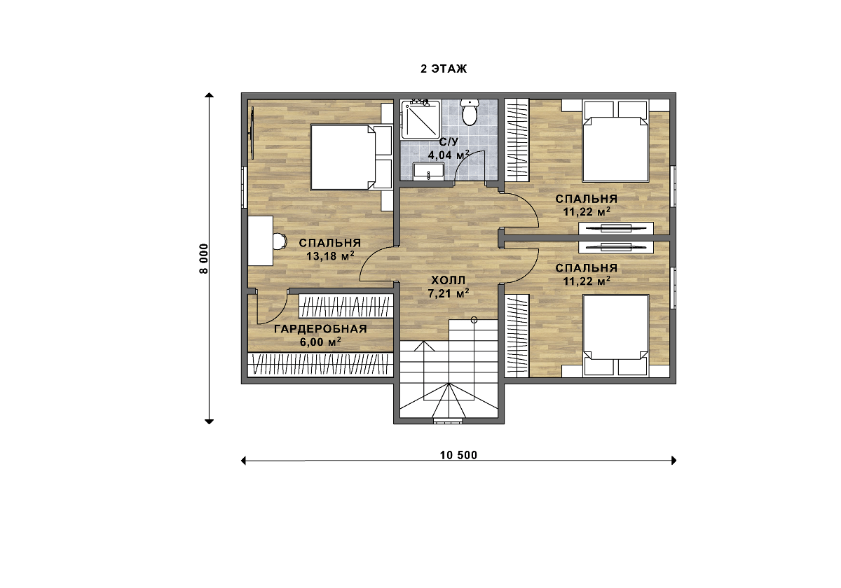
Планировочные решения

При проектировании этого дома наши архитекторы ориентировались на нужды семьи до 6 человек, которым нужен уютный и компактный дом для постоянного проживания. Габаритные размеры дома 12 на 9,5 метров, что позволяет разместить его на участках разного размера и конфигурации. Если нужен более компактный вариант, можно присмотреться к варианту в размерах 7,5х9,5 метров.

Всего в доме 4 просторных спальни: одна на первом этаже и три на втором, и две отдельных ванных комнаты.

На первом этаже расположена просторная зона кухни-гостиной площадью 22 квадрата. Здесь легко можно выделить три зоны: рабочую, столовую и пространство для отдыха. Из гостиной через застекленные двери открывается выход на уютную крытую террасу. Такая планировка позволяет организовать семейный досуг в различных форматах: от званого ужина до яркой вечеринки с фейерверком в саду или детского праздника.

Вход в жилое пространство дома организован через теплый тамбур, что позволяет ограничить проникновение холодного воздуха и снизить затраты на отопление зимой. Отдельное помещение котельной рассчитано на размещение необходимого инженерного оборудования.

Второй этаж — приватная зона, где помимо трех спален предусмотрена еще отдельная гардеробная.

Наружная и внутренняя отделка

"Традиция" обладает своим неповторимым шармом, который можно подчеркнуть с помощью разнообразной наружной отделки. Вы можете выбрать имитацию бруса, окрашенную в цеху компании “Мастер”, разнообразные варианты сайдинга или более дорогой вариант — фасадная плитка Хауберк.

Внутри дома предпочтение отдается натуральным материалам, таким как вагонка или имитация бруса. Это создает идеальное сочетание аутентичности, тепла и природной простоты, которое так ценится нашими заказчиками.

Индивидуальный подход

У каждой семьи есть свой ритм жизни, и для нас важно предложить нашим клиентам индивидуальные решения с учетом этого ритма. Например, если у вас в семье маленькие дети или пожилые родственники, стоить предусмотреть дополнительные комнаты на первом этаже или еще один санузел.

Некоторые наши заказчики предпочитают разделять кухню и гостиную на две отдельные зоны. В этом проекте легко можно внести такие изменения.

В компании "Мастер" внимательно слушают каждого клиента и учитывают все пожелания, предлагая оптимальные решения для достижения желаемого результата. Доверьтесь опыту и экспертизе нашей команды, и ваше строительство станет приятным и беззаботным процессом. А ваш дом станет идеальным воплощением ваших мечтаний! Посмотреть проект “Традиция”, а также еще более 300 других проектов вы можете на нашем сайте.

Мы готовы помочь вам построить дом вашей мечты!