Найти в Дзене
Твоя квартира

Бюджетный интерьер однушки на 32 квадратах в хрущевке: просто, но душевно!

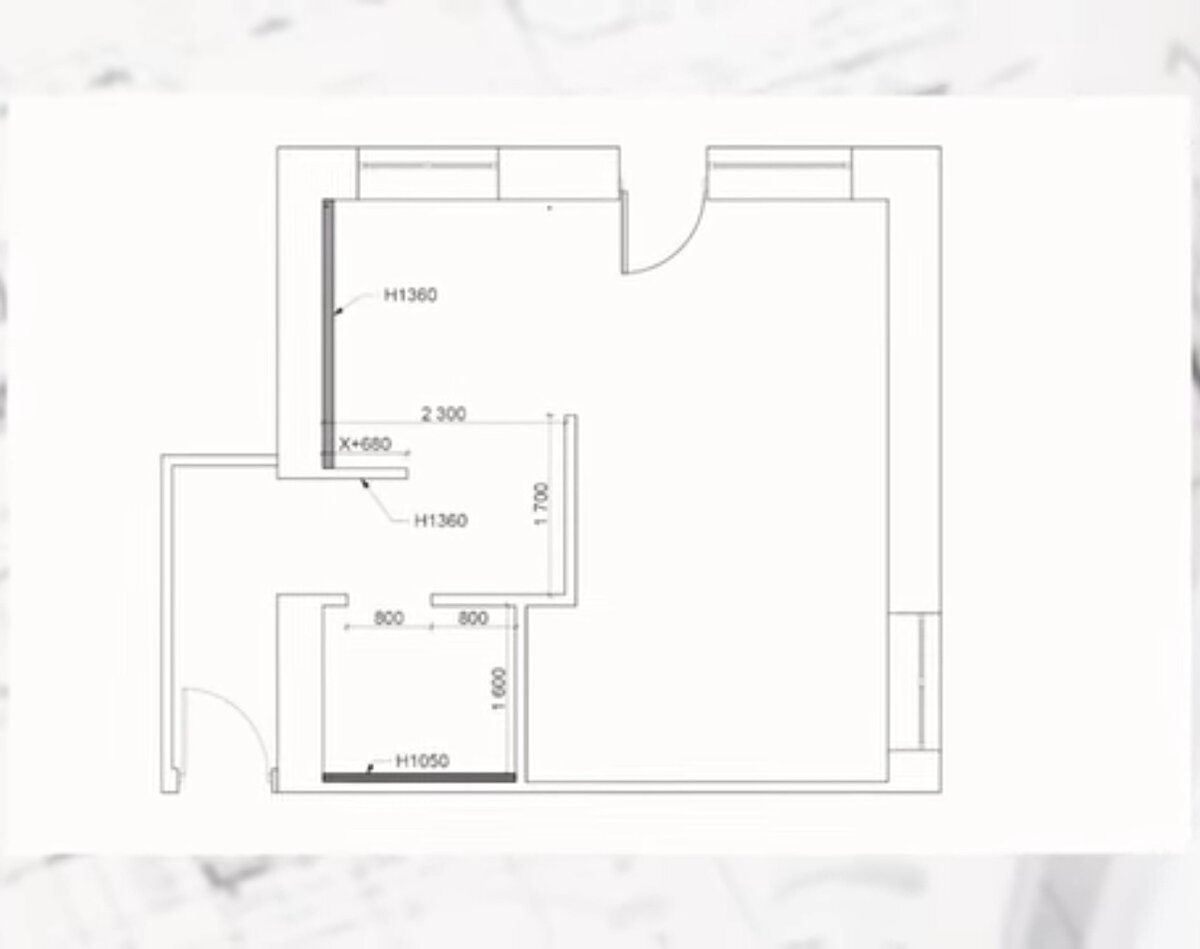
Сегодня на очереди еще одна однокомнатная квартира в стандартной пятиэтажке. Таких квартир в России миллионы и все они однотипные, но благодаря современным возможностям, они превращаются в просторные, светлые, а главное, индивидуальные апартаменты. На плане квартиры ниже отчетливо видно, что сделали с квартирой, а именно - ее перепланировку - без нее сейчас в хрущевках никуда. Теперь вход в жилую часть осуществляется через кухню, но учитывая, что кухня совмещена с гостиной, это не доставляет никаких проблем. Начнем, как обычно, с коридора. Здесь он просторный, но узкий, сложно здесь разместить какие-то комоды, обувницы, шкафы, поэтому при входе нас встречает большое зеркало и вешалка для верхней одежды напротив входной двери. Этих предметов интерьера оказалось вполне достаточно. За поворотом нас встречает технический шкаф, который еще и разделяет прихожую и гостиную. Именно в этом шкафу прячется гладильная доска, швабра, бытовая химия, а еще именно в этом шкафу расположилась стираль

Сегодня на очереди еще одна однокомнатная квартира в стандартной пятиэтажке. Таких квартир в России миллионы и все они однотипные, но благодаря современным возможностям, они превращаются в просторные, светлые, а главное, индивидуальные апартаменты.

На плане квартиры ниже отчетливо видно, что сделали с квартирой, а именно - ее перепланировку - без нее сейчас в хрущевках никуда. Теперь вход в жилую часть осуществляется через кухню, но учитывая, что кухня совмещена с гостиной, это не доставляет никаких проблем.

Начнем, как обычно, с коридора. Здесь он просторный, но узкий, сложно здесь разместить какие-то комоды, обувницы, шкафы, поэтому при входе нас встречает большое зеркало и вешалка для верхней одежды напротив входной двери. Этих предметов интерьера оказалось вполне достаточно.

За поворотом нас встречает технический шкаф, который еще и разделяет прихожую и гостиную. Именно в этом шкафу прячется гладильная доска, швабра, бытовая химия, а еще именно в этом шкафу расположилась стиральная машинка. Именно таким образом у владельцев получилось освободить от нее ванную комнату или кухню. Здесь она никому не мешает, так еще и спрятана от глаз.

Кстати, в этом же шкафу, но уже в зоне кухни спрятался и холодильник!

Все-таки основную часть квартиры владельцам хотелось как-то отделить от коридора, но и пространство загромождать стенами не хотелось! Поэтому они нашли такое решение, отделить кухню рейками, так квартира осталась светлой, а пространство квартиры не "съелось".

Итак, кухня! Как говорилось ранее, холодильник расположен в шкафу, находится он напротив раковины, что очень удобно.

Интерьер оформлен в бело-серых тонах с добавлением дерева, что сделало его не только светлым, но и уютным. От верхних шкафов было решено отказаться и от вытяжки тоже. Зато кухня осталась воздушной и кажется, что она огромная.

Все необходимое для повседневной жизни расположено именно в нижней части кухни. На фото с открытыми фасадами мы можем увидеть, что здесь вместилась даже посудомоечная машинка, а все ящики скрытые. Также на кухне расположилась полноценная плита и большая рабочая зона.

Обеденный стол самый простой, деревянный. Его можно разобрать и тогда за ним вместится, как минимум 6 человек.

Гостиную украшает самый главный предмет интерьера - это диван! Чтобы освежить интерьер, было решено добавить цвета и с этой задачей он отлично справился!

А в сочетании с серыми шторами, подушками и белой кирпичной стеной сзади, но смотрится очень даже уместно!

Гостиную и спальню разделять каким-то стенами не стали, десь просто каждая зона находится на своем месте!

В спальной зоне вместилась огромная кровать и встроенный шкаф, при чем не простой. шкаф прячется за легкими шторами и когда они закрыты, выглядит это все очень легко, а незнающий человек никогда не догадается, что это шкаф. Складывается впечатления, что это два окна друг напротив друга.

Как говорилось выше, ванную комнату получилось избавить от громоздкой стиральной машинки, благодаря чему, здесь довольно просторно. Получилось разместить и ванну, и раковину, и унитаз, и дополнительные полочки. А серые стены с белой плиткой смотрятся очень симпатично!

Не забывайте подписываться на канал и ставить лайки! Пишите в комментариях, как вам такой интерьер однокомнатной хрущевки!