Найти в Дзене
АО «ТАМАК»

Светлый и уютный двухэтажный дом из клеёного бруса

Проект из клееного бруса «Русский дом-257» удачно сочетает традиционный стиль и современные архитектурные решения. Площадь коттеджа составляет 283,89 кв. м. Архитекторы разместили на ней: гостиную, столовую, кухню, кабинет, 4 спальни и кабинет. Все комнаты светлые и уютные благодаря большой площади остекления. Обратите внимание на веранду 2-го этажа со стеклянной крышей. Подробнее о проекте и технологии строительства ХАРАКТЕРИСТИКИ ПРОЕКТА: Подробнее о проекте и технологии строительства АО «ТАМАК» - крупнейшее в России индустриальное предприятие по проектированию, производству и строительству быстровозводимых домов и домов из клееного бруса. Крупнейший производитель цементно-стружечных плит. Телефон: 8(800)300-89-77
Наш сайт: https://www.tamak.ru/ Подписывайтесь на канал и ставьте лайки! :)

Проект из клееного бруса «Русский дом-257» удачно сочетает традиционный стиль и современные архитектурные решения. Площадь коттеджа составляет 283,89 кв. м. Архитекторы разместили на ней: гостиную, столовую, кухню, кабинет, 4 спальни и кабинет. Все комнаты светлые и уютные благодаря большой площади остекления. Обратите внимание на веранду 2-го этажа со стеклянной крышей.

Подробнее о проекте и технологии строительства

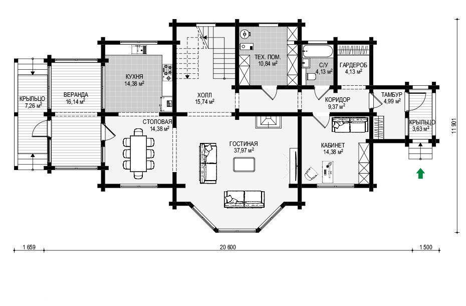
План первого этажа двухэтажного дома «Русский дом 257»
План первого этажа двухэтажного дома «Русский дом 257»
-3

ХАРАКТЕРИСТИКИ ПРОЕКТА:

  • Общая площадь: 283.89 м²
  • Площадь помещений: 256,86 м²
  • Площадь террас и балконов: 27.03 м²
  • Общая площадь 1 этажа: 157.34 м²
  • Общая площадь 2 этажа: 126.55 м²
  • Спальни, шт.: 4
  • Санузлы, шт.: 3
  • Кабинеты, шт.: 1
  • Техническое помещение: да

Подробнее о проекте и технологии строительства

АО «ТАМАК» - крупнейшее в России индустриальное предприятие по проектированию, производству и строительству быстровозводимых домов и домов из клееного бруса. Крупнейший производитель цементно-стружечных плит.

Телефон: 8(800)300-89-77
Наш сайт: https://www.tamak.ru/

Подписывайтесь на канал и ставьте лайки! :)