Найти в Дзене
АнатоличЪ Времонте

Квартира, в которой мы изменили все!

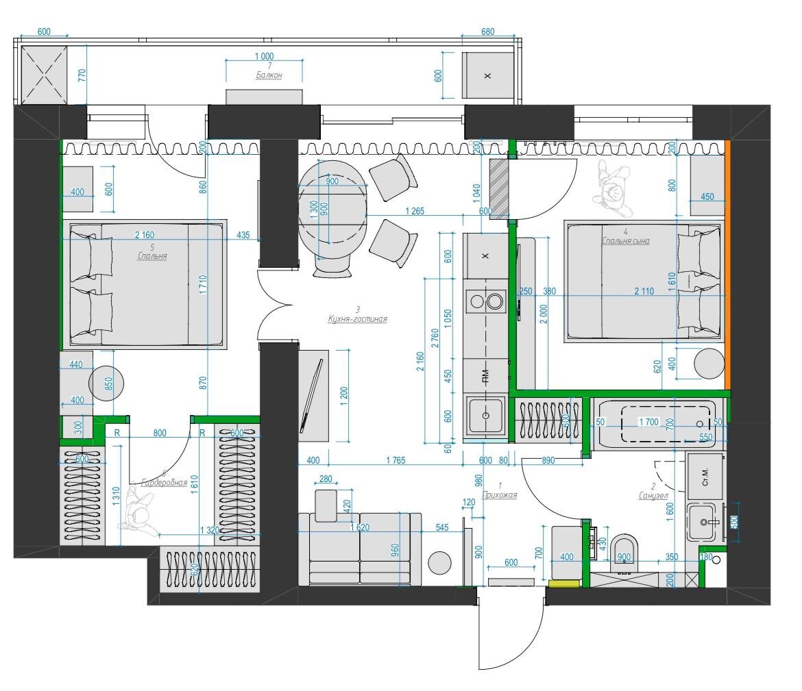
Улучшенная планировка, при которой мы изменили изначальное назначение помещений! Существующая планировка не нравилась заказчикам, т.к. в ней:
• отсутствовала гостиная зона
• спальни были проходными
• не было гардероба и мест для хранения
ЧТО МЫ СДЕЛАЛИ: Вы только посмотрите, какая получилась сдержанная, светлая и нежная квартира для спокойных семейных вечеров 🤩
Тоже хотите квартиру, которая будет отвечать всем потребностям вашей семьи? Тогда заказывайте дизайн-проект от нашей компании 🔥
Кликайте по ССЫЛКЕ, и мы вас абсолютно бесплатно проконсультируем по любым вопросам 👌

Улучшенная планировка, при которой мы изменили изначальное назначение помещений!

-2

Существующая планировка не нравилась заказчикам, т.к. в ней:
• отсутствовала гостиная зона
• спальни были проходными
• не было гардероба и мест для хранения

ЧТО МЫ СДЕЛАЛИ:

• гостевая зона получила просторное место и плавно перетекает в столовую зону
• гостевая зона получила просторное место и плавно перетекает в столовую зону
• кухня при этом разместилась по центру помещения и спряталась в короб из ГКЛ. При этом она не бросается в глаза при входе в квартиру
• кухня при этом разместилась по центру помещения и спряталась в короб из ГКЛ. При этом она не бросается в глаза при входе в квартиру
• предусмотрели просторную гардеробную
• предусмотрели просторную гардеробную
-8

Вы только посмотрите, какая получилась сдержанная, светлая и нежная квартира для спокойных семейных вечеров 🤩

Тоже хотите квартиру, которая будет отвечать всем потребностям вашей семьи? Тогда заказывайте дизайн-проект от нашей компании 🔥

Кликайте по
ССЫЛКЕ, и мы вас абсолютно бесплатно проконсультируем по любым вопросам 👌