Добавить в корзинуПозвонить
Найти в Дзене
На дачу в Суздаль

Два человека построили два дома за два месяца

После покупки участка я занялся поисками строительной компании. Дома решил ставить каркасные, соответственно, искал компании, которые специализируются именно на таком строительстве. Мне показалось логичным искать подрядчиков на месте. Частников на условном Авито не рассматривал. Хотелось договор с компанией, которая давно работает на рынке и дорожит своей репутацией. В договоре должны быть четко прописаны все условия, стоимость и объем, сроки возведения и штрафы за просрочку. В итоге решил открыть Яндекс карту и попробовать поискать во Владимире местную компанию с хорошими отзывами. Предварительный выбор остановил на двух конторах. С ними решил пообщаться вживую. В первой у меня дело не дошло даже до встречи. Человек переносил сроки, не отвечал на звонки и сообщения. И это я еще не заплатил ему деньги. Обычно такое отношение бывает, когда деньги уже заплачены и деваться некуда. С менеджером второй компании мы поговорили по телефону. Я в Вотсапп скинул ему планировку дома, который хочу

После покупки участка я занялся поисками строительной компании. Дома решил ставить каркасные, соответственно, искал компании, которые специализируются именно на таком строительстве. Мне показалось логичным искать подрядчиков на месте. Частников на условном Авито не рассматривал. Хотелось договор с компанией, которая давно работает на рынке и дорожит своей репутацией. В договоре должны быть четко прописаны все условия, стоимость и объем, сроки возведения и штрафы за просрочку. В итоге решил открыть Яндекс карту и попробовать поискать во Владимире местную компанию с хорошими отзывами.

Предварительный выбор остановил на двух конторах. С ними решил пообщаться вживую. В первой у меня дело не дошло даже до встречи. Человек переносил сроки, не отвечал на звонки и сообщения. И это я еще не заплатил ему деньги. Обычно такое отношение бывает, когда деньги уже заплачены и деваться некуда.

С менеджером второй компании мы поговорили по телефону. Я в Вотсапп скинул ему планировку дома, который хочу построить, и он в течении получаса прислал стоимость работ под ключ. Цена меня устроила, в итоге встретились в офисе, пообщались. Понравилось то, что смета в результате не увеличилась, ничего навязывать человек мне не стал. В договоре была зафиксирована стоимость на стройматериалы, сроки заезда бригады и сдачи дома, штрафные санкции за срыв сроков.

Но тут, как обычно бывает, не обошлось без нюансов. Если ты не разбираешься в технологии строительства, гарантированно получишь не то, на что рассчитывал. В моем случае дом посчитали из обрезной доски естественной влажности, а это кривые доски и возможная плесень и грибок. Попросил пересчитать из сухой строганой. Утепление посчитали 100мм, а для зимы этого мало. Исправил на 150мм стены и 200мм потолок. Сетку от грызунов не предложили. Добавил сам. На террасу по умолчанию кладут обычную шпунтованную, половую доску. Менять ее не стал, просто в итоге попросил плотников снять фаску, как на террасной и сделать зазоры между досками при укладке. Закладные под бойлер и телевизор добавил. Снегозадержатели. Возможно что-то не упомянул здесь. Просто имейте ввиду, что без знания базовых вещей со строительством лучше не связываться. Нужна как минимум консультация знающего человека.

Договор подписал в конце октября, внес аванс. По договору строители должны были начать работы в конце февраля, но в итоге начали на неделю раньше. За неделю до заезда мне наконец-то забили оставшиеся 4 сваи фундамента и привезли бытовку для строителей. После приехали двое плотников – один из них по совместительству бригадир. В принципе вменяемые ребята.

Уже говорил, что на просторах интернета нашел подходящую планировку. По ней проектировщик от компании сделал проект дома.

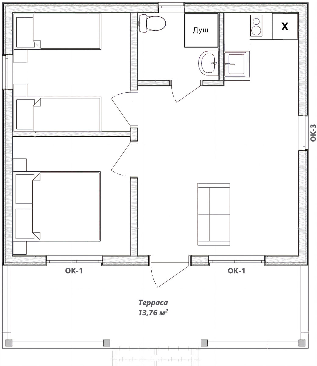
Остановился на такой планировке одного из домов
Остановился на такой планировке одного из домов

Фактически он сидит где-то на аутсорсе за тридевять земель и в учебной версии Архикада допиливает проекты из интернета. В процессе строительства я обнаружил, что некоторые размеры на чертежах не соответствуют оговоренным, в частности проемы под двери. Мне просто в голову не пришло перепроверять все за специалистом. Ну и в целом, в процессе «проектирования» мне пришлось указывать на некоторые очевидные вещи - расположения окон, дверей высоты от окон до потолка и визуала как такового. С другой стороны проект мне сделали «в подарок», запаковали в стоимость дома, так что придираться не буду. Все моменты, которые я обнаружил и попросил поменять, оперативно исправили.

Два человека построили два дома площадью 36м2 и 56м2 за два месяца с учетом недели отпуска. Из косяков были обнаружены не отрегулированные окна и торчащие кое-где недозабитые нейлером гвозди. Зима покажет, как сделано утепление и проклеена пароизоляция. Аэродверью при приемке дома герметичность не проверял.

На участке после строительства осталось две горы мусора плюс остатки строений прошлых лет. Сколько стоило убрать их и вывезти силами специалистов с Авито расскажу в отдельной истории.