Найти в Дзене

Дом мечты: прекрасное сочетание комфорта и стиля

Проект дома М20 – отличный вариант для тех, кто любит уют, современный дизайн и удобство. В этом доме есть всё, что нужно для комфортной жизни всей семьи. Давайте разберемся, почему проект М20 такой классный. Внешний Вид и Отделка Дом по проекту М20 сразу привлекает внимание своей элегантной и современной архитектурой. Чистые линии, симметрия и гармоничное сочетание цветов делают его привлекательным. Основные материалы, использованные в отделке фасада: Планировка и Пространство Проект дома М20 продуман до мелочей, чтобы все чувствовали себя максимально комфортно. Планировка включает: Удобство и Функциональность Проект дома М20 продуман так, чтобы каждая деталь способствовала вашему комфорту. Большие окна обеспечивают естественное освещение в течение всего дня, а просторные помещения позволяют создать уютную атмосферу. Крыльцо площадью 3.06 м² создает приятное первое впечатление. Этот проект – воплощение современной архитектуры и удобства и идеальный выбор для любой семьи. Подписывай
Оглавление

Проект дома М20 – отличный вариант для тех, кто любит уют, современный дизайн и удобство. В этом доме есть всё, что нужно для комфортной жизни всей семьи. Давайте разберемся, почему проект М20 такой классный.

Внешний Вид и Отделка

Дом по проекту М20 сразу привлекает внимание своей элегантной и современной архитектурой. Чистые линии, симметрия и гармоничное сочетание цветов делают его привлекательным. Основные материалы, использованные в отделке фасада:

  • Фасадная штукатурка светлых оттенков, которая придает дому легкость и современный вид.
  • Фасадная плитка, имитирующая кирпичную кладку на цоколе, делает дом более строгим, но от этого не менее стильным.
  • Кровля, выполненная из металлочерепицы темного цвета, отлично сочетается с общим обликом дома.

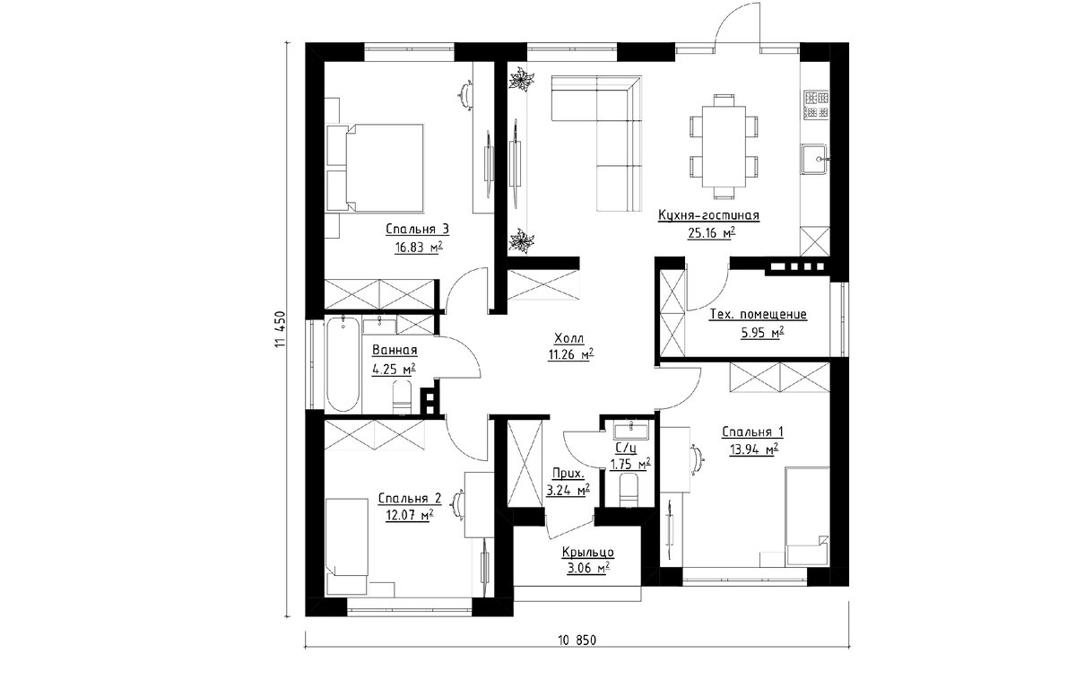
Планировка и Пространство

Общая площадь – 97 м²
Общая площадь – 97 м²

Проект дома М20 продуман до мелочей, чтобы все чувствовали себя максимально комфортно. Планировка включает:

  • Просторную кухню-гостиную площадью 25.16 м², которая является сердцем дома. Здесь можно принимать гостей, проводить семейные вечера и наслаждаться вкусной едой.
  • Три спальни (16.83 м², 13.94 м² и 12.07 м²), каждая из которых обеспечивает уединение и комфорт. Это идеальное решение для семьи с детьми или для приема гостей.
  • Холл площадью 11.26 м², который соединяет все основные помещения и обеспечивает удобство перемещения по дому.
  • Ванная комната размером 4.25 м², оборудованная всем необходимым для релаксации и ухода за собой.
  • Дополнительный санузел площадью 1.75 м² добавляет удобства.
  • Техническое помещение площадью 5.95 м², которое можно использовать для хранения вещей или оборудования.

Удобство и Функциональность

Проект дома М20 продуман так, чтобы каждая деталь способствовала вашему комфорту. Большие окна обеспечивают естественное освещение в течение всего дня, а просторные помещения позволяют создать уютную атмосферу. Крыльцо площадью 3.06 м² создает приятное первое впечатление.

Этот проект – воплощение современной архитектуры и удобства и идеальный выбор для любой семьи. Подписывайтесь!

Больше информации о проекте можно узнать по ссылке.