Найти в Дзене

Двухэтажный каменный дом 145 м² | Простота и эстетика

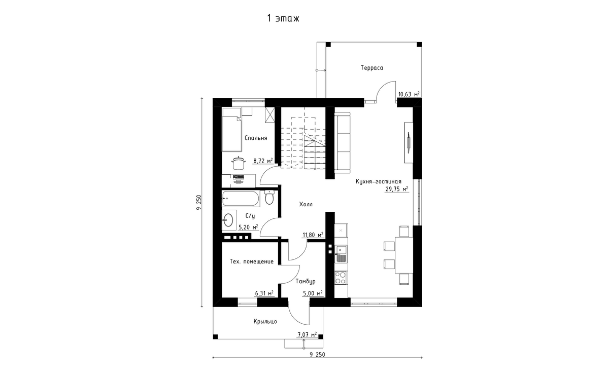
Проект Т-19 в плане имеет квадратную форму 9х9 метров. Общая площадь – 145 квадратных метров. Внешний облик Планировка На главном фасаде нас встречает широкое открытое крыльцо, его площадь 7 квадратных метров. Далее мы попадаем в зону прихожей, она выступает еще и в роли тамбура. Ее площадь 5 квадратных метров, несмотря на скромные размеры, есть место разместить большой встроенный шкаф. Слева от зоны прихожей расположено техническое помещение на 6,3 квадратных метра, для размещения всего отопительного оборудования, зоны постирочной, а также здесь можно разместить зону хранения и раковину, а также душевой поддон для хозяйственных нужд. Таким образом вся грязная зона сосредоточена только при входе в основную часть дома. Далее расположен просторный холл с лестницей на второй этаж. Из холла можно попасть во все помещения первого этажа. Смежно с техническим помещение расположена вместительная душевая почти на 5,5 квадратных метров, соответственно здесь можно разместить большую душевую, а пр
Оглавление

Проект Т-19 в плане имеет квадратную форму 9х9 метров. Общая площадь – 145 квадратных метров.

Внешний облик

  • Фасад очень минималистичен – четкая, хорошо читаемая форма, которая всем знакома. Нет каких-либо выступов и балконов. В качестве основной отделки фасада выбрана белая декоративная штукатурка. В контраст этому основному цвету подобраны все остальные элементы наружной отделки. Металлочерепица, доборные элементы кровли, снегозадержатели, водосточная система, ламинация окон и фасадная плитка цоколя выполнены в темно-серых оттенках.
  • Белый цвет всегда добавляет аккуратности, а темно-серый – строгости. В сочетании они задают презентабельный и выразительный облик дома. Поэтому, если вы сомневаетесь в выборе цветового сочетания дома, выбирайте белый и оттенки серого – точно не прогадаете.

Планировка

На главном фасаде нас встречает широкое открытое крыльцо, его площадь 7 квадратных метров. Далее мы попадаем в зону прихожей, она выступает еще и в роли тамбура. Ее площадь 5 квадратных метров, несмотря на скромные размеры, есть место разместить большой встроенный шкаф.

Слева от зоны прихожей расположено техническое помещение на 6,3 квадратных метра, для размещения всего отопительного оборудования, зоны постирочной, а также здесь можно разместить зону хранения и раковину, а также душевой поддон для хозяйственных нужд. Таким образом вся грязная зона сосредоточена только при входе в основную часть дома.

Далее расположен просторный холл с лестницей на второй этаж. Из холла можно попасть во все помещения первого этажа. Смежно с техническим помещение расположена вместительная душевая почти на 5,5 квадратных метров, соответственно здесь можно разместить большую душевую, а при желании ванну, инсталляцию и умывальник.

За этим помещением расположилась гостевая спальня на 9 квадратных метров. Ее площадь позволит использовать ее еще и в качестве кабинета. Рядом с гостевой спальней разместилась лестница, по которой мы можем попасть на второй этаж дома.

Планировка 1-го этажа с мебелью
Планировка 1-го этажа с мебелью


В правой же части расположилась большая кухня-гостиная на
30 квадратных метров. Ближе к главному фасаду дома расположена кухня. Кухонный гарнитур здесь можно разместить вдоль внутренней несущей стены, поскольку здесь предусмотрены вентканалы для вытяжки. Напротив кухонного гарнитура разместился обеденный стол.

В дальней части дома разместилась зона гостиной, где можно разместить угловой диван, а на против него зону ТВ. Это место, где семья может совместно отдыхать и наслаждаться видом на свой участок, поскольку здесь же расположилась портальная дверь на террасу. Терраса открытая и площадью 10 квадратных метров. При желании ее можно сделать остекленной и использовать в любое время года.

Таким образом, первый этаж – это полностью общая зона, здесь очень много естественного освещения, а в кухне-гостиной очень высокие окна.

Второй этаж – это полностью приватная зона, в которую мы попадаем по лестнице. В зоне лестничного марша расположено узкое и длинное окно, что дает возможность добавить естественного света как в холл первого этажа, так и второго.

Планировка 2-го этажа с мебелью
Планировка 2-го этажа с мебелью

Пространство второго этажа занимают 4 спальни. Две детские и две спальни чуть больше. В левой задней части расположилась небольшая детская площадью 9,5 квадратных метров, здесь можно разместить спальное место, большой гардероб и рабочую зону. Ближе к главному фасаду разместилась еще одна детская спальня, но площадью уже немного побольше, а именно 11,5 квадратных метров и вмещает в себя все те же функции и зоны.

В правой части разместились спальни побольше. Ближе к задней части дома расположена спальня почти на 15,5 квадратных метров. Здесь можно разместить большую двуспальную кровать, большой встроенный шкаф во всю ширину спальни, рабочее место и зону ТВ.

Ближе к главному фасаду разместилась еще одна спальня, аналогичная предыдущей. И ее тоже можно использовать в качестве родительской спальни.

Для всей зоны второго этажа просторная ванная комната на 4,6 квадратных метра, где можно разместить все необходимое для комфорта семьи.

В целом проект Т-19 это очень хороший и бюджетный дом, где нет излишеств, а каждый квадратный метр предусмотрен для какой-либо функции.

Дом прост в строительстве и не требует сложных конструктивных решений, и как следствие дополнительных вложений. Простые формы в планировке упростят ход работ по внутренней отделке, а в последующем и эксплуатацию самого дома.

А какие плюсы в проекте увидели вы? Обязательно делитесь своим мнением в комментариях, оно для нас очень важно. Подписывайтесь!

Больше проектов в нашем Телеграм канале!

Цену проекта можно узнать по ссылке.