Найти в Дзене
DIVAN.RU

ДО/ПОСЛЕ: вместо уставшего ремонта — яркие тропики на 36 кв.м

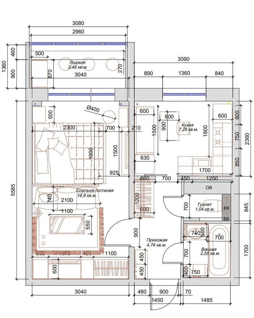
Капитальный ремонт в этой однушке обошелся в 4,5 млн рублей. Чтобы не перегружать пространство, для оформления выбрали современный стиль с элементами минимализма. Об объекте: однокомнатная квартира 36,27 кв.м в г. Реутов
Авторы проекта: Тамара Воронцова и Ольга Углова, студия «Свой дизайн» Площадь квартиры чуть больше 36 кв.м. На момент покупки в квартире была устаревшая обстановка из 90-х годов. Жилье требовало капитального ремонта. Планировка полностью устраивала заказчиков, все стены оставили на своих местах. В качестве основного цвета использовали насыщенный сине-зеленый, вызывающий ассоциации с морскими волнами. Детали черного цвета отсылают к морским глубинам и темному тропическому небу, оранжевые акценты — к загадочным коралловым рифам. Белые окна во всех помещениях заменили стеклопакетами с графитовыми рамами — заказчица была категорически против белого цвета в интерьере. Радиаторы отопления, плинтусы, подоконники и даже внутренние поверхности шкафов выполнили в том же оттенке.
Оглавление

Капитальный ремонт в этой однушке обошелся в 4,5 млн рублей. Чтобы не перегружать пространство, для оформления выбрали современный стиль с элементами минимализма.

Об объекте: однокомнатная квартира 36,27 кв.м в г. Реутов
Авторы проекта: Тамара Воронцова и Ольга Углова, студия «Свой дизайн»

Площадь квартиры чуть больше 36 кв.м. На момент покупки в квартире была устаревшая обстановка из 90-х годов. Жилье требовало капитального ремонта. Планировка полностью устраивала заказчиков, все стены оставили на своих местах.

В качестве основного цвета использовали насыщенный сине-зеленый, вызывающий ассоциации с морскими волнами. Детали черного цвета отсылают к морским глубинам и темному тропическому небу, оранжевые акценты — к загадочным коралловым рифам.

Комната (гостиная и спальня)

Комната ДО ремонта. Проект студии «Свой дизайн»; автор фото: Алексей Чеботарь
Комната ДО ремонта. Проект студии «Свой дизайн»; автор фото: Алексей Чеботарь

Белые окна во всех помещениях заменили стеклопакетами с графитовыми рамами — заказчица была категорически против белого цвета в интерьере. Радиаторы отопления, плинтусы, подоконники и даже внутренние поверхности шкафов выполнили в том же оттенке. На пол в комнате уложили ламинат, стены покрыли матовой влагостойкой краской, потолки обшили гипсокартоном и покрасили.

Несмотря на маленькую площадь и наличие всего одной комнаты, от полноценного спального места решили не отказываться. Зоны спальни и гостиной разделили реечной перегородкой. Диван в зоне гостиной разместили спинкой к перегородке, напротив установили вместительный шкаф с антресолью, штангой для вешалок, выдвижными ящиками. На его фасаде — встроенный телевизор. Шкаф оснастили декоративной подсветкой, которая включается вместе со светильниками, встроенными в перегородку. Основное освещение в этой зоне — трековые поворотные светильники над диваном.

Стену за изголовьем кровати украсили фреской с растительным рисунком и задекорировали полиуретановыми панелями. Обивку кровати подобрали в цвет краски на стенах.

Проект студии «Свой дизайн»; автор фото: Алексей Чеботарь
Проект студии «Свой дизайн»; автор фото: Алексей Чеботарь

Над кроватью повесили люстру, с обеих сторон от изголовья — бра с направленным светом для чтения. Интересный акцент — необычная прикроватная тумба с ручками в виде веток.

Кухня

Кухня ДО ремонта. Проект студии «Свой дизайн»; автор фото: Алексей Чеботарь
Кухня ДО ремонта. Проект студии «Свой дизайн»; автор фото: Алексей Чеботарь

На полу в кухне — черный матовый керамогранит с белыми прожилками. В похожем оттенке подобрали искусственный камень для подоконника.

Кухонный гарнитур изготовили на заказ. Фасады верхних шкафов под дерево перекликаются с круглым обеденным столом на конусообразном основании, частично выполненном из бетона. Нижние (сине-фисташковые) — гармонируют с оттенком плитки на фартуке. Потолок опустили до верхних шкафов, чтобы исключить зазор.

Проект студии «Свой дизайн»; автор фото: Алексей Чеботарь
Проект студии «Свой дизайн»; автор фото: Алексей Чеботарь

В обеденной зоне удалось разместить компактный диван Роттердам от divan.ru в нейтральной серой обивке из велюра. Стену за диваном оклеили фреской с тропическими листьями.

В кадре диван Роттердам Velvet Grey от 23 990₽* >>

==========

-10

==========

☀️ Добавьте яркие летние краски, уют и тепло в свой интерьер. Выбирайте мебель и аксессуары для дома со скидками до 60% на распродаже в divan.ru

Прихожая

Прихожая ДО и ПОСЛЕ ремонта.  Проект студии «Свой дизайн»; автор фото: Алексей Чеботарь
Прихожая ДО и ПОСЛЕ ремонта. Проект студии «Свой дизайн»; автор фото: Алексей Чеботарь

Керамогранит на полу в прихожей гармонирует с серыми дверями. Часть стены у входа задекорировали реечными панелями. На них закрепили крючки для верхней одежды. Для мелочей предусмотрели подвесную тумбу с зеркалом. Вместительный шкаф с яркими сине-зелеными фасадами расположили в противоположном конце комнаты.

Проект студии «Свой дизайн»; автор фото: Алексей Чеботарь
Проект студии «Свой дизайн»; автор фото: Алексей Чеботарь

Ванная и туалет

Ванная и туалет ДО ремонта
Ванная и туалет ДО ремонта

Прием: Чтобы визуально расширить пространство микро-ванны и туалета, плитку с геометрическим рисунком завели с пола на стену. Потолок в туалете выкрасили в один цвет со стеной, той же краской покрыли потолок над ванной. Насыщенный оттенок краски придает помещению глубину.

Балкон

Балкон ДО и ПОСЛЕ ремонта. Проект студии «Свой дизайн»; автор фото: Алексей Чеботарь
Балкон ДО и ПОСЛЕ ремонта. Проект студии «Свой дизайн»; автор фото: Алексей Чеботарь

Балкон превратили в рабочий кабинет. Стены и потолок утеплили, заменили остекление, закрепили встроенные точечные светильники. Узкий подоконник расширили и приподняли, установили столешницу из искусственного камня и удобные стулья. От солнца защищают рулонные шторы с эффектом блэкаут.

==========
Оцените интерьер в комментариях, а если материал понравился — не забудьте поставить лайк👍

🖤divan.ru — не только блог про интерьеры, но и производитель доступной дизайнерской мебели. Ищите новые идеи и переходите на сайт, чтобы воплотить их в жизнь.

*Цены актуальны на момент публикации статьи