Найти в Дзене

Строим дом мечты Z24. Начало возведения стен и первые впечатления о бригаде рабочих

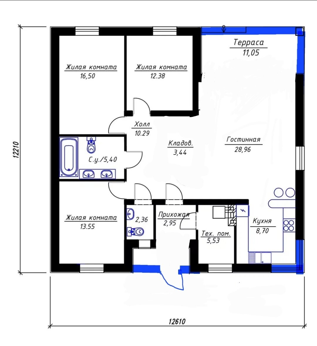
Старший умный был детина, средний сын и так и сяк, младший вовсе был дурак. Вот так мы с мужем охарактеризовали наших строителей. Это стало понятно почти сразу, но вначале все было как положено. Иван, наш прораб, привез 3 работников из солнечного Узбекистана в назначенное время в назначенное место. Они быстро заселились, съездили в магазин за продуктами и мы пошли рисовать проемы на фундаменте, т.к. немного корректировали их местоположение. Ориентировались этим планом, в который синим внесли корректировки. А еще мы нечаянно удлинили дом на 10см при заливке фундамента, поэтому показать где будет дверь было очень важно. Первый ряд клали на клей из мешков для лучшей сцепки с фундаментом, остальные ряды на специальный клей-пену. Так проще, быстрее, немного дороже, но меньше мостиков холода, т.к. холод забирается в дом не через газобетон, а через толстые слои строительного раствора. А нашем случае на пену блоки ложатся близко друг к другу и не пропускают холод в дом. Первый ряд был целый,

Старший умный был детина, средний сын и так и сяк, младший вовсе был дурак.

Вот так мы с мужем охарактеризовали наших строителей. Это стало понятно почти сразу, но вначале все было как положено. Иван, наш прораб, привез 3 работников из солнечного Узбекистана в назначенное время в назначенное место. Они быстро заселились, съездили в магазин за продуктами и мы пошли рисовать проемы на фундаменте, т.к. немного корректировали их местоположение. Ориентировались этим планом, в который синим внесли корректировки.

А еще мы нечаянно удлинили дом на 10см при заливке фундамента, поэтому показать где будет дверь было очень важно.

-2

Первый ряд клали на клей из мешков для лучшей сцепки с фундаментом, остальные ряды на специальный клей-пену. Так проще, быстрее, немного дороже, но меньше мостиков холода, т.к. холод забирается в дом не через газобетон, а через толстые слои строительного раствора. А нашем случае на пену блоки ложатся близко друг к другу и не пропускают холод в дом.

Первый ряд был целый, без разрывов, со второго ряда уже шел проем под дверь.

Мы сразу обратили внимание, что клал блоки только один рабочий. Всегда! Второй отпиливал, подносил, подавал. Третий был какой-то странный. Он больше по мелочи помогал, организовывал быт, готовил, но всегда был на подхвате, не отлынивал от работы. Скорее всего это какая-то внутренняя иерархия. Все вопросы мы решали с главным. Первые ряды укладывались очень быстро, по 2-3 ряда в день.

Каждый третий ряд штробился и армировался. Обратите внимание, как плотно лежат блоки друг к другу. Это как раз таки благодаря пене. Мы даже пробовали оторвать блок, приклеенный на пену. Не получилось. Значит, наш дом будет не как у Ниф-Нифа!

-3

-4

Бригада работала слаженно, каждый знал свое дело, бытовка стояла вдали, ребята нам не мешали, культурные различия тоже.

-5

Рядом с ней они сколотили импровизированный душ, обтянув стойки баннерами и там мылись по вечерам. Работали практически с рассвета до заката. Шумные работы делали с 9 утра. Отдыхали в дождливые дни.

Я с коляской регулярно гуляла мимо стройки, заодно контролируя процесс. Или делала вид, что контролирую)). Фотографировала этапы работ, отправляла мужу.

Прораб всегда был на связи и приезжал практически через день.

В следующей статье я расскажу про оконные проемы и напишу список очередных покупок, необходимых для стройки. С ценами!

Если у вас есть вопросы, задавайте! При ответе на сложные подключу мужа, он глубже погружался в процесс и помнит каждую мелочь. И нам оказалось очень интересно вспоминать, как это было. Я постоянно с ним консультируюсь.

Подписывайтесь на мой канал, впереди много интересного!