Добавить в корзинуПозвонить
Найти в Дзене

Как спроектировать фундамент? Или "Не ссы! Я 100 раз так делал"

Несмотря на заметно растущий уровень качества строительной отрасли и специалистов, задействованных в ней, все еще не редко можно встретить беспечное отношение не только к возведению стен и кровли, но даже к фундаменту. "Не ссы! Я 100 раз так делал" - как только вы слышите нечто подобное, задумайтесь о том, что на 101й раз везение может покинуть "умельца". Ваш дом не заслуживает такого отношения! Строительство - дело серьезное и начинать необходимо с проектирования, особенно его основания - фундамента! В этой статье расскажем про подход к проектированию фундамента в строительной компании А3 Констракшн Этапы проектирование фундамента: Как видите, проектирование фундамента - процесс, требующий профессиональных знаний, опыта и сноровки. В ином случае фундамент может дать трещины и разрушиться - починить такой фундамент дорого и не всегда возможно. Смотрите также Проконсультироваться. Записаться на просмотр дома +7 (499) 647-81-54, mail@a3.house Больше полезных видео на Youtube
Оглавление

Несмотря на заметно растущий уровень качества строительной отрасли и специалистов, задействованных в ней, все еще не редко можно встретить беспечное отношение не только к возведению стен и кровли, но даже к фундаменту. "Не ссы! Я 100 раз так делал" - как только вы слышите нечто подобное, задумайтесь о том, что на 101й раз везение может покинуть "умельца". Ваш дом не заслуживает такого отношения! Строительство - дело серьезное и начинать необходимо с проектирования, особенно его основания - фундамента!

В этой статье расскажем про подход к проектированию фундамента в строительной компании А3 Констракшн

А3 Констракшн
А3 Констракшн

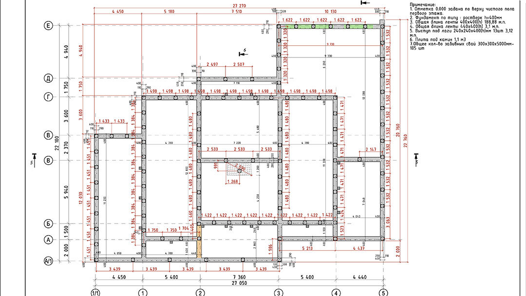
Этапы проектирование фундамента:

  1. Получить и расшифровать результаты геологических изысканий участка
  2. Рассчитать нагрузку проектируемого здания (зависит от материала и архитектуры будущего дома)
  3. Сопоставить данные по нагрузке дома с несущей способностью грунтов
  4. Выбрать тип фундамента: сваи + ростверк, ленточный фундамент, плитный фундамент или комбинация этих типов
  5. Проанализировать химический состав грунтов. Эта информация даст понимание, какой тип материалов использовать. Металлические винтовые, забивные, буронабивные и другие сваи
  6. С учетом уровня грунтовых вод, принять решение об отводе вод (Дренажная система)
  7. Проанализировать рельеф местности. Если перепад на участке большой, рассмотреть возможность перехода на цоколь, высокий ростверк, подвесной ростверк. Если по той или иной причине переход невозможен, сделать выемку грунта с монтажом подпорной стенки либо предложить Заказчику выровнять грунт (отсыпка с тромбовкой)
  8. Рассчитать высоту фундамента, она зависит от высоты снежного покрова в регионе
  9. Рассчитать площадь фундамента, которая зависит от архитектуры. Обратите внимание, что при отделке фасада облицовочными материалами, некоторые из них необходимо опирать на фундамент, например клинкерный кирпич. Это необходимо учесть при расчетах
  10. Спроектировать закладные под инженерные коммуникации. Важно учитывать расположение ввода в дом инженерных коммуникаций, таких как канализация, водоснабжение, электричество и слаботочные сети, трубы для теплого пола при утепленной шведской плите (УШП)
  11. Предусмотреть усиление фундамента в некоторых точках. Камин, дымоход, джакузи, купель, бильярдный стол и другие тяжелые сооружения требуют локального усиления фундамента под собой.
  12. Распределить продухи для вентиляции подпольного пространства
-2

Как видите, проектирование фундамента - процесс, требующий профессиональных знаний, опыта и сноровки. В ином случае фундамент может дать трещины и разрушиться - починить такой фундамент дорого и не всегда возможно.

А3 Констракшн
А3 Констракшн

Смотрите также

Проконсультироваться.
Записаться на просмотр дома
+7 (499) 647-81-54, mail@a3.house

Больше полезных видео на Youtube

Дом на ЧПУ. Как это сделано? | Модульно-Композитный Дом A3 PLYDOM
Дом из фанеры? Фанеру ведёт? Что влияет на качество дома | A3 PLYDOM #домизфанеры #plydom
Не страшны морозы. Утепление модульно-композитного дома | A3 PLYDOM
Дом на ЧПУ. Уникальное место каждой детали | A3 HOUSE #A3_FASTDOM