Найти в Дзене
ДОМ с умом

Проект "Альба": современный дом 4 спальнями и террасой

Это двухэтажный дом с 4 спальнями площадью 267 м². Большие окна, просторная кухня-гостиная с выходом на террасу создают идеальную атмосферу для комфортной повседневной жизни и веселых встреч с друзьями и близкими. Характеристики: Общая площадь: 267,9 кв.м
Жилая площадь: 205,3 кв.м
Габариты: 18,5 м х 16,8 м
Фундамент: монолитная железобетонная плита
Стены: газобетонный блок 400 мм, утеплитель 100 мм
Отделка фасада: декоративная штукатурка
Межэтажное и чердачное перекрытия - железобетонные плиты перекрытия
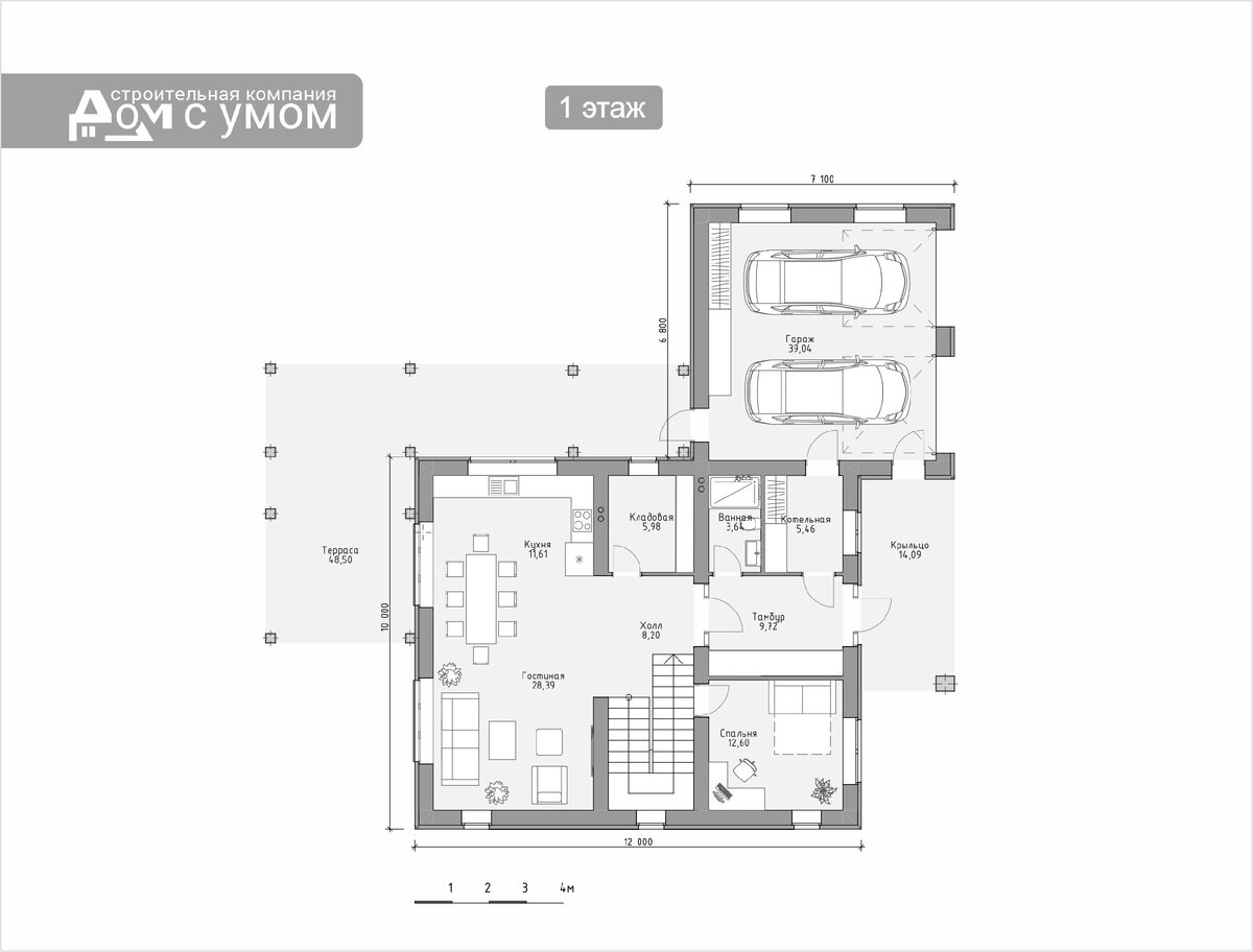
Крыша - из металлочерепицы по деревянной стропильной системе Планировка: Этот дом в скандинавском стиле наглядно демонстрирует преимущества загородной жизни перед жизнью в квартире. На площади 267 м² мы разместили четыре спальни, кухню-гостиную с террасой, и, конечно, не забыли про хозяйственные помещения и гараж. ▪️▪️▪️▪️▪️▪️▪️▪️▪️▪️▪️▪️▪️▪️▪️▪️▪️▪️▪️▪️▪️▪️▪️▪️▪️▪️▪️▪️▪️▪️▪️
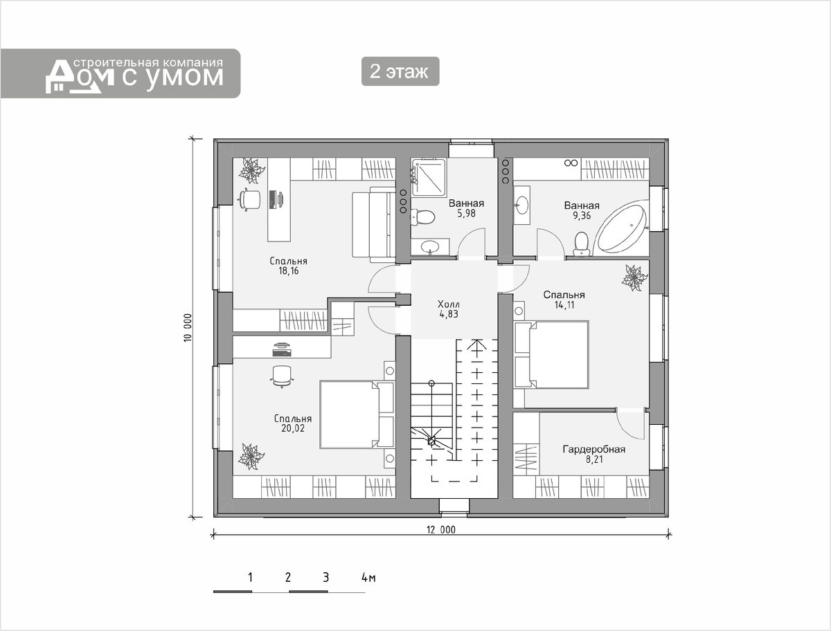
📌Жилая площадь – 205,3 кв.м
📌Кухня-гостиная – 40 кв.м
📌Спальни – 4 шт.
📌Терраса – 48,5 кв.м
?
Оглавление

Это двухэтажный дом с 4 спальнями площадью 267 м². Большие окна, просторная кухня-гостиная с выходом на террасу создают идеальную атмосферу для комфортной повседневной жизни и веселых встреч с друзьями и близкими.

Характеристики:

Общая площадь: 267,9 кв.м
Жилая площадь: 205,3 кв.м
Габариты: 18,5 м х 16,8 м
Фундамент: монолитная железобетонная плита
Стены: газобетонный блок 400 мм, утеплитель 100 мм
Отделка фасада: декоративная штукатурка
Межэтажное и чердачное перекрытия - железобетонные плиты перекрытия
Крыша - из металлочерепицы по деревянной стропильной системе

Планировка:

Этот дом в скандинавском стиле наглядно демонстрирует преимущества загородной жизни перед жизнью в квартире. На площади 267 м² мы разместили четыре спальни, кухню-гостиную с террасой, и, конечно, не забыли про хозяйственные помещения и гараж.

▪️▪️▪️▪️▪️▪️▪️▪️▪️▪️▪️▪️▪️▪️▪️▪️▪️▪️▪️▪️▪️▪️▪️▪️▪️▪️▪️▪️▪️▪️▪️
📌Жилая площадь – 205,3 кв.м
📌Кухня-гостиная – 40 кв.м
📌Спальни – 4 шт.
📌Терраса – 48,5 кв.м
📌Гараж – на 2 авто
▪️▪️▪️▪️▪️▪️▪️▪️▪️▪️▪️▪️▪️▪️▪️▪️▪️▪️▪️▪️▪️▪️▪️▪️▪️▪️▪️▪️▪️▪️▪️▪️▪️
Стоимость проектной документации (серии АР, КР) - 30 000 руб.