Найти в Дзене
Эдуард Суханов

Два варианта шкафа в нишу

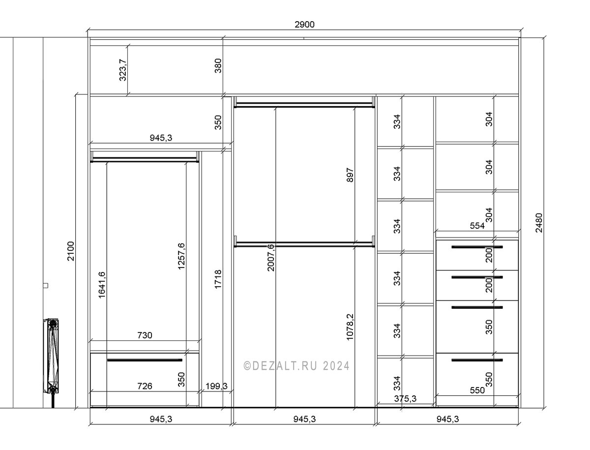
Обратился человек, попросил в нишу посчитать два шкафа, шкаф-купе и распашной. Я изобразил сначала шкаф-купе, следом распашной. Внешний вид шкафов сделал на свое усмотрение. Вверху балка выпирает внутри ниши, жаль, место сжирает. Ну и распашной шкаф. В обоих случаях присутствуют три огромных ящика. В распашном шкафу мне пришлось ставить вертикальные планки, чтобы можно было петли установить.

Обратился человек, попросил в нишу посчитать два шкафа, шкаф-купе и распашной.

Я изобразил сначала шкаф-купе, следом распашной. Внешний вид шкафов сделал на свое усмотрение.

Вверху балка выпирает внутри ниши, жаль, место сжирает.

Ну и распашной шкаф. В обоих случаях присутствуют три огромных ящика. В распашном шкафу мне пришлось ставить вертикальные планки, чтобы можно было петли установить.