Добавить в корзинуПозвонить
Найти в Дзене
Proof House

Барнхаус - актуально в 2025?

Гармония между человеком и пространством. Новый проект архитектурной студии PROOFHOUSE Технико-экономические показатели: Скачать 3D модель дома для просмотра можно по этой 👉 ссылке в нашем телеграм-канале. Подписывайтесь на наш телеграм-канал https://t.me/proof_house, скачиваем и не забываем поставить лайк. Инструкция по просмотру 3D модели по этой 👉 ссылке. Барнхаус представляет собой современный и стильный вариант загородного дома, который сочетает в себе минималистичность, функциональность и эстетическую привлекательность. Недавно мы показывали проект каркасного дома в стиле Барнхаус, посмотреть можно 👉 здесь Архитектурная студия PROOFHOUSE Создаем архитектуру для жизни. Дома с характером. Дополняем семейные ценности.
Оглавление

Гармония между человеком и пространством. Новый проект архитектурной студии PROOFHOUSE

Проекта дома в стиле Барнхаус

Технико-экономические показатели:

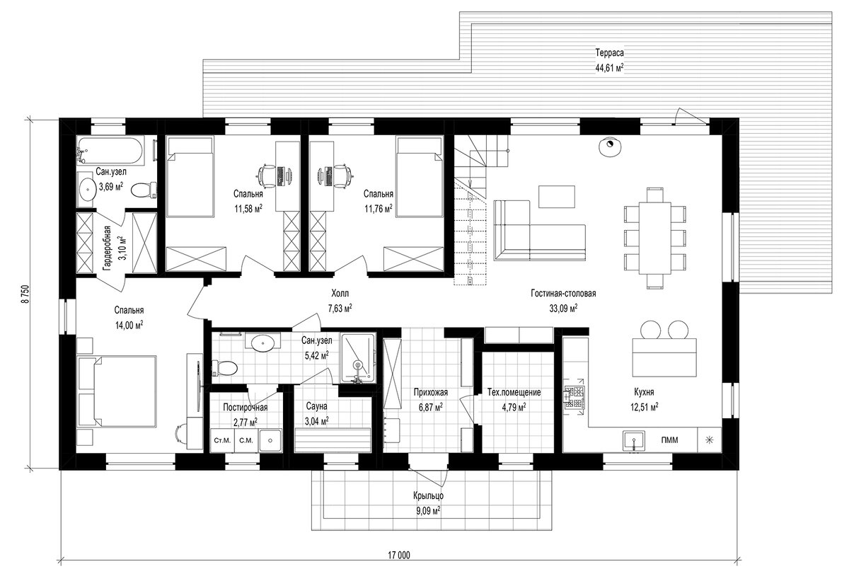
  • Размеры - 17 х 8,75 м.;
  • Общая площадь без крылец и террасы - 162 м.кв;
  • Площадь 1 этажа - 120 м.кв.
  • Площадь мансардного этажа - 42 м.кв.
  • Площадь террасы - 44 м.кв;
  • Площадь крыльца - 9 м.кв.;
  • Фундамент - монолитная ж/б плита;
  • Стены - газобетонный блок;
  • Перекрытие - по деревянным балкам;
  • Стропильная система - сухая строганая доска;
  • Отделка фасада - кликфальц/деревянный планкен;
  • Покрытие кровли - кликфальц;
  • Покрытие террасы и крыльца - палубная доска 95х36;
  • Отделка цоколя - керамогранит;
План 1 этажа
План 1 этажа
План мансардного этажа
План мансардного этажа

Скачать 3D модель дома для просмотра можно по этой 👉 ссылке в нашем телеграм-канале.
Подписывайтесь на наш телеграм-канал https://t.me/proof_house, скачиваем и не забываем поставить лайк.
Инструкция по просмотру 3D модели по этой 👉 ссылке.

Визуализация дома в стиле Барнхаус

Проект барнхаус
Проект барнхаус
Дом барнхаус
Дом барнхаус

Барнхаус представляет собой современный и стильный вариант загородного дома, который сочетает в себе минималистичность, функциональность и эстетическую привлекательность.

Стиль барнхаус
Стиль барнхаус
Барнхаус фото
Барнхаус фото

Недавно мы показывали проект каркасного дома в стиле Барнхаус, посмотреть можно 👉 здесь

Архитектурная студия PROOFHOUSE
Создаем архитектуру для жизни. Дома с характером. Дополняем семейные ценности.