Найти в Дзене

Обнаружение скрытой электропроводки в квартире

Скрытая электропроводка в квартире часто становится источником хлопот при проведении ремонтных работ. Невозможность увидеть провода глазами требует применения специальных методов обнаружения, чтобы не нанести ущерб проводке и обеспечить безопасность. В этой статье мы рассмотрим, как можно обнаружить скрытую электропроводку в квартире, не прибегая к услугам профессионалов. Использование индикатора напряжения Необходимый инструмент для определения скрытой проводки — это индикатор напряжения. Он представляет собой устройство, которое способно определить электромагнитные поля в стенах и выдать звуковой или световой сигнал при их обнаружении. Применение детектора металла Детектор металла — еще один инструмент, который поможет вам обнаружить скрытую проводку. Он реагирует на металлические элементы в стенах, издавая при этом звуковой сигнал или мигая лампочкой. Использование тепловизора Тепловизоры позволяют «увидеть» тепло, выделяемое электрическими проводами в результате протекания тока. Эт
Оглавление

Скрытая электропроводка в квартире часто становится источником хлопот при проведении ремонтных работ. Невозможность увидеть провода глазами требует применения специальных методов обнаружения, чтобы не нанести ущерб проводке и обеспечить безопасность. В этой статье мы рассмотрим, как можно обнаружить скрытую электропроводку в квартире, не прибегая к услугам профессионалов.

Индикатор скрытой проводки. Источник фото tam-bet.ru
Индикатор скрытой проводки. Источник фото tam-bet.ru

Использование индикатора напряжения

Необходимый инструмент для определения скрытой проводки — это индикатор напряжения. Он представляет собой устройство, которое способно определить электромагнитные поля в стенах и выдать звуковой или световой сигнал при их обнаружении.

  1. Включите индикатор напряжения и поднесите его к стене.
  2. Медленно перемещайте инструмент вдоль стены.
  3. Когда приблизитесь к месту с проводкой, устройство подаст сигнал.
  4. Целесообразно пройтись по всей площади стены, чтобы картографировать расположение проводов.

Применение детектора металла

Детектор металла — еще один инструмент, который поможет вам обнаружить скрытую проводку. Он реагирует на металлические элементы в стенах, издавая при этом звуковой сигнал или мигая лампочкой.

  1. Включите детектор металла.
  2. Плавно ведите устройство по поверхности стены.
  3. Обратите внимание на изменение сигнала устройства.

Использование тепловизора

Тепловизоры позволяют «увидеть» тепло, выделяемое электрическими проводами в результате протекания тока. Это профессиональное устройство, которое подойдет для точного определения местоположения проводки.

  1. Включите тепловизор и направьте его на интересующий участок стены.
  2. Изучите тепловое изображение, обнаружив места, где температура отличается.
  3. Места повышенной температуры могут указывать на скрытые провода.
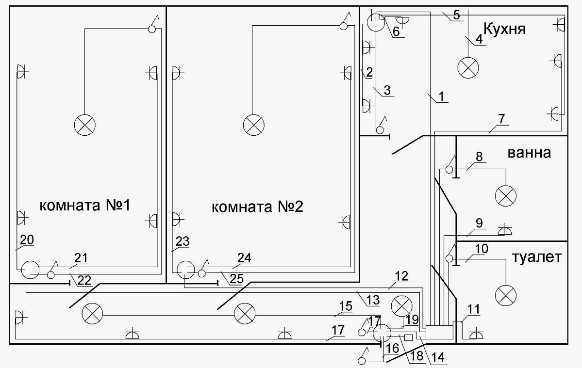
План электропроводки в квартире. Источник фото les-stroi.ru
План электропроводки в квартире. Источник фото les-stroi.ru

Обращение к планам квартиры

Иногда информацию о расположении проводки можно получить, раздобыть электрические планы вашей квартиры. Это может быть непросто, но если квартира находится в новостройке или жилом комплексе, застройщик или управляющая компания могут предоставить вам эти данные.

Безопасность прежде всего

Независимо от выбранного способа, помните о безопасности. Убедитесь, что устройства исправны и используются строго по инструкции. Если вы не уверены в своих силах — лучше обратитесь к квалифицированным специалистам.

Заключение

Обнаружение скрытой электропроводки — необходимая мера предосторожности при проведении ремонтных работ. Это помогает избежать повреждения проводки и последующих неудобств и дополнительных расходов на ремонт. Используйте предложенные методы и инструменты с умом и осторожностью.

Если вам понравилась статья, то подписывайтесь на канал! Впереди ещё много интересного и познавательного