Найти в Дзене

Однушка в Одинцово: вместить всё

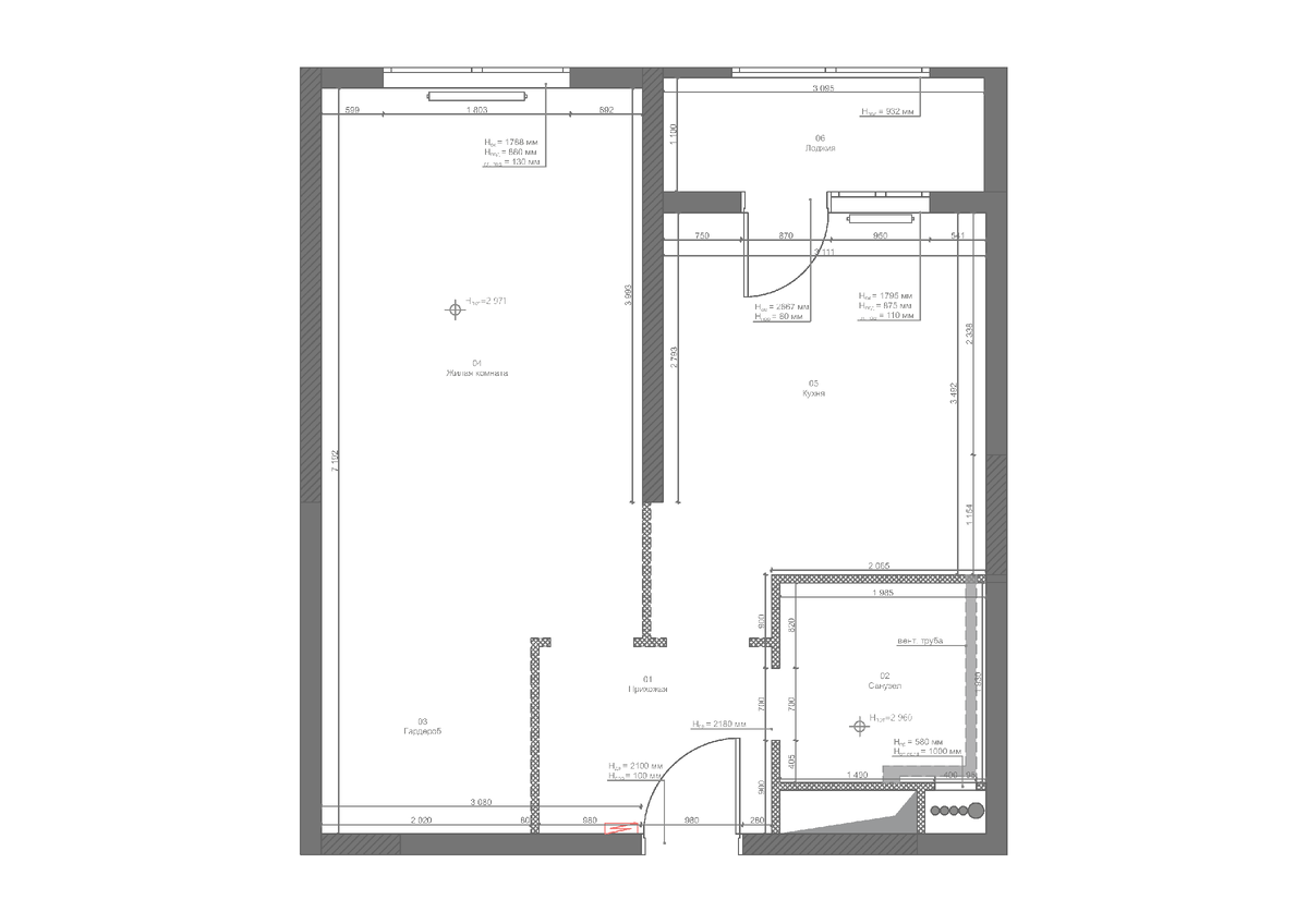
Что можно уместить в однушке? Загибаем пальцы: отдельную спальню, гостиную, гардеробную, санузел, кухню-столовую, прихожую и даже кабинет на балконе. Особенно если подойти к делу с умом и обратиться за помощью к студии MANERA DESIGN. Ее дизайнеры Анастасия Кригер и Виктория Анисимова эффективно использовали каждый из 40 кв.м., не потеряв ощущение глубины. Заказчица любит проводить время с друзьями и семьей, поэтому гостиную нельзя было расположить «по остаточному принципу». Общественную зону отделили от спальни с помощью стены с дверью-невидимкой и с вертикальными рядами стеклоблоков. Они стали главной фишкой проекта, подчеркнули высокие потолки и заменили собой окно — через матированное стекло свободно льется солнечный свет из спальни. Добавили пухлый уютный диван-трансформер, книжные полки и невесомый кофейный столик — пространство для приема гостей готово! А ковер ручной работы Dovlet House «привнес свежести и немного весеннего шлейфа», как отмечает Анастасия Кригер. У гостиной есть
Оглавление
Однушка в Одинцово: вместить всё!

Что можно уместить в однушке? Загибаем пальцы: отдельную спальню, гостиную, гардеробную, санузел, кухню-столовую, прихожую и даже кабинет на балконе. Особенно если подойти к делу с умом и обратиться за помощью к студии MANERA DESIGN. Ее дизайнеры Анастасия Кригер и Виктория Анисимова эффективно использовали каждый из 40 кв.м., не потеряв ощущение глубины.

  • Квартира 40 м2 в монолитном доме в Одинцово, Московская область. 1 спальня, кухня-гостиная, гардеробная. 1 санузел.
    Заказчик: молодая девушка.
-2

Заказчица любит проводить время с друзьями и семьей, поэтому гостиную нельзя было расположить «по остаточному принципу». Общественную зону отделили от спальни с помощью стены с дверью-невидимкой и с вертикальными рядами стеклоблоков. Они стали главной фишкой проекта, подчеркнули высокие потолки и заменили собой окно — через матированное стекло свободно льется солнечный свет из спальни.

-4
-5

Добавили пухлый уютный диван-трансформер, книжные полки и невесомый кофейный столик — пространство для приема гостей готово! А ковер ручной работы Dovlet House «привнес свежести и немного весеннего шлейфа», как отмечает Анастасия Кригер.

-6

У гостиной есть и скрытая функция — дополнительное место для хранения сезонных и крупногабаритных вещей. Вы не увидите его на фотографиях: шкаф спрятался в потайной нише за диваном. Так дизайнеры обыграли фрагмент несущей стены, добавив сверху деревянные полки для мелочей.

-7

Главной радостью хозяйки стал заветный столик для макияжа в спальне, о котором она мечтала. Эту роль взяла на себя широкая столешница-подоконник, растянувшаяся по всей стене. «Девушки, которые видят это решение, всегда говорят: “Я тоже так хочу!”» — улыбается Виктория Анисимова.

-8

Естественный свет из окна позволяет с комфортом делать мейкап, а вечером всегда можно включить дополнительный свет за изголовьем. Изумрудный оттенок вертикальной ниши с подсветкой идеально совпадает с обивкой кровати и тумбами La Redoute.

-10
-11

Свежая зеленоватая гамма перетекает и в остальные комнаты. Например, нижняя часть кухонного гарнитура выполнена в бодром мятном оттенке. Верхние шкафы кофейных тонов часто утяжеляют пространство, но здесь удалось избежать эффекта массивности. Всё благодаря тому, что верхние секции не дублируют нижние. Открытые полки с подсветкой успешно заменили часть ящиков.

Вас смущает «деревянный пол» на кухне? И зря: на самом деле это качественный замкóвый кварцвинил бренда Alpine Floor. Это износостойкое покрытие, за которым легко ухаживать. Его выложили по всей квартире единым контуром, визуально расширив пространство.

-12
-13
Авторы проекта: Анастасия Кригер и Виктория Анисимова (Manera Design)
Авторы проекта: Анастасия Кригер и Виктория Анисимова (Manera Design)

Приглянулась вещица или мебель? Смотри бренды и ТМ в этом интерьере↓

Прихожая. Мебель: индивидуальное изготовление | Напольное покрытие во всей квартире: кварц винил (SPC ламинат) Alpine Floor | Краска для стен во всей квартире: Majestic (серия Eggshell).
Кухня-гостиная. Мебель: индивидуальное изготовление | Плитка на фартуке: Equip (Village) | Диван: Divan.ru | Ковер: Dovlet House.
Cпальня. Прикроватные тумбы: La Redout.
Ванная комната. Индивидуальное изготовление | Плитка «елочка»: Equip | На акцентной стене: Equipe (Chevron) | Для основной массы использован Крупноформатный керамогранит: ITALON.
Гардеробная. Индивидуальное изготовление.
-15
-16
-17

Но самым интересным отделочным материалом оказалась молочная плитка Equipe Chevron в санузле. Испанский производитель выпекает ее в печи, поэтому двух одинаковых изделий не найти. Это возмутило строителей: «Плитка неровная!». Да и укладка «шеврон» не добавила им хорошего настроения. Выручил излюбленный метод всех дизайнеров — раскладка на полу. А погрешности в размерах плитки компенсировали за счет швов. Изделия ручной работы всегда чуточку несимметричны, зато в них есть душа — как и в этом проекте.

Для связи с авторами

Дизайн: Анастасия Кригер, Виктория Анисимова e-mail: info@archmanera.ru | web: maneradesign.com | 8 (926) 701 09 92.
Фотограф: Евгения Муравьева.
Стилист: Евгения Давыдова.

Tagged #1комнатнаяквартира #30-50м² #MANERADESIGN #АнастасияКригер #ВикторияАнисимова #Квартира

-18
-19

Хотите вдохновиться или показать миру собственный проект? Добро пожаловать на сайт redesign-home.ru и на страницы красочного российского журнала о дизайне и архитектуре Redesign!