Добавить в корзинуПозвонить
Найти в Дзене
DIVAN.RU

Нереальный интерьер: квартира 57 кв.м по картинкам из Pinterest

Если вы до сих пор думаете, что ремонт от застройщика и стильный дизайн — понятия несовместимые, то этот проект вас точно удивит. О КВАРТИРЕ
Объект: евродвушка 57 кв.м, ЖК «Волоколамское 24», г. Москва
Автор проекта и декоратор: хоумстейджер Ольга Мирзабаева, автор фото Константин Пырьев
Бюджет ремонта: 1,45 млн рублей Эта интерьерная история началась с картинок: заказчики предоставили автору проекта референсы, собранные из Pinterest. Хоумстейджеру Ольге Мирзабаевой предстояло собрать стильное пространство по пазлам, взяв из каждой визуализации самое лучшее. В квартире есть просторная кухня-гостиная площадью 27,5 кв.м и мастер-спальня с персональным санузлом и мини-гардеробной. В прихожей зоне застройщиком предусмотрена ниша, где также организовали хранение. Базой для будущего интерьера стала отделка застройщика. Стены в кухне-гостиной перекрасили в сложный серо-бежевый оттенок, который по-разному раскрывается в зависимости от света. Вдоль одной из стен установили стеллаж с оригинально
Оглавление

Если вы до сих пор думаете, что ремонт от застройщика и стильный дизайн — понятия несовместимые, то этот проект вас точно удивит.

О КВАРТИРЕ
Объект:
евродвушка 57 кв.м, ЖК «Волоколамское 24», г. Москва
Автор проекта и декоратор: хоумстейджер Ольга Мирзабаева, автор фото Константин Пырьев
Бюджет ремонта: 1,45 млн рублей

Эта интерьерная история началась с картинок: заказчики предоставили автору проекта референсы, собранные из Pinterest. Хоумстейджеру Ольге Мирзабаевой предстояло собрать стильное пространство по пазлам, взяв из каждой визуализации самое лучшее.

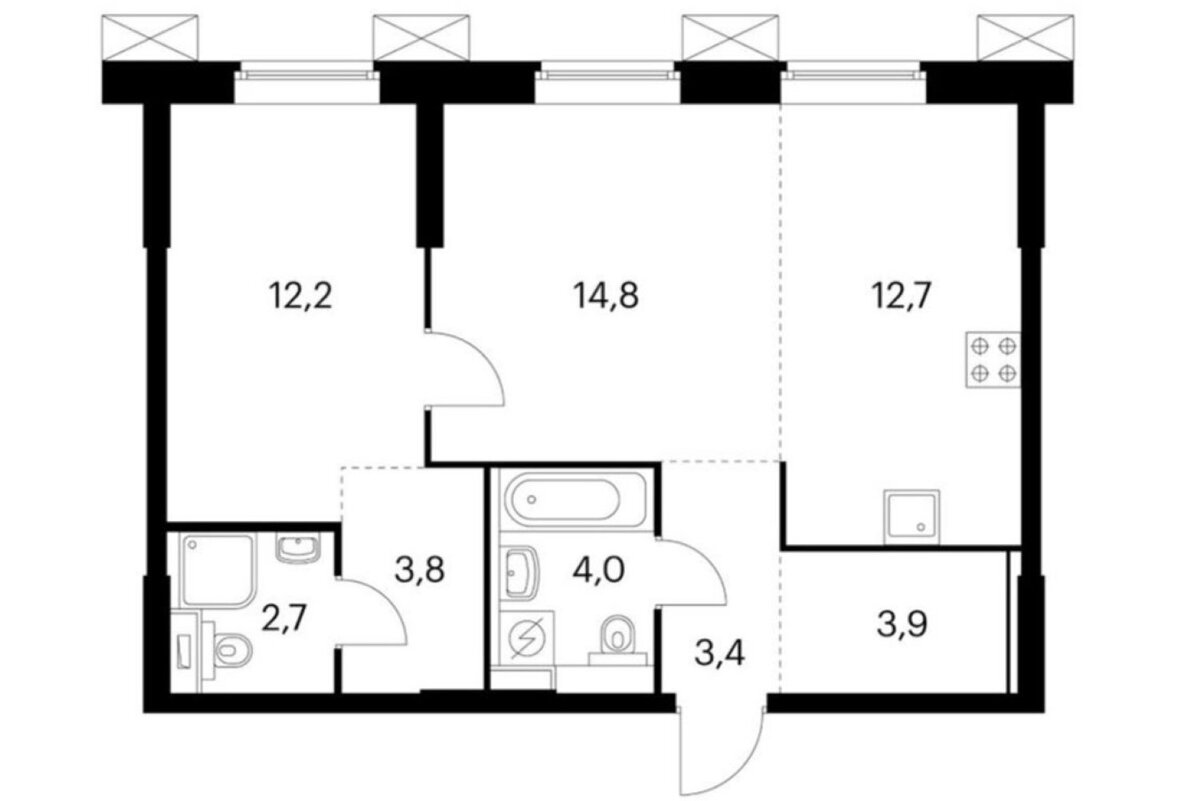
Планировка

В квартире есть просторная кухня-гостиная площадью 27,5 кв.м и мастер-спальня с персональным санузлом и мини-гардеробной. В прихожей зоне застройщиком предусмотрена ниша, где также организовали хранение.

Планировка квартиры
Планировка квартиры

Кухня-гостиная

Базой для будущего интерьера стала отделка застройщика. Стены в кухне-гостиной перекрасили в сложный серо-бежевый оттенок, который по-разному раскрывается в зависимости от света.

Вдоль одной из стен установили стеллаж с оригинальной архитектурой: вертикальные стойки расположены в нем под углом 45°, а глубина конструкции составляет всего 15 см. Стеллаж не загромождает пространство и в какой-то мере даже выступает арт-объектом.

Кухня-гостиная из проекта хоумстейджера Ольги Мирзабаевой; автор фото: Константин Пырьев
Кухня-гостиная из проекта хоумстейджера Ольги Мирзабаевой; автор фото: Константин Пырьев

Обратите внимание на люстру: такой биофильный дизайн в виде бутона сегодня на пике популярности. Цветочная тематика стала трендом и теперь прослеживается во всех современных стилях.

Местом притяжения в гостиной стал угловой диван Онте от отечественного производителя divan.ru. Выбирать мебель мы намерено поехали в шоу-рум и не прогадали: обивка из букле покорила с первого взгляда. Остановиться оказалось так сложно, что 80 % мебели в этот проект мы заказали именно на divan.ru. Концептуальный столик в мятном оттенке, фактурный ковер и тумбу с натуральным ротангом нашли здесь же.

В кадре диван Онте, divan.ru от 82 990₽* >>

-4

▶️Этот диван сейчас можно купить с выгодой 14 000₽!* Выбирайте то, что подходит вам и вашему дому, на распродаже со скидками* до 60% >>

Визуальным центром обеденной зоны стал стол Хилл от divan.ru. Его монументальное основание декорировано рейками, которые в тандеме с круглой столешницей создают архитектурную игру форм.

В кадре кухонный стол Хилл, divan.ru от 31 990₽* >>

Спальня

В спальне пришлось доработать электрику: провести выводы под настенные бра. Стены перекрасили в серо-голубой, в такт фасадам кухонного гарнитура — прием связывает два помещения и реализует единую концепцию интерьера. Пластиковые плинтусы от застройщика поменяли на дюрополимерные и покрасили их в цвет стен — это визуально увеличивает высоту помещения.

Вопрос меблировки спальни также решил divan.ru. В качестве спального места выбрали кровать Молсон.

Заказчики тщательно подбирали оттенок обивки для кровати, — делится Ольга Мирзабаева. — Удалось даже «примерить» цвета в квартире: прекрасная услуга — бесплатно забрать образцы домой из шоурума, определиться и уже удаленно оформить заказ.
Спальня из проекта хоумстейджера Ольги Мирзабаевой; автор фото: Константин Пырьев
Спальня из проекта хоумстейджера Ольги Мирзабаевой; автор фото: Константин Пырьев

В кадре кровать Молсон, divan.ru от 48 990₽* >>

-7

▶️Выбирайте акционные товары на распродаже в Divan.ru и применяйте к ним дополнительную скидку 5% по промокоду** APRIL5 >>

«Теплого» уюта добавили с помощью древесных оттенков— с этой задачей справились прикроватные тумбы Ивейн на высоких ножках и рабочий стол Рошаль с декором из натурального ротанга.

В кадре письменный стол Рошаль, divan.ru от 23 990₽* >>

Напротив рабочего стола планировали поставить кресло. Но, по всем законам жанра, со временем его завалили бы. Было принято решение разместить здесь декоративную лестницу, которая необычно смотрится в интерьере и служит вешалкой быстрого доступа.

Основное хранение организовали в шкафу, который встроили в нишу от застройщика.

Санузел в мастер-спальне

Ремонт от застройщика в приватном санузле переделали полностью: заменили плитку, демонтировали натяжной потолок и покрасили его в цвет стен мокрой зоны. Пластиковый поддон заменили на модель из искусственного камня, правда под него пришлось возвести подиум из газоблоков — застройщик вывел коммуникации к душевой слишком высоко. Санузел декорировали функционально: постер на стене спрятал ревизионный люк, а «парящее» зеркало выгодно освещает смотрящего и создает эффектные блики.

Второй санузел

В гостевом санузле заменили только напольное покрытие: новая плитка повторяет все оттенки, которыми оформлена квартира, и делает интерьер динамичнее. Белую затирку заменили на светло-серую — по мнению хоумстейджера такой цвет выглядит мягче, чем черный.

Под ванну установили жалюзийный экран, а в нишу над туалетом встроили шкаф с такими же жалюзийными фасадами — обе конструкции выкрасили в пыльно-мятный цвет.

Прихожая

За зеркальными дверями-купе находится глубокая ниша площадью 3,9 кв.м — там организовали гардеробную. Пуф Гекот в необычном дизайне на деревянных ножках также заказали на divan.ru.

В кадре пуф Гекот, divan.ru от 10 990₽* >>

---------------
Оцените интерьер в комментариях, а если материал понравился — не забудьте поставить лайк.

🖤divan.ru — не только блог про интерьеры, но и производитель доступной дизайнерской мебели. Ищите новые идеи и переходите на сайт, чтобы воплотить их в жизнь.

*Цены актуальны на момент публикации статьи
**Промокод действует на все товары, кроме товаров категории «Ликвидация». Не суммируется с другими промокодами