Найти в Дзене
Сканди | Интерьер

Для пожилой мамы преобразили хрущевку. А вы бы переехали в такую квартиру?

Эта двушка площадью 42 квадрата находится в кирпичной хрущевке серии I-511 — такие пятиэтажки массово строили в конце 1950-х годов по всей Москве и области. Эти дома, квартиры и планировки известны каждому жителю России. Крошечные кухни, узкие балконы, плохая звукоизоляция... И если полвека назад с такими условиями можно было смириться, то сегодня душа требует комфорта. Вот люди и переделывают свои хрущевки — кто-то сносит стены, кто-то перепридумывает зонирование (я уже показывала однушку в хрущевке, где кухню и спальню поменяли местами). Сегодня покажу вам пример еще одной мощной перепланировки. Для пенсионерки — активной, современной, часто путешествующей по стране — отремонтировали квартиру. Из двушки с типовым интерьером сделали что-то невероятное. Объединили кухню и гостиную, сделали стену из стеклоблоков, выделили закуток для гардеробной... Получилось ярко, смело и молодежно (на мой дилетантский вкус). Но хозяйка осталась довольна и даже сказала, что ремонт полностью отражает ее

Эта двушка площадью 42 квадрата находится в кирпичной хрущевке серии I-511 — такие пятиэтажки массово строили в конце 1950-х годов по всей Москве и области.

Так выглядят хрущевки серии I-511. Есть несколько модификаций таких домов — где-то на последнем этаже расположены коммуналки, где-то на первом этаже вместо балконов сделаны лоджии
Так выглядят хрущевки серии I-511. Есть несколько модификаций таких домов — где-то на последнем этаже расположены коммуналки, где-то на первом этаже вместо балконов сделаны лоджии

Эти дома, квартиры и планировки известны каждому жителю России. Крошечные кухни, узкие балконы, плохая звукоизоляция...

И если полвека назад с такими условиями можно было смириться, то сегодня душа требует комфорта. Вот люди и переделывают свои хрущевки — кто-то сносит стены, кто-то перепридумывает зонирование (я уже показывала однушку в хрущевке, где кухню и спальню поменяли местами).

Сегодня покажу вам пример еще одной мощной перепланировки. Для пенсионерки — активной, современной, часто путешествующей по стране — отремонтировали квартиру. Из двушки с типовым интерьером сделали что-то невероятное. Объединили кухню и гостиную, сделали стену из стеклоблоков, выделили закуток для гардеробной...

Получилось ярко, смело и молодежно (на мой дилетантский вкус). Но хозяйка осталась довольна и даже сказала, что ремонт полностью отражает ее непоседливый характер.

📍 Дом находится на улице Сокольническая слободка (рядом с парком Сокольники).

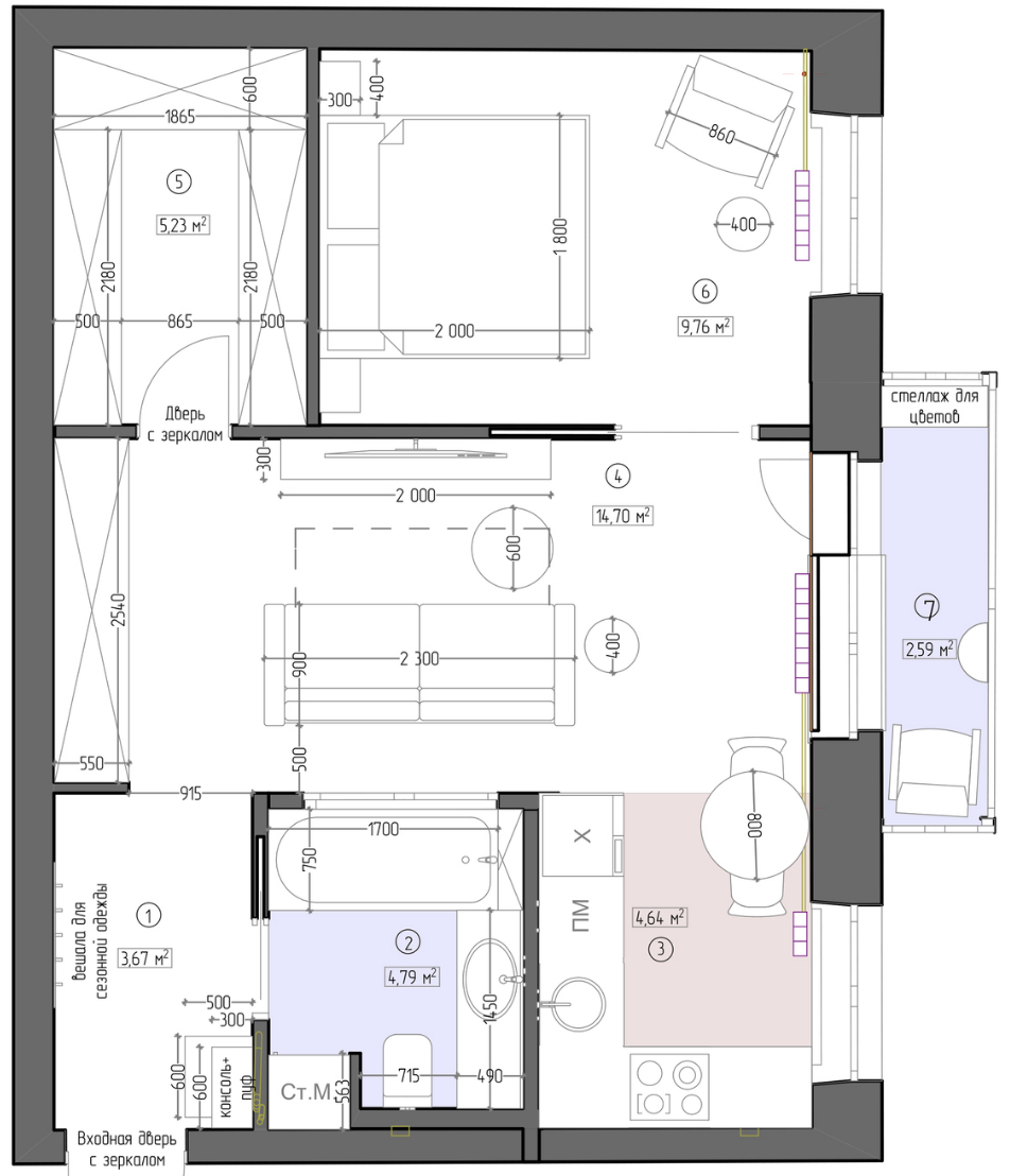
Для начала — планировка квартиры. Уже после ремонта.

Встречали подобные планировки?
Встречали подобные планировки?

И вот как это выглядит в реальной жизни.

Начнем обзор с кухни. Гарнитур изготовлен по заказу. Его фишка в том, что нижние шкафы — распашные, а верхние — раздвижные. Впервые вижу такое сочетание / дизайн по просьбе мамы хозяйки квартиры разрабатывали Анастасия Гурова и Мария Гульбекян
Начнем обзор с кухни. Гарнитур изготовлен по заказу. Его фишка в том, что нижние шкафы — распашные, а верхние — раздвижные. Впервые вижу такое сочетание / дизайн по просьбе мамы хозяйки квартиры разрабатывали Анастасия Гурова и Мария Гульбекян
На полу — плитка Peronda. Мне нравится, что зону кухни и гостиной зонировали с помощью разного напольного покрытия. Это хорошая идея для объединенных помещений
На полу — плитка Peronda. Мне нравится, что зону кухни и гостиной зонировали с помощью разного напольного покрытия. Это хорошая идея для объединенных помещений
Вид на кухню-гостиную. Желтые стеклоблоки (цвет за счет освещения в ванной комнате) неплохо сочетаются с зеленым диваном
Вид на кухню-гостиную. Желтые стеклоблоки (цвет за счет освещения в ванной комнате) неплохо сочетаются с зеленым диваном
Стеклоблоки зрительно расширили площадь сразу двух комнат — гостиной и ванной (туда теперь благодаря им попадает естественный свет)
Стеклоблоки зрительно расширили площадь сразу двух комнат — гостиной и ванной (туда теперь благодаря им попадает естественный свет)
Белые стены. Из акцентов — только мебель, стеклоблоки и (внезапно) батареи
Белые стены. Из акцентов — только мебель, стеклоблоки и (внезапно) батареи
Из необычного: шторы есть, но не в комнате, а на балконе
Из необычного: шторы есть, но не в комнате, а на балконе
Даже не верится, что это квартира в хрущевском доме. Лепнина и двухстворчатые двери в спальню добавляют аристократичности
Даже не верится, что это квартира в хрущевском доме. Лепнина и двухстворчатые двери в спальню добавляют аристократичности
А это вместительная гардеробная. Фотосъемка проводилась сразу после ремонта, еще до того, как сюда заехала хозяйка, поэтому в шкафах и на полках пока пустовато
А это вместительная гардеробная. Фотосъемка проводилась сразу после ремонта, еще до того, как сюда заехала хозяйка, поэтому в шкафах и на полках пока пустовато
Темный потолок, обшитое бархатом изголовье кровати, акцентная стена с цветочным принтом — спальня одновременно выглядит и ярко, и гармонично. Вроде деталей много, но они не надоедают
Темный потолок, обшитое бархатом изголовье кровати, акцентная стена с цветочным принтом — спальня одновременно выглядит и ярко, и гармонично. Вроде деталей много, но они не надоедают
Бесшовные обои Affresco — будто какой-то арт-объект в отдельно взятой квартире
Бесшовные обои Affresco — будто какой-то арт-объект в отдельно взятой квартире
Санузел расширили за счет коридора (такая перепланировка разрешена). Из фишек: постамент под ванной (это плитка Italon) и настенная плитка, обрывающаяся за 20-25 см до потолка
Санузел расширили за счет коридора (такая перепланировка разрешена). Из фишек: постамент под ванной (это плитка Italon) и настенная плитка, обрывающаяся за 20-25 см до потолка
Стеклоблоки, молочная плитка и латунный смеситель — шикарное комбо
Стеклоблоки, молочная плитка и латунный смеситель — шикарное комбо
Как вам напольное покрытие в прихожей? Это керамогранит Peronda
Как вам напольное покрытие в прихожей? Это керамогранит Peronda
Изначально предполагалось, что зеркало будет находиться на входной двери (это видно и по плану квартиры, который я показала в начале статьи). В процессе обуйстройства от этой затеи отказались
Изначально предполагалось, что зеркало будет находиться на входной двери (это видно и по плану квартиры, который я показала в начале статьи). В процессе обуйстройства от этой затеи отказались

Вот такая хрущевка, которую дочь отремонтировала для своей активной мамы-пенсионерки. Как вам результат? Стильно? Или слишком смело и ярко?

Интересно почитать, как разделятся ваши мнения 🤔📝

У меня есть отдельный раздел с ремонтами в хрущевках. Там уже накопилось 35 квартир с фотографиями ДО и ПОСЛЕ.

Вот 2 ремонта, которые меня особенно впечатлили:

🏠 Семья показала необычную комнату в своей хрущевке (я таких еще не видела)

🔥 Не узнать! Из уставшей советской двушки сотворили чудо — сравните до и после.