Добавить в корзинуПозвонить
Найти в Дзене
АО «ТАМАК»

Обзор просторного двухэтажного дома с террасой

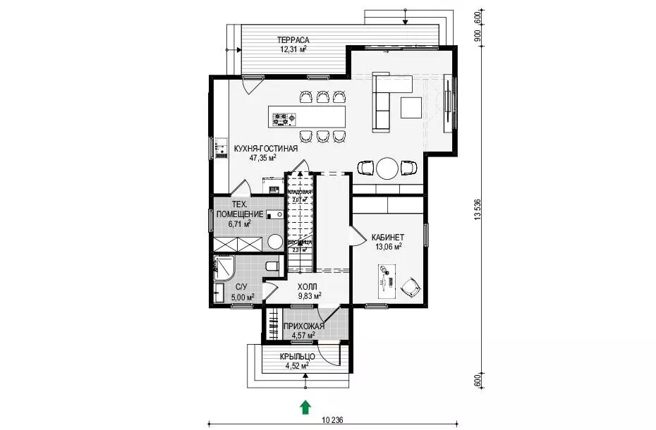
Двухэтажный проект «Магдебург–164» — это коттедж в европейском стиле, лаконичный внешний вид которого гармонично сочетается с его внутренним наполнением. Это комфортабельный дом, прекрасно адаптированный для круглогодичного проживания. Его общая площадь составляет 180 м². Планировкой предусмотрено наличие просторной общей зоны, а также кабинета, 3 спален и 3 санузлов.  Дом будет комфортен для семьи из 4-5 человек, но при желании кабинет на нижнем этаже возможно использовать в качестве еще одной спальни. Подробнее о проекте и технологии строительства ХАРАКТЕРИСТИКИ ПРОЕКТА: Подробнее о проекте и технологии строительства АО «ТАМАК» - крупнейшее в России индустриальное предприятие по проектированию, производству и строительству быстровозводимых домов и домов из клееного бруса. Крупнейший производитель цементно-стружечных плит. Телефон: 8(800)300-89-77
Наш сайт: https://www.tamak.ru/ Подписывайтесь на канал и ставьте лайки! :)

Двухэтажный проект «Магдебург–164» — это коттедж в европейском стиле, лаконичный внешний вид которого гармонично сочетается с его внутренним наполнением. Это комфортабельный дом, прекрасно адаптированный для круглогодичного проживания. Его общая площадь составляет 180 м². Планировкой предусмотрено наличие просторной общей зоны, а также кабинета, 3 спален и 3 санузлов.  Дом будет комфортен для семьи из 4-5 человек, но при желании кабинет на нижнем этаже возможно использовать в качестве еще одной спальни.

Подробнее о проекте и технологии строительства

План первого этажа двухэтажного дома «Магдебург 164»
План первого этажа двухэтажного дома «Магдебург 164»
План второго этажа двухэтажного дома «Магдебург 164»
План второго этажа двухэтажного дома «Магдебург 164»

ХАРАКТЕРИСТИКИ ПРОЕКТА:

  • Общая площадь: 180.45 м²
  • Площадь помещений: 163,62 м²
  • Площадь террас и балконов: 16.83 м²
  • Общая площадь 1 этажа: 107.73 м²
  • Общая площадь 2 этажа: 72.72 м²
  • Спальни, шт.: 3
  • Санузлы, шт.: 3
  • Кабинеты, шт.: 1
  • Техническое помещение: да

Подробнее о проекте и технологии строительства

АО «ТАМАК» - крупнейшее в России индустриальное предприятие по проектированию, производству и строительству быстровозводимых домов и домов из клееного бруса. Крупнейший производитель цементно-стружечных плит.

Телефон: 8(800)300-89-77
Наш сайт: https://www.tamak.ru/

Подписывайтесь на канал и ставьте лайки! :)