Найти в Дзене

Наличие современных и «модных» территорий в доме

Проекты домов, разработанные компанией «Армада-ПСК», отличаются привлекательными и современными комнатами, которые являются не просто местом проживания, но и отражением современных тенденций и удобства. Архитекторы компании применяют современный подход к планировке домов, создавая функциональные пространства и учитывая пожелания клиентов на этапе проектирования. В планировке особое внимание уделяется разработке отдельных зон, таких как мастер-спальня, постирочная, кладовая, кухня с кладовой, гардеробная и другие. Каждая из этих зон тщательно продумывается и интегрируется в общий дизайн дома для создания удобного и функционального пространства. Давайте рассмотрим некоторые: В современном доме это уже не скромная комната для сна, это спальня с повышенным уровнем комфорта. Здесь имеются дополнительные удобства, такие как гардеробная, ванная, кабинет и другие функциональные зоны. Мастер-спальня представляет собой комфортное личное пространство, где можно отдохнуть после трудового дня, насл

Проекты домов, разработанные компанией «Армада-ПСК», отличаются привлекательными и современными комнатами, которые являются не просто местом проживания, но и отражением современных тенденций и удобства. Архитекторы компании применяют современный подход к планировке домов, создавая функциональные пространства и учитывая пожелания клиентов на этапе проектирования.

Дом по проекту "Корнфилд": https://a-psk.ru/projects/karkas/kornfild/
Дом по проекту "Корнфилд": https://a-psk.ru/projects/karkas/kornfild/

В планировке особое внимание уделяется разработке отдельных зон, таких как мастер-спальня, постирочная, кладовая, кухня с кладовой, гардеробная и другие. Каждая из этих зон тщательно продумывается и интегрируется в общий дизайн дома для создания удобного и функционального пространства. Давайте рассмотрим некоторые:

  • Мастер-спальня

В современном доме это уже не скромная комната для сна, это спальня с повышенным уровнем комфорта. Здесь имеются дополнительные удобства, такие как гардеробная, ванная, кабинет и другие функциональные зоны. Мастер-спальня представляет собой комфортное личное пространство, где можно отдохнуть после трудового дня, насладиться уютной атмосферой и провести время в комфортных условиях.

  • Постирочная

Это инновационное решение в проекте дома, которое позволяет эффективно организовать бытовые дела и обеспечить комфортные условия для выполнения рутинных бытовых задач, связанных со стиркой. Отказ от классического формата ванной комнаты с установленной стиральной машинкой в пользу отдельной специализированной комнаты предлагает множество преимуществ.

  • Кухня с кладовой

Это идеальное решение для обеспечения комфорта и функциональности в вашем доме. Кладовая предоставляет дополнительное пространство для хранения продуктов, кухонной утвари и других необходимых предметов, что позволяет легко и удобно организовать рабочее пространство и поддерживать порядок. Благодаря этому решению кухня приобретает эстетический вид и становится идеальным местом для приготовления пищи и проведения времени в кругу семьи и друзей.

  • Гардеробная для всей семьи не новшество в планировке дома.

Но вместо габаритных шкафов в жилых комнатах рекомендуем создать отдельную гардеробную для всей семьи. Благодаря инновационным материалам и современным системам хранения, она не только поможет оптимизировать пространство, но и сделает ваш быт организованным.

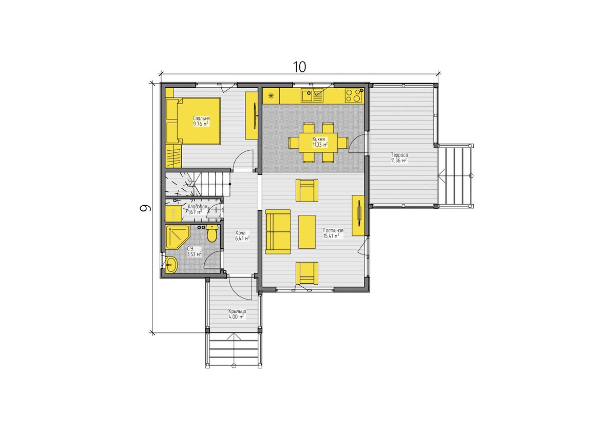
Планировка первого этажа дома по проекту "Корнфилд"
Планировка первого этажа дома по проекту "Корнфилд"
Посмотреть проект: https://a-psk.ru/projects/karkas/kornfild/
Посмотреть проект: https://a-psk.ru/projects/karkas/kornfild/

Жизнь в своем доме должна приносить радость, комфорт и удовольствие. Поэтому стоит уделить внимание планировке, дизайну и обустройству нашего дома, чтобы каждый день проводить его в гармонии с собой и окружающим миром.