Добавить в корзинуПозвонить
Найти в Дзене

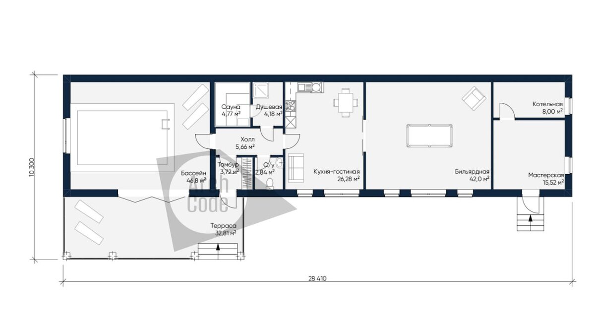
Проект одноэтажного дома с бассейном — «Бесто»

Проект "Бесто" представляет собой уютный дом с бассейном, сауной, бильярдной комнатой и мастерской, созданный для того, чтобы после напряжённых будней можно было насладиться идеальным отдыхом. Площадь данного дома составляет 225,44 квадратных метра, что обеспечивает достаточно пространства для комфортного времяпрепровождения всей семьи. Здесь каждая деталь задумана для того, чтобы удовлетворить потребности домочадцев и создать атмосферу истинного уюта.
Ключевым элементом дома является его уникальное оснащение. Внутри вы найдете крытый бассейн, где можно расслабиться и насладиться водными процедурами в любое время года, а также сауну, где можно отдохнуть и восстановить силы после долгого дня. Для любителей активного времяпрепровождения в доме предусмотрена бильярдная комната, где можно провести время весело и подвигать мышцы. А для творчества и мастерства доступна уютная мастерская, где можно реализовывать свои идеи и проекты. Кроме того, здесь предусмотрена просторная гостиная комната

Проект "Бесто" представляет собой уютный дом с бассейном, сауной, бильярдной комнатой и мастерской, созданный для того, чтобы после напряжённых будней можно было насладиться идеальным отдыхом. Площадь данного дома составляет 225,44 квадратных метра, что обеспечивает достаточно пространства для комфортного времяпрепровождения всей семьи. Здесь каждая деталь задумана для того, чтобы удовлетворить потребности домочадцев и создать атмосферу истинного уюта.

Ключевым элементом дома является его уникальное оснащение. Внутри вы найдете крытый бассейн, где можно расслабиться и насладиться водными процедурами в любое время года, а также сауну, где можно отдохнуть и восстановить силы после долгого дня. Для любителей активного времяпрепровождения в доме предусмотрена бильярдная комната, где можно провести время весело и подвигать мышцы. А для творчества и мастерства доступна уютная мастерская, где можно реализовывать свои идеи и проекты. Кроме того, здесь предусмотрена просторная гостиная комната, идеально подходящая для вечерних посиделок с семьей или друзьями.

Весь проект дома разработан в современном стиле райт, что придает ему современный и стильный вид. Архитектурные решения и дизайн интерьеров сочетают в себе функциональность и эстетику, создавая атмосферу гармонии и комфорта.

-2

Понравился проект? Заказать проект или выбрать подобный можно по телефону: +79323212510. Звоните или пишите. Заявки принимаются по вотцап, телеграмм. Готовы рассчитать для вас смету!

Как построить дом в Тюмени?

Как построить дом в Москве?

Готовые дома в Тюмени

Готовые дома в Москве

Земельные участки в Тюмени

Задать вопрос в ТГ

И подписывайтесь на наш канал, чтобы не пропустить новые интересные проекты.

#проектдома #проектодноэтажногодома #построитьдом #купитьдом

#одноэтажныйдом #лучшиеодноэтажныедома #дом #новыедома