Найти в Дзене
ДОМОСБОР

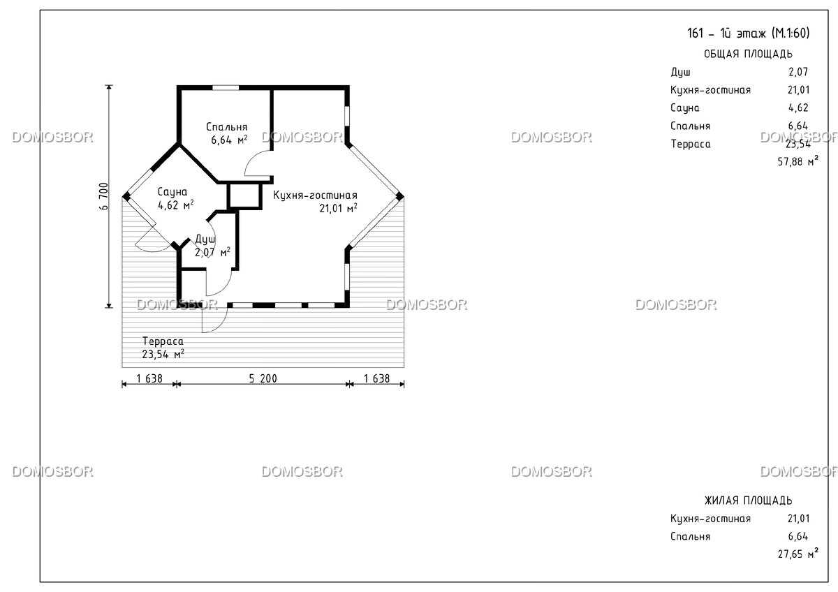
Каменный дом с уютной террасой, который точно вам понравится. Проект GB 161 (общая площадь: 58 м2)

Дорогие друзья! Сегодня рассказываем про очень интересный каменный дом GB 161, который понравится всем, кто ценит уют, эргономичность и долговечность. Давайте познакомимся с этим проектом поближе. О технологии дома: Газобетонный блок — крупноформатный, экологичный материал, который производится из песка, цемента, извести и воды. Эту разновидность ячеистого блока выполняют с применением газообразователей. Прочность блок набирает при воздействии давления и пара в специальной печи – автоклаве, становится искусственным каменным минералом. Рекомендуется приобретать его только на заводе-производителе во избежание подделок. В этом случае вы получите дом со всеми заявленными преимущественными характеристиками: О проекте: Предлагаем Вашему вниманию рассмотреть строительство одноэтажного дома GB 161 из газобетона с такими особенностями как: панорамные окна, сауна, терраса, эркер. Мы предлагаем на Ваш выбор одну из трех комплектаций, которая имеет разное наполнение, но заключает в себе все основ

Дорогие друзья! Сегодня рассказываем про очень интересный каменный дом GB 161, который понравится всем, кто ценит уют, эргономичность и долговечность. Давайте познакомимся с этим проектом поближе.

О технологии дома: Газобетонный блок — крупноформатный, экологичный материал, который производится из песка, цемента, извести и воды. Эту разновидность ячеистого блока выполняют с применением газообразователей. Прочность блок набирает при воздействии давления и пара в специальной печи – автоклаве, становится искусственным каменным минералом. Рекомендуется приобретать его только на заводе-производителе во избежание подделок. В этом случае вы получите дом со всеми заявленными преимущественными характеристиками:

  • Экологичный и экономичный по вложениям благодаря низкой стоимости материала;
  • Быстровозводимый в сравнении с кирпичным за счет размера блоков, легких по весу (упрощена доставка, работа, снижена нагрузка на фундамент), а также с возможностью создавать любые архитектурные формы;
  • С прочным и ровным каркасом стен (потребуется нанять опытного каменщика), усадкой всего в 1%, огнестойкий;
  • Под любую внутреннюю и внешнюю облицовку, без рисков образования плесени, грибков, появления грызунов;
  • С комфортным микроклиматом (зимой отлично держит тепло, а летом, напротив, в доме прохладно).

О проекте: Предлагаем Вашему вниманию рассмотреть строительство одноэтажного дома GB 161 из газобетона с такими особенностями как: панорамные окна, сауна, терраса, эркер.

-2
  • Общая площадь: 58 м2
  • Жилая площадь: 28 м2
  • Площадь кухни с гостиной: 21 м2
  • Технология: Газобетон
  • Пятно застройки: 7х9
  • Этажность: 1
  • Кол-во комнат: 2
  • Кол-во санузлов: 1

Мы предлагаем на Ваш выбор одну из трех комплектаций, которая имеет разное наполнение, но заключает в себе все основные технологические и ответственные этапы строительства, которые лучше всего доверить профессионалам из нашей компании.

Ознакомится с комплектациями можно на этой странице.

Купив у нас дом, вы получаете готовую к отделочным работам постройку, которая стоит на фундаменте, накрыта кровлей сделанной на МЗП со вставленными металлопластиковыми окнами и дверьми, полностью сопровождена проектной документацией. Дом, баня, гараж или навес снаружи абсолютно готовы при выборе максимальной комплектации. Вам остается только сделать инженерные коммуникации самостоятельно или с нашей помощью. А также своими силами или с помощью сторонней организации выполнить отделочные работы.

Заказать строительство по нашим проектам Вы можете несколькими способами: оформить заявку на нашем сайте, позвонить нам или приехать к нам в офис. С помощью нашей компании, вы сможете приобрести ипотеку на строительство ИЖС от ведущих банков, таких как Сбер, Дом РФ, Почта банк , Росбанк и прочие. Домосбор является аккредитованной организацией во всех вышеперечисленных банках.