Найти в Дзене
ЭТО ВАШ ИНТЕРЬЕР

«Вот это я понимаю ремонт» — С мужем купили старую квартиру у бабушки и сделали шикарный ремонт (Сравните фото ДО и ПОСЛЕ)

В моей сегодняшней статье речь пойдет о молодой супружеской паре. Они долгое время жили в съемной квартире и вот теперь, они смогли приобрести собственное жилье. В этой квартире жила бабушка, поэтому сам интерьер был довольно стареньким. Но несмотря на старую отделку и мебель, здесь было чисто и ухоженно. После покупки новые хозяева обратились к дизайнерам, чтобы они помогли им создать современный, стильный и функциональный интерьер. Так же дизайнер сделал полномасштабную перепланировку. Посмотрите, что у них получилось. Проект Прихожая Пол во входной зоне оформили крупноформатным керамогранитом под камень, а стены покрасили в светлый оттенок и дополнили молдингами. Дверь в ванную комнату сделали скрытого типа. Справа от входа расположились большое зеркальное панно, подвесная консоль и пуф. Напротив входной двери организовали нишу, где был установлен вместительный гардероб. Кухня-гостиная По просьбе хозяев кухню и гостиную объединили в одно пространство. Несущие потолочные балки нель
Оглавление

В моей сегодняшней статье речь пойдет о молодой супружеской паре. Они долгое время жили в съемной квартире и вот теперь, они смогли приобрести собственное жилье. В этой квартире жила бабушка, поэтому сам интерьер был довольно стареньким. Но несмотря на старую отделку и мебель, здесь было чисто и ухоженно.

После покупки новые хозяева обратились к дизайнерам, чтобы они помогли им создать современный, стильный и функциональный интерьер. Так же дизайнер сделал полномасштабную перепланировку. Посмотрите, что у них получилось.

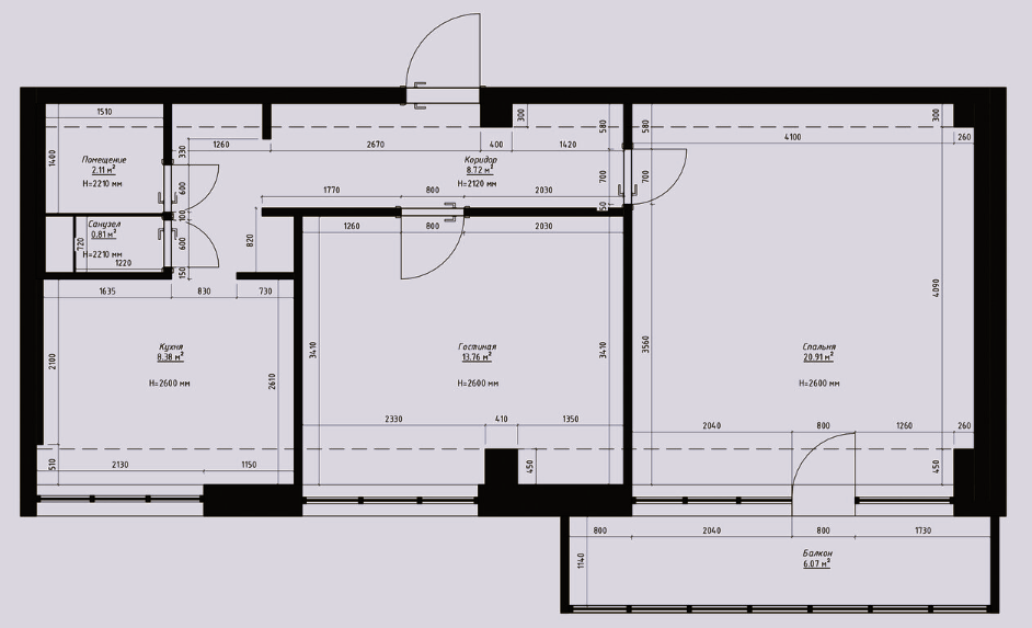
Проект

  • Местоположение: г. Москва
  • Площадь квартиры: 57 кв. м
  • Владельцы: семейная пара

Прихожая

Пол во входной зоне оформили крупноформатным керамогранитом под камень, а стены покрасили в светлый оттенок и дополнили молдингами. Дверь в ванную комнату сделали скрытого типа. Справа от входа расположились большое зеркальное панно, подвесная консоль и пуф. Напротив входной двери организовали нишу, где был установлен вместительный гардероб.

Кухня-гостиная

По просьбе хозяев кухню и гостиную объединили в одно пространство. Несущие потолочные балки нельзя было убрать, поэтому их замаскировали зеркалами, чтобы конструкция не утяжеляла пространство.

-4

В кухонной зоне установлен вместительный угловой гарнитур с фасадами молочного оттенка. Фартук облицован керамогранитом. На границе между кухней и гостиной установлена небольшая барная стойка для завтраков со стеклянным шкафом.

За барной стойкой находится зона гостиной. Напольное покрытие в жилой зоне — паркетная доска в раскладке "ёлочка". Здесь организовали полноценную столовую группу с дизайнерским обеденным столом и стильными стульями в горчичном цвете.

Рядом с обеденной зоной появилась акцентная стена, которую выкрасили в серо-голубой оттенок (с другой стороны перегородки расположен шкаф в прихожей).

Здесь же поставили угловой диван в синем цвете. Рядом организовали систему хранения и телевизионную зону, но пока без телевизора.

Спальня

В спальне обустроили вместительную гардеробную со стеклянной перегородкой, которая состоит из двух зон: женской и мужской. Что касается отделки, то стены покрасили в два цвета: серый и приглушенны розовый оттенок (и дополнили стены молдингами). На полу уложена паркетная доска.

В центре комнаты находится двуспальная кровать, напротив которой разместили подвесную тумбу и стильный туалетный столик с пуфиком.

Балкон

Примыкающий к спальне балкон тоже полностью благоустроили. В дальнейшем, хозяева хотят организовать здесь спортивный уголок с тренажерами, но пока здесь поставили лишь шкаф для хранения спортивного инвентаря.

-11

Ванная комната

С правой стороны от входа установили шкаф со стиральной и сушильной машинками, а также хозяйственный блок. Над унитазом организовали места для хранения бытовой утвари. Что касается отделки, то здесь использовали два вида керамогранита, розовую плитку и водостойкую краску.

Если вам понравилась статья, то не забудьте поставить лайк и подписаться, чтобы не пропустить новый материал!

Так же пишите в комментариях, что вам понравилось в этом проекте, а что вызывает сомнения.