Добавить в корзинуПозвонить
Найти в Дзене

Актуальные правила перепланировки в 2024 году

Если вы думаете, что сначала купите квартиру, а уже потом разберетесь с планировкой, то не торопитесь. Есть важные ограничения, которые заметно повлияют на интерьер квартиры. Привет! Меня зовут Карен Карапетян, я — архитектор и интерьерный дизайнер. Мы в компании Alexander Tischler проектируем и реализуем интерьеры, а также проектируем и производим корпусную мебель. Мы занимаемся дизайном и ремонтом интерьеров и всегда работаем с планировкой, например, расширяем санузлы и добавляем гардеробные, но не любое пожелание возможно воплотить, важно об этом знать заранее. Основные правила перепланировки Если вы думали, что правила в перепланировке одно — это не сносить несущие стены, то боюсь вас огорчить, правил намного больше. Перед тем, как что-то сносить или возвести, обязательно консультируйтесь со специалистом, мы тоже так делаем.
Также остерегайтесь заявлений застройщиков о свободной планировке, этот термин не подразумевает то, что вы можете воплотить все, что угодно. Вам в любом случа
Оглавление

Если вы думаете, что сначала купите квартиру, а уже потом разберетесь с планировкой, то не торопитесь. Есть важные ограничения, которые заметно повлияют на интерьер квартиры.

Кухня-гостиная с яркими акцентами
Кухня-гостиная с яркими акцентами

Привет! Меня зовут Карен Карапетян, я — архитектор и интерьерный дизайнер. Мы в компании Alexander Tischler проектируем и реализуем интерьеры, а также проектируем и производим корпусную мебель.

Мы занимаемся дизайном и ремонтом интерьеров и всегда работаем с планировкой, например, расширяем санузлы и добавляем гардеробные, но не любое пожелание возможно воплотить, важно об этом знать заранее.

Основные правила перепланировки

Если вы думали, что правила в перепланировке одно — это не сносить несущие стены, то боюсь вас огорчить, правил намного больше. Перед тем, как что-то сносить или возвести, обязательно консультируйтесь со специалистом, мы тоже так делаем.

Также остерегайтесь заявлений застройщиков о свободной планировке, этот термин не подразумевает то, что вы можете воплотить все, что угодно. Вам в любом случае нужно будет придерживаться правил и ограничений при перепланировке. Сейчас о них расскажу.

Самое главное, чтобы перепланировку вам согласовали, надо учитывать расположение помещений у соседей снизу и сверху.

Ограничения с кухней

Выбирая квартиру, смотрите на площадь кухни, так как расширить ее будет достаточно проблематично. Нельзя располагать кухню над жилыми помещениями соседей, соответственно, нельзя расширить кухню за счет гостиной, если снизу живут соседи. Можно над нежилыми, например, над коридорами, кабинетами, гардеробными. Расширить кухню за счет санузла тоже не получится, потому что санузел соседа сверху не может находиться над вашей кухней. А вот если ваша квартира находится на последнем этаже, то расширить кухню за счет санузла возможно.

Если в квартире газ, перегородка между кухней и жилыми помещениями обязательна. В квартире с электроплитой объединение возможно.

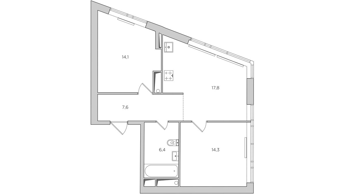
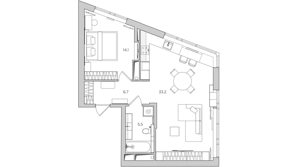
Если в вашей планировке кухня и гостиная разделены стеной, то можно ее снести и объединить пространства. Главное, чтобы стена была не несущей. Мы так сделали в одном из последних проектов.

От застройщика нам достались кухня и гостиная, разделенные стеной. Мы ее убрали и объединили два помещения в просторную кухню-гостиную 33,2 м².

Ограничения с санузлами

Нельзя располагать санузлы над жилыми комнатами и кухнями соседей, но можно над коридорами, гардеробными и другими нежилыми помещениями. Если снизу у вас подвал, магазины или офисы, санузлы можно расположить, где угодно.

В 2020 году изменилось законодательство, и СанПиН запрещающий выход из санузла в жилую комнату был отменен полностью. Теперь можно сделать выход единственного санузла в жилую комнату.

В квартире в стиле лофт мы увеличили гостевой санузел за счет коридора с 2,5 м² до 3,7 м² и установили душевую. Это законное решение.

Санузел с душевой в стиле лофт
Санузел с душевой в стиле лофт

Ограничения со стиральной машиной

Принято считать, что стиральную машину можно устанавливать только в мокрой зоне, но официально понятия «мокрая зона» не существует, можно о нем забыть, разрабатывая планировку.

Стиральная машина не фиксируется на плане БТИ, поэтому вы можете спокойно расположить стиральную машину в любой части квартиры.

В квартире 170 м² мы сделали перепланировку. Из большой ванной комнаты 10,4 м² мы выделили санузел и прачечную 5 м², которая занимает немного площади бывшей спальни.

Прачечная с местом для гладильной доски
Прачечная с местом для гладильной доски

Ограничения с лоджиями и балконами

Нельзя присоединять лоджии и балконы к квартирам. Если очень нужно использовать эти площади, то все равно обязательно должны стоять двери, это могут быть французские окна, для такого «присоединения» потребуются большие вложения. Так что подумайте, нужно ли переплачивать деньги за лоджию, или лучше взять квартиру такой же площади, но без нее.

Иногда мы убираем подоконный блок, который встречается во многих квартирах. Но сделать так можно далеко не в каждом доме, надо внимательно изучать этот вопрос и консультироваться со специалистами.

Мы убрали подоконный блок в квартире площадью 38 м² и поставили распашные двери.

Кухня с присоединенной лоджией
Кухня с присоединенной лоджией

Новые правила

С 1 апреля 2024 года в силу вступили изменения в Жилищный кодекс и закон «О государственной регистрации недвижимости», которые как раз затрагивают правила согласования перепланировки.

Теперь перепланировкой считаются любые изменения в квартире, даже незначительные, и их нужно согласовывать.

Раньше нужно было отражать перепланировку в техническом паспорте. Но однозначного требования также внести изменения в ЕГРН не было. Теперь данные о перепланировке должны быть в техническом плане и в ЕГРН.

Мы закончили работу над интерьером яркой двухкомнатной квартиры, где сделали перепланировку: изменили конфигурацию комнат и увеличили гостевую ванную. Что в итоге получилось, читайте в моей статье