Найти в Дзене
Alla Design

Дизайн квартиры-студии с мужским характером для студента.

ДИЗАЙНЕР АЛЛА ЗАЙЦЕВА Задача проекта. Ко мне обратился Никита, 22 года, студент университета. При встрече он сказал: «Мне нравятся брутальные интерьеры с мужским характером...но я не представляю, как вписать это в такую маленькую площадь, чтоб квартира не казалось тесной». Реализация проекта. Перед нами небольшая студия 25м.кв. Необходимо было создать комфортное пространство, где заказчик мог отдыхать после учебы, готовить, встречаться с друзьями. Было решено не возводить никакие дополнительные перегородки, чтобы не загромождать помещение. В итоге остановились на данном планировочном решении. В этом варианте планировки я немного увеличила санузел за счет коридора, чтобы уместить все самое необходимое. Были выполнены рабочие чертежи демонтажа и монтажа. Дальше были выполнены визуализации будущего интерьера. При разработке проекта было учтено пожелание хозяина - сделать много мест для хранения, чтобы у всего было свое место. В коридоре достаточно большая зона хранения в виде шкафа до пот

ДИЗАЙНЕР АЛЛА ЗАЙЦЕВА

Задача проекта.

Ко мне обратился Никита, 22 года, студент университета. При встрече он сказал: «Мне нравятся брутальные интерьеры с мужским характером...но я не представляю, как вписать это в такую маленькую площадь, чтоб квартира не казалось тесной».

Реализация проекта.

Перед нами небольшая студия 25м.кв. Необходимо было создать комфортное пространство, где заказчик мог отдыхать после учебы, готовить, встречаться с друзьями.

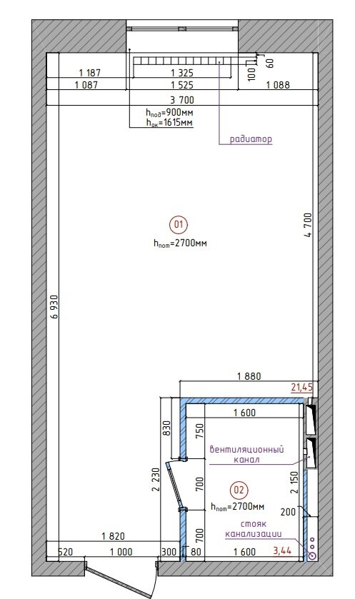
Обмерный план
Обмерный план

Было решено не возводить никакие дополнительные перегородки, чтобы не загромождать помещение. В итоге остановились на данном планировочном решении.

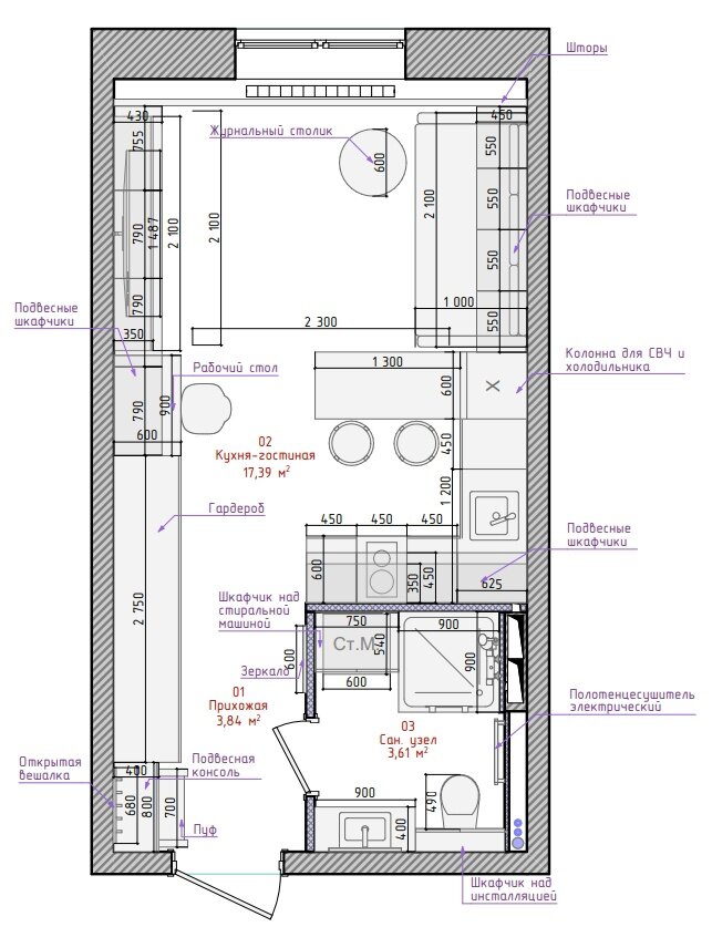
Планировочное решение
Планировочное решение

В этом варианте планировки я немного увеличила санузел за счет коридора, чтобы уместить все самое необходимое. Были выполнены рабочие чертежи демонтажа и монтажа.

Дальше были выполнены визуализации будущего интерьера. При разработке проекта было учтено пожелание хозяина - сделать много мест для хранения, чтобы у всего было свое место. В коридоре достаточно большая зона хранения в виде шкафа до потолка, который плавно переходит в рабочую зону. У входа в санузел разместилось большое зеркало в пол.

Благодаря разделению зон, получилась небольшая уютная кухня, где барная стойка отделяет зону сна и отдыха.

Пожеланием заказчика было функциональность, поэтому в зоне гостиной установлен диван, который можно использовать и для сна, и для посиделок с друзьями.

Зона сна и отдыха
Зона сна и отдыха

Напротив дивана расположена зона ТВ с большим телевизором, так как Никита часто приглашает к себе в гости друзей посмотреть футбол или поиграть в приставку. Она плавно переходит в рабочее место, так как Никита учится.

В ванной комнате разместилось все самое необходимое и большая зона хранения до потолка.

За 20 дней я разработала планы демонтажа и монтажа, а также создала дизайн проект с реалистичными визуализациями.

Если Вы тоже планируете ремонт в своей квартире или хотите грамотно распланировать хранение вещей - Пишите мне в директ и мы обсудим вашу задачу.