Добавить в корзинуПозвонить
Найти в Дзене
SloyArch

Интерьер дома со скалой из архитектурного бетона и мини садом из суккулентов и кактусов

Проектируемая площадь 260 квадратных метров, при разработке дизайна была поставлена цель создать максимально эргономичный интерьер с атмосферой природных мотивов и свежести. Представленный проект, вдохновленный красотами Башкортостана, несет в себе эстетику природы в каждой детали интерьера. Вдохновленные живописными пейзажами «Второй Швейцарии», мы создали пространство, где природные мотивы тают с вами на каждом шагу. Первоначально задуманный как уютное гнездышко для молодой пары, наш дом также предлагает щедрые просторы для счастливой и многодетной семьи. Гостиная Страсть к литературе и музыке пронизывает каждый угол нашего пространства, особенно в основной комнате, где 6-метровое окно становится рамкой для вдохновения. Здесь созданы уютные уголки для чтения с мягким креслом и книжной полкой, где размещены самые актуальные произведения литературы. Благодаря обилию естественного света и атмосфере уюта, это место становится идеальным убежищем для погружения в мир книг и музыки. А рояль
Оглавление

Проектируемая площадь 260 квадратных метров, при разработке дизайна была поставлена цель создать максимально эргономичный интерьер с атмосферой природных мотивов и свежести.

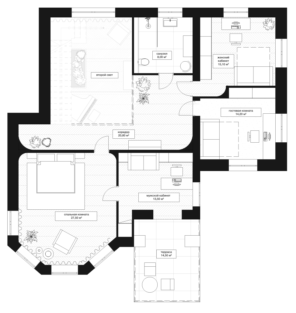
План 1 этажа
План 1 этажа
План 2 этажа
План 2 этажа

Представленный проект, вдохновленный красотами Башкортостана, несет в себе эстетику природы в каждой детали интерьера. Вдохновленные живописными пейзажами «Второй Швейцарии», мы создали пространство, где природные мотивы тают с вами на каждом шагу. Первоначально задуманный как уютное гнездышко для молодой пары, наш дом также предлагает щедрые просторы для счастливой и многодетной семьи.

Гостиная

Просторная гостиная первого этажа
Просторная гостиная первого этажа

Страсть к литературе и музыке пронизывает каждый угол нашего пространства, особенно в основной комнате, где 6-метровое окно становится рамкой для вдохновения. Здесь созданы уютные уголки для чтения с мягким креслом и книжной полкой, где размещены самые актуальные произведения литературы. Благодаря обилию естественного света и атмосфере уюта, это место становится идеальным убежищем для погружения в мир книг и музыки. А рояль и мини-сад с экзотическими кактусами и суккулентами добавляют нотку эклектики и гармонии в эту оазисную атмосферу. Данные растения были выбраны из-за неприхотливости и простоты ухода.

Сад экзотичных растений
Сад экзотичных растений

Сам подиум сделан из паркета, особенностью здесь является примыкание на углах. Каждая паркетная дощечка была заточена под 45 градусов для идеального примыкания

Примыкание паркетной доски на ступенях. Острые углы скошены в целях безопасности.
Примыкание паркетной доски на ступенях. Острые углы скошены в целях безопасности.

Часто мастера предлагают пустить на таких узлах уголок или профиль - что кратно упрощает работу и стоимость. Но иногда получается сотворить такое произведение искусства.

Для такого примыкания требуется паркет с особым шпоном. Важно выбрать подходящую доску перед начал работ.
Для такого примыкания требуется паркет с особым шпоном. Важно выбрать подходящую доску перед начал работ.

Особенностью данной гостиной также является скалистая порода из архитектурного бетона, которую мастер изготовил вручную. Эти скалы особенно великолепно смотрятся в вечернее время в период золотого часа, когда лучи солнца пробиваются через шестиметровое окно и ложатся на рельефную поверхность.

Лучи закатного солнца на рельефе скалы из архитектурного бетона
Лучи закатного солнца на рельефе скалы из архитектурного бетона
Скала из архитектурного бетона
Скала из архитектурного бетона

Кухня

Вдоль кухни расположен остров, сочетающий в себе обеденный стол и удобную рабочую зону, в которой интегрирована современная варочная поверхность с встроенной вытяжкой. Удобная компоновка помогает оптимизировать пространство: посудомоечная машина расположена между раковиной и варочной поверхностью, что существенно сокращает лишние движения во время приготовления и мытья посуды. Это решение идеально сочетает в себе практичность и эстетику, делая кухню еще более функциональной и удобной для ежедневного использования.

-9

Данная обеденная зона превращается в уютный уголок для отдыха и приятных вечеров в кругу близких. Расположенный у стола диван становится идеальным местом для общения и расслабления после ужина. И чтобы предусмотреть все риски, ткань для дивана выбрана антивандальной, защищая его от случайных пятен от красящих продуктов, таких как вино или кофе.

Над диваном возвышаются три картины, каждая из которых несет в себе свое значение. Одной из них является круг Энсо из буддизма, символизирующий стремление к совершенству, гармонии и достижению поставленных целей. Этот выбор не случаен, он отражает философию и внутренние убеждения хозяев этого удивительного места.

Уютная зона для вечерних посиделок на кухне с друзьями
Уютная зона для вечерних посиделок на кухне с друзьями

Пол на кухне также оказался непростой задачей для мастеров. Нами было предложен постепенный переход из паркета в керамогранит, поэтому для цели эффекта "перемешивания" керамогранит был нарезан по форме паркетной доски и интегрирован в общее полотно.

Окна предусматривают места для сидения.

Постепенный переход из паркета в керамогранит.
Постепенный переход из паркета в керамогранит.

Гардероб

При создании дизайна данного пространства мы приняли решение организовать удобную и функциональную гардеробную, объединив все места хранения в одном месте. Так, возле входа появилась гардеробная площадью 30 квадратных метров, разделенная на мужскую и женскую зоны прозрачным стеклянным шкафом с тонированным стеклом. Этот необычный подход позволяет эффективно использовать пространство, сохраняя при этом чистоту и порядок в остальных жилых комнатах, освобожденных от шкафов и комодов.

Стеклянный шкаф с тонированным стеклом отделяет женскую и мужскую зоны гардеробной
Стеклянный шкаф с тонированным стеклом отделяет женскую и мужскую зоны гардеробной

Прачечная со всем необходимым оборудованием, технические помещения, спортзал и прочие вспомогательные зоны расположены на -1 этаже. Таким образом мы внедрили в гардеробе только раковину, гладильную доску, отпариватель для одежды и туалетный столик у окна для доступа естественного света.

В гардеробной предусмотрена раковина для чистки предметов гардероба или обуви.
В гардеробной предусмотрена раковина для чистки предметов гардероба или обуви.

Для женской части мы предусмотрели стеклянные двери шкафов. Это и придаёт эффектный вид комнате, и позволяет выбирать одежду без необходимости открывать дверцы.

В острове посреди гардеробной расположена выдвижная станция с розетками для зарядки устройств и подключения электрооборудования, а также аксессуары и мелкие предметы одежды.

Туалетный столик у окна для доступа естественного света.
Туалетный столик у окна для доступа естественного света.

Мастер-спальная

Данная комната создана сугубо с целью отдыха и сна, в комнате не предусмотрено размещение ТВ, проекторов и прочего развлекательного оборудования.

Бра на стене из натурального мрамора и латуни
Бра на стене из натурального мрамора и латуни

Напротив кровати расположено кресло с необычным ночником.

В комнате эркер с четырьмя окнами. Это южная сторона дома, поэтому в комнате предусмотрен кондиционер, интегрированный в двухуровневый потолок.

-16

Санузлы

В доме два санузла - на первом этаже основной и санузел для хозяев на втором.

Нижний санузел оформлен в темных тонах - черный керамогранит и дерево. Здесь расположена отдельно стоящая ванна и душ, ниша для свечей и косметических принадлежностей, а также две раковины.

Душ расположен слева от  ванны и закрыт выдвижной стеклянной перегородкой
Душ расположен слева от ванны и закрыт выдвижной стеклянной перегородкой
Две раковины в гостевом санузле
Две раковины в гостевом санузле

Хозяйский санузел светлый и имеет только душ. Из особенностей - плитка в душевой, изготовленная вручную по аутентичной технологии. Каждая плиточка уникальна и нет повторяющихся.

-19

Также в хозяйском санузле расположен комод для полотенец из шпона и фреска

Раздвижной комод для полотенец и фреска
Раздвижной комод для полотенец и фреска

Места общего пользования

«Я очень довольна зоной вокруг рояля, основание лестницы разработано с возможностью размещения сидячих мест при прослушивании живой музыки. Пол пьедестала подогревается, и на нем очень удобно рассадить гостей», — говорит дизайнер Лили Кайсарова.

-21

Во всем доме внедрена скрытая музыкальная система со встроенными колонками, что позволяет подключать смартфон и прослушивать фоновую музыку во всех помещениях. Громкость регулируется индивидуально для каждого помещения.

Велком-зона
Велком-зона

В коридоре второго этажа на стене расположено зеркало с патиной

-23

О студии

На нашем сайте у каждого реализованного проекта есть возможность сравнить проектные рендеры, разработанные на этапе проектирования и итоговые фото. Таким образом можно увидеть на сколько точно были реализованы согласованные с заказчиками идеи будущего интерьера.

Мы работаем с жилыми и коммерческими объектами
(квартиры, дома, общепит, офисные помещения, техцентры)

В нашей команде все специалисты имеют архитектурное или инженерное образование.

Автор проекта

Лили Кайсарова - архитектор, руководитель и основатель студии SloyArch
Лили Кайсарова - архитектор, руководитель и основатель студии SloyArch