Добавить в корзинуПозвонить
Найти в Дзене

Из мечты в реальность: Создание и реализация дизайн-проекта для молодой семьи в частном доме 200 м²

Привет! Я – Кристина Полякова, дизайнер интерьеров, и я хочу рассказать о том, как вместе с моей командой мы разработали и реализовали дизайн-проект частного дома для современной молодой семьи. В рамках этого проекта нам удалось создать не только красивое и уютное пространство, но и учесть все пожелания заказчиков. Мы продумали каждую деталь интерьера, начиная от выбора мебели и заканчивая расположением комнат. О заказчике
Заказчики — молодая энергичная семья бизнесменов с прекрасным эстетическим взглядом и полной готовностью к смелым планировочным решениям. На момент начала ремонта семья состояла из трёх человек: двух взрослых и их трехлетней дочери, но мы заранее предусмотрели вторую детскую с прицелом на будущее. Поскольку семья очень много работает, у них была большая потребность в доме, которой на все 100% будет функциональным и практичным. Задачи и особые пожелания
Зачастую при разработке дизайн-проекта интерьера для домов или квартир мы задумываемся о ремонте с уклоном на даль
Оглавление

Привет! Я – Кристина Полякова, дизайнер интерьеров, и я хочу рассказать о том, как вместе с моей командой мы разработали и реализовали дизайн-проект частного дома для современной молодой семьи. В рамках этого проекта нам удалось создать не только красивое и уютное пространство, но и учесть все пожелания заказчиков. Мы продумали каждую деталь интерьера, начиная от выбора мебели и заканчивая расположением комнат.

О заказчике

Заказчики — молодая энергичная семья бизнесменов с прекрасным эстетическим взглядом и полной готовностью к смелым планировочным решениям. На момент начала ремонта семья состояла из трёх человек: двух взрослых и их трехлетней дочери, но мы заранее предусмотрели вторую детскую с прицелом на будущее.

Поскольку семья очень много работает, у них была большая потребность в доме, которой на все 100% будет функциональным и практичным.

Задачи и особые пожелания

Зачастую при разработке дизайн-проекта интерьера для домов или квартир мы задумываемся о ремонте с уклоном на дальнейшую продажу. В этом случае мы делали ремонт для дома, который станет постоянным пристанещем, где наши клиенты собираются жить постоянно, один раз и навсегда.

Поэтому при создании дизайн-проекта нам было необходимо:

  • Разработать и воплотить в жизнь функциональный, эстетичный и современный дизайн-проект интерьера для дома площадью 200 кв. м
  • Предусмотреть обязательное наличие гардеробной и множества мест для хранения, потому что заказчики любят стильно одеваться и следят за модой.
  • Сделать зону прачечной и хозблока. Поскольку заказчица очень много работает, а помощница по дому приходит несколько раз в неделю, очень важно было предусмотреть единое место, где хранятся все необходимые, но очень некрасивые предметы для уборки и ведения хозяйственной деятельности.
  • Предусмотреть вторую детскую с нейтральным интерьером. Поскольку клиенты очень любят планирование, мы заранее разработали вторую детскую комнату. До рождения второго ребенка комната станет игровой зоной для старшей дочери. Это решение очень полезно с точки зрения уборки и эстетики — наличие отдельной игровой комнаты помогает “спрятать” до прихода помощницы все разбросанные игрушки и детские шалости в одном интерьере.
  • Для нашего заказчика было важно, чтобы все работы по проекту выполнялись одной командой. Это связано с тем, что ранее они сотрудничали с разными дизайнерами и каждый раз сталкивались с определенными сложностями и проблемами. В результате, заказчик решил работать с нами, поскольку мы предлагаем комплексный подход к дизайну и строительству, снимая с клиента все заботы и ответственность за реализацию проекта.

Особое пожелание клиентов — сдать готовый к заселению дом в сжатые сроки.

Цели и задачи ясны, но перед созданием дизайн-проекта и разработкой интерьера необходимо проинтервьюировать клиентов, чтобы подобрать для них подходящий дизайн. Переходим к подготовке.

Подготовка

На первоначальном этапе мы всегда проводим письменное анкетирование, в ходе которого клиенту необходимо отметить галочкой дизайны, которые ему нравятся. Ежегодно мы обновляем анкету, чтобы внести актуальные решения и исключить устаревшие.

Мы твердо уверены в том, что не существует идеальных стандартизированных проектов, поэтому мы уделяем особое внимание психологии личности наших клиентов, ведь у каждого человека своё понимание хорошего и плохого дизайна интерьера, идеального внешнего вида и правильного функционала вещей.

После сбора информации мы проводим индивидуальные встречи с заказчиками, где обсуждаем их планы и ожидания от проекта, исследуем семью при разговорах и обсуждениях — очень важная психологическая часть нашей работы. Это помогает нам лучше понять предпочтения и предложить оптимальные индивидуальные решения. Далее мы выстраиваем для заказчика варианты планировочных решений и рассказываем, почему именно их семье будет удобен тот или иное проект, предлагаем «примерить» на себя дизайн.

Одним из ключевых этапов в разработке дизайн-проекта было согласование бюджета и сроков. Мы провели подробную дефектовку бюджета, чтобы убедиться в его реалистичности и не выходить за его рамки. Это позволило нам приобрести все необходимые материалы и оборудование сразу, избежав дополнительных затрат в будущем. Сроки также были важны для нас, поэтому мы работали над их соблюдением и учитывали особые пожелания клиентов.

Переходим к реализации проекта.

Планировочные решения.

Мы получили готовый дом только с внешней отделкой фасада, внутренней отделки не было совсем: нам была предоставлена возможность самостоятельно определить расположение стен, помещений и зон в соответствии с нашими требованиями. Это позволило создать дом, идеально подходящий для молодой семьи, с учетом их потребностей и предпочтений.

На этапе чернового ремонта мы увеличили количество окон. Многие люди боятся использовать много панорамных окон из-за возможных теплопотерь, но это заблуждение. В этом доме, несмотря на большое количество окон, мы вообще не использовали конвекторы — весь дом на первом и втором этаже отапливается водяными полами, замурованными в стяжку, и окна не замерзали даже в самые стойкие морозы. Панорамное остекление – это не только дополнительное освещение и пространство, но и возможность наслаждаться видом из окна и присматривать за детьми во дворе.

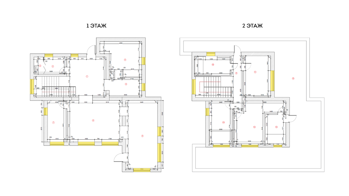
Мы разделили этажи дома на две условные границы: зона работы и зона отдыха. На первом этаже находятся кухня-столовая с обеденной зоной, гостиная, постирочная, шикарная гардеробная и небольшой кабинет. На втором этаже 2 детские комнаты: розовая для девочки и нейтральная для будущего ребёнка, детская светлая ванная комната и мастер-спальня с выходом на террасу. Мастер-спальня — новый приём в комбинации интерьеров, в котором располагается сама спальня, гардеробная и личный санузел с душем или ванной. Это позволяет оптимизировать время на утренние сборы и перемещение по дому.

-2

Поскольку семья мобильная, молодая и спортивная, то, соответственно, и интерьер у нас получился точно таким же. Рассмотрим подробнее.

Во всем интерьере мы отдавали предпочтение современным и лёгким для уборки покрытиям. Самое грязное место в доме — вход и зона лестничного пролета, ведь они постоянно используются и их сложнее всего мыть, поэтому мы отдали предпочтения керамограниту и специальным панелям и консолям с пластиковым покрытием, которые легко моются и трудно повреждаются.

Отдельными изюминками входной группы стали минималистичная парящая лестница с подсветкой через каждые две ступени и светильники из фольгированного золота, изготовленные под заказ.

В прихожей у нас разместился огромный 4-х метровый шкаф со скрытой дверью в гардеробную. Слева шкаф разделен на две части: снизу большая обувница, сверху вещи, а справа в шкафу спрятаны все коммуникации. Мы все привыкли, что котельная — это отдельное некрасивое помещение, скрытое от глаз, но в данном случае мы компактно уместили всё в шкаф площадью 100 на 160 см.

За скрытой раздвижной дверью находится вход в зону постирочной, которая перетекает в просторную гардеробную. Получилось очень функционально: после возвращения домой можно удобно снять с себя всю грязную одежду, при необходимости отправить сразу в стирку и выйти в чистом к домашним.

Конечно же, мы создали огромную гардеробную площадью 15 км. метров, ведь нам необходимо было создать максимум мест для хранения.

Для поддержания минимализма в светлой гостиной на первом этаже мы использовали скрытый плинтус и парящие потолки. Скрытый плинтус позволяет легко мыть полы и не повреждать стены: например, во время уборки робота-пылесоса он не будет касаться окрашенной стены своей боковой щеткой, так как там находится плинтус. Сочетание парящего потолка со скрытым плинтусом создает эффект парящей стены в интерьере, воздушности добавляет бежевая мебель с большим количеством мест для встреч с друзьями:

-5

В зоне просторной кухни-столовой мы предусмотрели наличие небольшого острова: это очень удобно при готовке и позволяет ужинать за ним семейными вечерами, не уходя далеко от бежевого кухонного гарнитура. Акценты в освещении создают небольшие точечные светильники. Для праздничных семейных ужинов, друзей и гостей есть отдельный обеденный овальный стол с шестью стульями и прекрасным видом на двор, бассейн и баню.

Фишка кухни-столовой: подача бутилированной воды. Заказчики привыкли заказывать питьевую воду, поэтому мы сделали специальный насос для подачи воды из гардеробной сразу в кухонный кран. В итоге в кране питьевая вода, но нет больших некрасивых бутылей и аккуратность интерьера не нарушается. Деревянный обеденный стол ручной работы и бежевые стулья идеально выглядят в интерьере столовой:

Переходим на второй этаж. А вот и наша удивительная мастер-спальня, которая комбинирует в себе спальню, гардеробную и ванную комнату. Здесь у нас комбинация разных современных материалов: парящая стена, декоративная штукатурка, деревянные консоли, подсветка кровати и стены. Тут же трехметровая зона с туалетным столиком, переходящая в в гардеробную для родителей.

Просторная ванная комната в стиле минимализм, в которой нам удалось разместить отдельную душевую и ванну. Мебель и сантехника дублируют отделку помещения, освещение на разных уровнях создаёт романтическую атмосферу. Деревянные панели покрыты специальным SPS-покрытием, в составе которого отсутствуют гигроскопичные компоненты, поэтому они обладают стопроцентной влагостойкостью и не потеряют свой внешний вид долгие годы. Из санузла есть выход на террасу: летом можно выйти позагорать, а сразу после принять душ, а зимой понежиться в тёплой ванне.

Рядом с мастер-спальней на втором этаже находятся две современных детских спальни и общая детская ванная комната — розовая для старшей девочки, светлая зеленая для второго ребёнка и яркий санузел:

Главной фишкой этого дома является мебель: в России на момент реализации дизайн-проекта не было производств, которые бы самостоятельно разрабатывали уникальные современные предметы мебели с ориентацией на функционал. Чтобы удовлетворить потребности клиентов и создать красивый интерьер, мы использовали итальянские модели мебели, но изготовляли их на нашем мебельном производстве, создавая гармоничный симбиоз из приемлемой цены, высокого качества и практичности, которую необходимо учитывать в каждом отдельном случае. Таким образом на проекте изготовлена практически вся мебель.

Такой подход решает множество проблем:.

  • Мы можем доработать мебель под индивидуальный запрос: изготовить не просто красивый диван, а практичный раскладной.
  • Клиент может выбрать материал обивки исходя из собственных тактильных ощущений: другую ткань для мягкой мебели или более прочное деревянное покрытие с защитой от кошачьих когтей для столов, стульев, шкафов и т.д.
  • И, конечно, такая мебель стоит дешевле.

Мы также уделили особое внимание художественному оформлению интерьера. Картины, написанные российскими художниками по нашим эскизам, гармонично дополняют проект, являясь не просто арт-объектами, а неотъемлемой частью интерьера и общего стиля. Благодаря коллаборации с художниками и тщательному подбору картин, мы создаем уникальный интерьер, полностью удовлетворяющие желания и потребности клиентов.

Отделочные работы.

Наша ремонтная команда успешно завершила проект по дизайну интерьера дома. Одной из основных сложностей, с которыми мы столкнулись в процессе работы, стала проблема длительной сушки окрашенных стен. Это было связано с тем, что на момент начала отделочных работ в помещении не были проведены работы по установке теплого водяного пола, и для просушки стен мы использовали тепловые пушки. Несмотря на эту трудность, мы успешно справились с задачей и завершили проект в сжатые сроки и с высоким качеством.

Мы также занимались оформлением участка возле дома. Совместно со специалистом по баням были построены баня и банный комплекс, создан ландшафт и экстерьерная площадь для отдыха семьи и встреч с друзьями. Дизайн бани был разработан с учетом пожеланий заказчика, полностью аналогичной той, что заказчик увидел на Pinterest.

Выводы.

С реализацией проекта мы справились меньше, чем за год. Мы начали работу в марте-апреле 2022 года, а сдали готовый дом с мебелью и текстилем уже в январе 2023.

В проекте нам удалось удовлетворить все пожелания клиентов:

  • Сделали большую гардеробную на первом этаже и множество мест для хранения в спальне и детских комнатах.
  • Спрятали все некрасивые вещи, разместили котельную в шкафу и создали удобную и функциональную прачечную с хозблоком.
  • Предусмотрели вторую детскую. Первоначально эта комната была игровой для старшего ребенка, но вскоре у семьи родился второй ребенок и комната обрела своего маленького хозяина.
  • Все работы по внутренней отделке дома и двору выполнялись нашей командой с привлечением отдельных специалистов под нашим контролем.
  • Грамотное распределение площади дома, удобное расположение комнат, деление дома на зону работы и отдыха и общая эргономика дома отвечают всем требованиям функциональности и комфорта.
  • И, конечно, современный дизайн с трендовой мебелью как нельзя лучше олицетворяет активность, молодость и трудолюбие наших клиентов, что позволяет выразить их индивидуальность и стиль жизни.

Благодарим наших уважаемых клиентов за проявленное доверие, великолепный вкус и возможность воплощения наших идей в рамках их пожеланий! Стремление к совершенству и готовность к экспериментам позволили нам создать уникальное и стильное пространство, отражающее индивидуальность и жизненные ценности прекрасной семьи.