Найти в Дзене

Тренды в строительстве загородных домов.

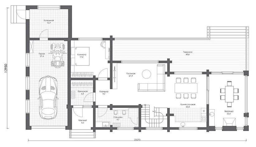
Вторая половина 2023 года была богата на российские и европейские выставки загородных домов. Удобных, современных, экологичных. Эксперты архитектурно-строительной компании DOMOY рассказывают, какие решения оказываются наиболее удачными и пользуются повышенным спросом. Две террасы для одного дома: закрытая и открытая Террасы давно завоевали любовь загородных жителей. Завтракать, встречая первые лучи солнца, заниматься йогой, прятаться в тени в летний полдень или накрывать стол для приятного ужина на природе в кругу друзей - использовать террасу можно по-разному. Но как организовать это пространство так, чтобы оно приносило максимальный комфорт в разное время года?
Современные домостроение предлагает делать две террасы: закрытую террасу (с крышей и окнами) и полностью открытую террасу без крыши. Данное решение особенно актуально для средней полосы России с активной сменой сезонов. Закрытую террасу можно оборудовать камином или летней кухней, а также лауж - зоной. В зависимости от погодны
Оглавление

Вторая половина 2023 года была богата на российские и европейские выставки загородных домов. Удобных, современных, экологичных. Эксперты архитектурно-строительной компании DOMOY рассказывают, какие решения оказываются наиболее удачными и пользуются повышенным спросом.

Две террасы для одного дома: закрытая и открытая

Террасы давно завоевали любовь загородных жителей. Завтракать, встречая первые лучи солнца, заниматься йогой, прятаться в тени в летний полдень или накрывать стол для приятного ужина на природе в кругу друзей - использовать террасу можно по-разному. Но как организовать это пространство так, чтобы оно приносило максимальный комфорт в разное время года?
Современные домостроение предлагает делать две террасы: закрытую террасу (с крышей и окнами) и полностью открытую террасу без крыши. Данное решение особенно актуально для средней полосы России с активной сменой сезонов. Закрытую террасу можно оборудовать камином или летней кухней, а также лауж - зоной. В зависимости от погодных условий закрытая терраса легко объединяется с открытой. На которой размещаются лежаки, гриль или зона для активных детских игр. Навесы над открытой террасой с каждым годом становятся всё меньше и сходят на нет.
Закрытая и открытая террасы удачно скомбинированы, например, в нашем проекте Lake VILLAGE. Посмотреть проект
подробнее

Пример открытой и закрытой террасы в доме из клеёного бруса, проектирование и строительство: АСК "ДОМОЙ".
Пример открытой и закрытой террасы в доме из клеёного бруса, проектирование и строительство: АСК "ДОМОЙ".

Рабочий кабинет становится больше и презентабельнее

Рабочие кабинеты в загородных домах стали размещать уже давно. Но обычно площадь для них выделялась по остаточному принципу. Лучшее пространство отдавалось зоне гостиной. Однако в последнее время домашний рабочий кабинет стал важной частью жизни современного человека: возможность и очевидные плюсы удаленной работы берут своё. Поэтому теперь кабинет увеличивает свою площадь, а дизайнеры отдельно продумывают интерьер, который будет находиться позади рабочего кресла. Для того, чтобы при участии в онлайн конференциях и совещаниях, вы производили правильное впечатление.

А архитекторы уделяют большое внимание не только тому, чтобы кабинет располагался в тихой части дома, но и какой вид будет открываться из вашего «рабочего» окна.

Кухня становится меньше и эргономичнее

А вот зона приготовления еды, напротив, становится меньше. Раздутые площади под кухонные гарнитуры уступают своё место только необходимым для готовки поверхностям. Навесные шкафы заменяют окнами, а места для хранения прячутся в боковые пеналы.

Зона столовой расширяется, вмещая в себя большой стол на 8 человек и более.

Проекты АСК «ДОМОЙ» с функциональной, но не большой кухней:

Кухня в доме из клеёного бруса, проект AKKORDI. Проектирование и строительство: АСК "ДОМОЙ"
Кухня в доме из клеёного бруса, проект AKKORDI. Проектирование и строительство: АСК "ДОМОЙ"

Стеклянные входные двери

Металлические входные двери всё чаще заменяют на стеклянные. В первую очередь это связано с фасадами: современные дома имеют большую площадь остекления, и стеклянные двери в этом случае как нельзя лучше вписываются в экстерьер. Пространство выглядит стильным и гармоничным. Вопрос приватности и прочности решается новыми технологиями. Да и современные поселки сегодня - это закрытая, хорошо охраняемая территория.

Обратите внимание, как стильно и органично смотрится входная группа проекта дома из клеёного бруса HI-TECH от архитекторов АСК «ДОМОЙ»:

Проект дома из клеёного бруса в стиле хай-тек от архитекторов АСК "ДОМОЙ
Проект дома из клеёного бруса в стиле хай-тек от архитекторов АСК "ДОМОЙ

Сан.узел при входе в дом: палочка - выручалочка для семей с детьми и домашними животными!

Один из сан.узлов первого этажа размещается так, чтобы попасть в него можно было сразу после того, как вы вошли в дом. Тут обязательно располагается постирочная. Это позволяет быстро определить место для одежды детей, только что побывавших на прогулке. А если у вас есть собака, то организованная в зоне постирочной лапомойка поможет избежать грязных следов по всему дому. Таким образом в прихожей сохраняется чистота и уют, а у вас - хорошее настроение.
Именно такое планировочное решение архитекторы DOMOY использовали в проекте
RICH.

Для сушки, глажки и хранения чистых вещей часто предусматривается отдельное помещение, вблизи гардеробной.

Детская игровая комната

Особенно актуально для семей с двумя и более детьми. Замечали, что деткам как будто всегда недостаточно своих комнат для совместных игр? Все-таки личная спальня — это приватное пространство. И поэтому ребята организуют свои игры в зонах общего пользования. Для того, чтобы игрушки не захватили весь дом, архитекторы и дизайнеры предлагают выделить специальное пространство - игровую комнату. Тут можно размещать шведские стенки, гамаки, железные дороги, конструктор, настольный футбол, маленький театр, световые столы с кинетическим песком, мастерские для творчества и опытов. Здорово, когда дети сами могут видоизменять это помещение, проявлять фантазию.
Теперь ребята могут приглашать к себе друзей и вместе создавать удивительные миры, не боясь дать волю фантазии. А вы - наслаждаться спокойствием в другой части дома и заниматься своими делами.

Экологичность

Современный дом — это пространство, в котором жить не только удобно, но и полезно для здоровья. Конечно, лидерами в сфере экологичного домостроения являются деревянные дома. А именно - дома из клееного бруса. Часто их называют финскими домами, но на самом деле и в России клеёный брус уже давно зарекомендовал себя как надежный материал качества премиум.
Стены из клееного бруса способны осуществлять циклический воздухообмен с атмосферой внутри помещения, поддерживая в нем здоровый микроклимат. Дерево – живой дышащий материал. А клеевой состав, соединяющий деревянные ламели – воздухопроницаем. Он не содержит формальдегид, меламин, фенол и толуол. Отвержденный клей химически нейтрален, не разлагается и не выделяет токсичных соединений. Допущен к применению в изделиях, которые находятся в непосредственном контакте с пищевыми продуктами!
Клееный брус производится из древесины сосны и ели. Хвойные породы выделяют эфирные масла с фитонцидами – природными антисептиками, полезными для иммунной системы человека. Свежий воздух – это то, за что мы так ценим загородную жизнь. Дышать полной грудью можно не только на природе, под открытым небом, но и у себя дома. Особенно, если он построен из правильных материалов.

Эксперты архитектурно - строительной компании DOMOY проектируют и строят дома из клеёного бруса уже более 15 лет. И знают всё о том, как ведёт себя этот материал не только в процессе строительства, но и во время многолетней эксплуатации готового дома.

Индивидуальность хозяина дома

Несмотря на то, что в современной архитектуре набирают популярность те или другие решения, главным трендом остаётся комфорт хозяина дома. А это значит, что большинство домов строится не по типовым, а по индивидуальным проектам. Дом для жизни — это не просто хорошая панировка и красивый фасад, это отражение личности своего хозяина.
Эту философию и подход к работе разделяют архитекторы АСК DOMOY. Они специализируются на разработке индивидуальных проектов, учитывающих не только особенности участка, на котором будет строиться дом, но и образ жизни, привычки и вкусы его будущего хозяина.

Потому, что в первую очередь речь о человеке с его уникальным внутренним миром, с личной историей. Для него переезд в новый дом — это не только про желание жить за городом, сколько про расширение личных границ и возможностей.

Проект дома из клееного бруса, кухня, архитекторы: АСК DOMOY
Проект дома из клееного бруса, кухня, архитекторы: АСК DOMOY
Проект дома из клееного бруса, кухня, архитекторы: АСК DOMOY
Проект дома из клееного бруса, кухня, архитекторы: АСК DOMOY

Архитектурно-строительная компания DOMOY: проектирование и строительство домов из клеёного бруса. Под ключ, качества премиум.

Тел: +7 343 385-82-70

Екатеринбург, ул. Куйбышева, 44 д, БЦ «ПАНОРАМА», офис 807