Найти в Дзене
АО «ТАМАК»

Быстровозводимый двухэтажный дом 293 м²

Дом изящен снаружи и предельно комфортабелен внутри. Панорамные окна, отдельная кухня, просторная терраса и встроенный гараж — это только часть достоинств проекта, которых на самом деле намного больше.

Подробнее о проекте и технологии строительства

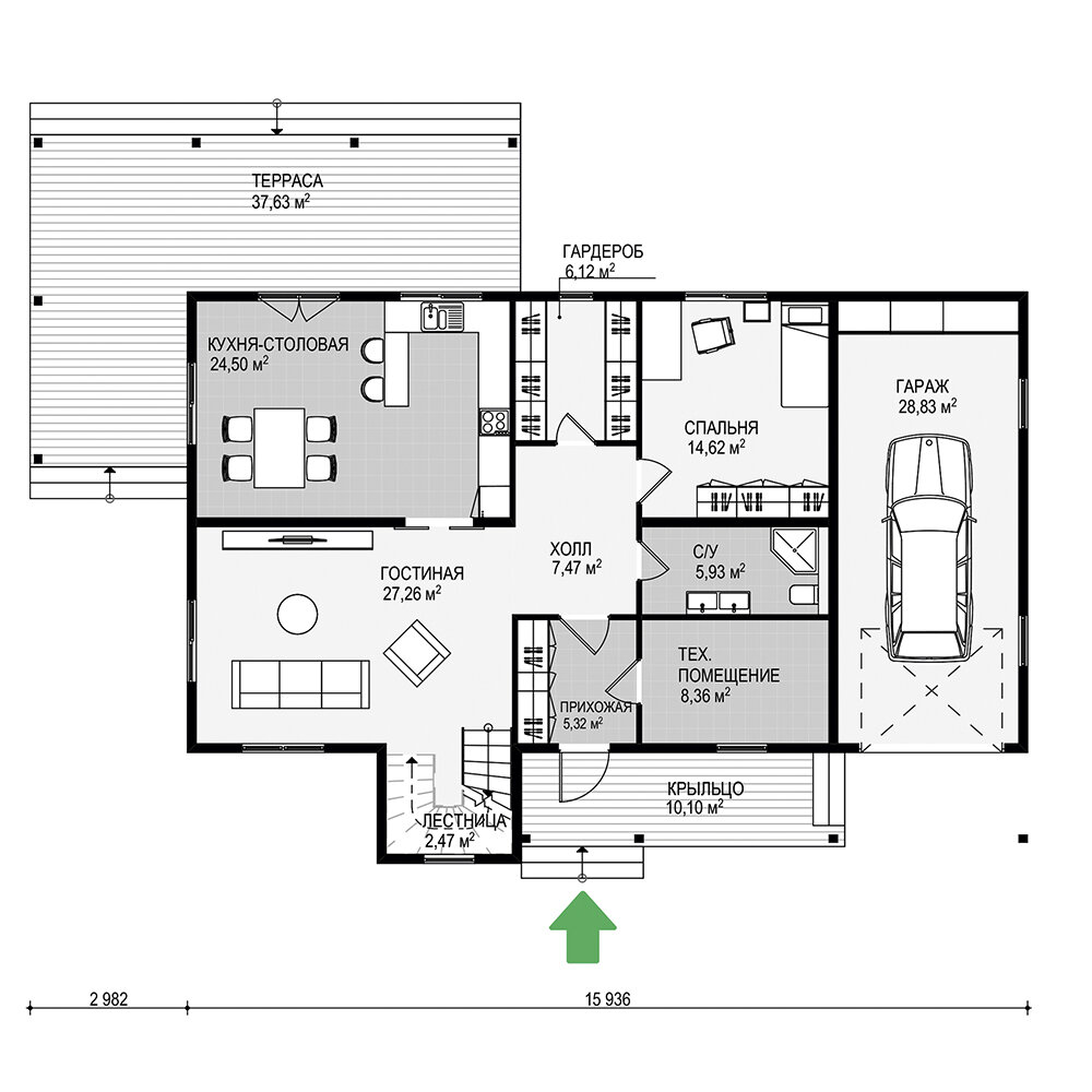
План первого этажа двухэтажного дома «Тироль 227»
План первого этажа двухэтажного дома «Тироль 227»
План второго этажа двухэтажного дома «Тироль 227»
План второго этажа двухэтажного дома «Тироль 227»

ХАРАКТЕРИСТИКИ ПРОЕКТА:

  • Общая площадь: 293.89 м²
  • Площадь помещений: 227,41 м²
  • Площадь террас и балконов: 66.48 м²
  • Общая площадь 1 этажа: 178.61 м²
  • Общая площадь 2 этажа: 115.28 м²
  • Спальни, шт.: 4
  • Санузлы, шт.: 3
  • Техническое помещение: да
  • Гараж: да

Подробнее о проекте и технологии строительства

Мы производим долговечные дома по запатентованной каркасно-панельной технологии «Тhermomak Haus». Для конструкции дома используются исключительно прочные экологичные цементно-стружечные плиты. Каркас дома изготавливается из сосны и ели, поставляемых с Урала и из Сибири. Пиломатериал проходит строгий входящий контроль, автоматическую калибровку, сортировку и промышленную сушку. В готовых конструкциях сухой пиломатериал не подвергается гниению.

Телефон: 8(800)300-89-77

Наш сайт: https://www.tamak.ru/

Подписывайтесь на канал и ставьте лайки! :)