Добавить в корзинуПозвонить
Найти в Дзене

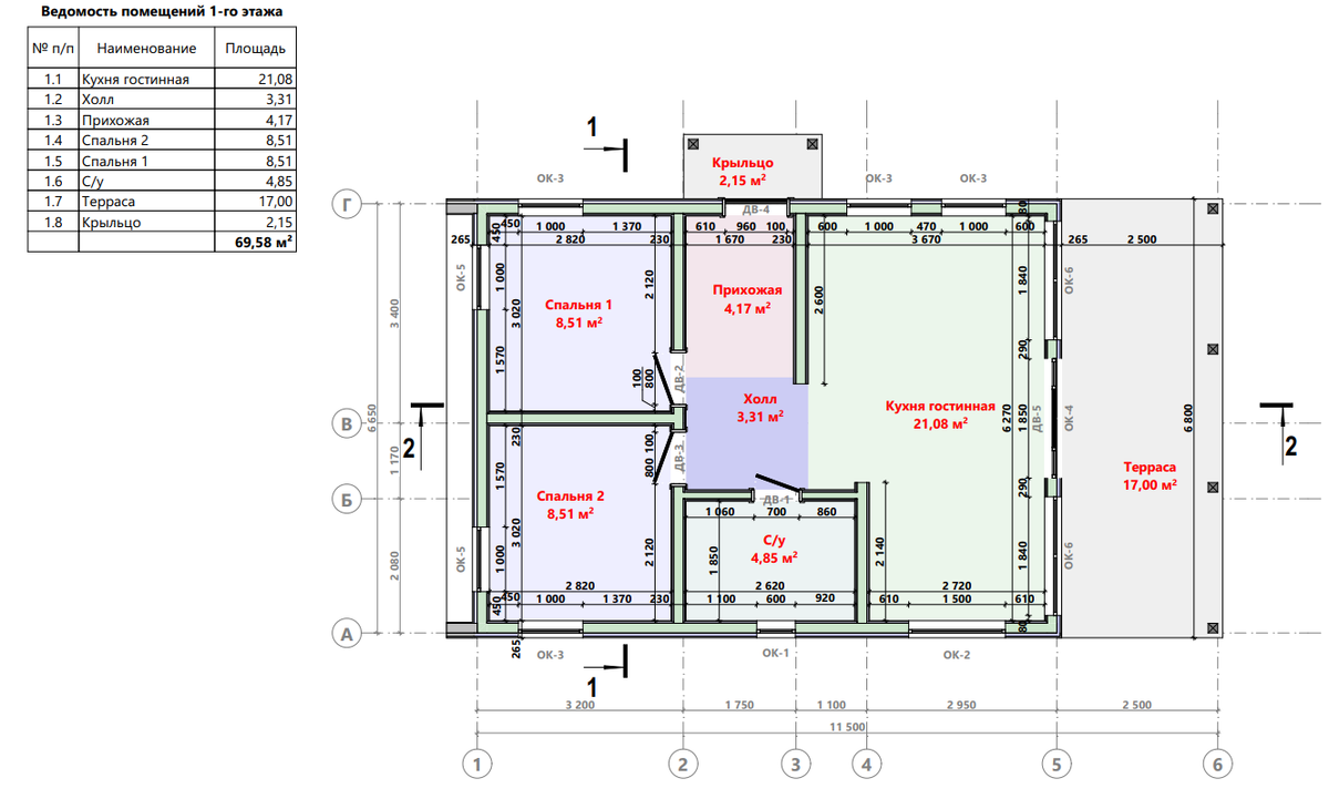
Отчёт строительтсва Барнхауса 70м2

Этот дом с двумя спальнями, большим сан. узлом, совмещенной кухней-гостинной Построили дом наши партнеры-строители в г.Смоленск.
Мы же проектируем дома и этот проект можно приобрести, построить для себя. Пройдемся по всем этапам стройки. И для начала нам потребуется 35 свай Вы можете использовать винтовые, буронабивные сваи - смотрите по вашей геологии и кошельку.
а так же моим любимым фундаментом является лента + полы по грунту или плитный фундамент.
Вы можете строить данный дом по этому проекту и применить другой фундамент. Далее собираем обвязку свай из пакета досок, соединяя все это гвоздями.
Доску необходимо пропитать антисептиком - мы рекомендуем неомид 440 или аналог. Выполняем сверху сборку лаг пола Обратите внимание, лаги пола усилены, никакого "батута" никогда не будет Обвязка и лаги выполнены из доски 200мм. Далее собираем внешний периметр стен: Затем внутренние перегородки и стропильная система Если вас интересует смета, смотрите картинку ниже: Поверх каркаса натягиваем пл

Этот дом с двумя спальнями, большим сан. узлом, совмещенной кухней-гостинной

Построили дом наши партнеры-строители в г.Смоленск.
Мы же проектируем дома и этот проект можно приобрести, построить для себя.

-2

Пройдемся по всем этапам стройки. И для начала нам потребуется 35 свай

-3

Вы можете использовать винтовые, буронабивные сваи - смотрите по вашей геологии и кошельку.
а так же моим любимым фундаментом является лента + полы по грунту или плитный фундамент.
Вы можете строить данный дом по этому проекту и применить другой фундамент.

Далее собираем обвязку свай из пакета досок, соединяя все это гвоздями.
Доску необходимо пропитать антисептиком - мы рекомендуем неомид 440 или аналог.

Выполняем сверху сборку лаг пола

Обратите внимание, лаги пола усилены, никакого "батута" никогда не будет

-6

Обвязка и лаги выполнены из доски 200мм.

Далее собираем внешний периметр стен:

-7

Затем внутренние перегородки и стропильная система

-8

Если вас интересует смета, смотрите картинку ниже:

-9

Поверх каркаса натягиваем пленку - мембрану, никогда не экономим, это важный пункт для хорошего, теплого каркасного дома.

-10

Внутри утепляем лаги пола, базальтовым упругим утеплителем с перехлестом швов. Так же по желанию утеплитель можно заменить на стекловату, эковату

-11

Утеплитель закрываем пароизоляцией и набиваем обрешетку для чернового листового материала

-12

Обратите внимание на аккуратность проведенных работ. Вся пленка проклеивается в пакет - что дает большой срок эксплуатации утеплителю

-13

стены и потолок утепляем аналогично, закрываем пленкой и заклеиваем все швы. Что бы пленка работала и регулировала влажность утеплителя при эксплуатации дома

-14

Потолок (и не только) утепляется так, что бы утеплитель держался в стойке самостоятельно (не смотря на плотность в 50кг м3)

-15

Остекляем пвх окнами с черной ламинацией

-16

закрываем фасад полностью

-17

Внутренняя отделка монтируется через вент.зазор

-18
-19

монтируем систему отопления жидкостным теплым полом

-20

электропроводка в гофре и находится в вент.зазоре

-21
-22
-23

Входная группа дома:

-24

На этом всё.

Больше фото отчётов, а так же любое стройка-общение без рекламы в нашем чате: https://t.me/domokea_chat

Больше готовых проектов: https://domokea.ru

Проектирование под заказ: +79124500779