Добавить в корзинуПозвонить
Найти в Дзене

Топ 10 типовых проектов домов до 100 кв. м

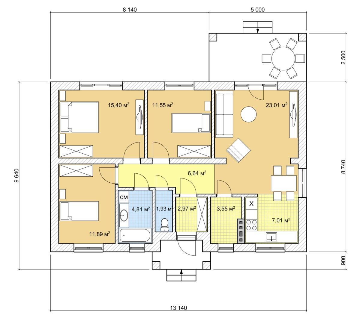
Представляем подборку из 10 популярных и востребованных проектов домов до 100 кв. м, которые оптимальны для небольших и средних семей, подходят для круглогодичного проживания как семей с детьми, так и пожилых людей. Данные проекты можно адаптировать практически для любого вида строительного материала (кирпича, керамзитобетона, газобетона или монолита). Практически каждый желающий сможет выбрать проект, соответствующий его пожеланиям. Проект одноэтажного дома выполнен в средиземноморском стиле. Размеры коттеджа составляют 13 на 10 м, площадь достигает 89 кв. м. Все помещения функциональны, комфортны и грамотно расположены, начиная с просторной террасы, удобно расположенного санузла и ванной, и завершая тремя спальными комнатами и совмещенной кухней-гостиной. Высокая популярность сооружения домов в средиземноморском стиле объясняется внешней простотой и одновременно оригинальностью оформления фасада и строгими конструктивными элементами. Характерной чертой является сочетание белой штукат
Оглавление

Представляем подборку из 10 популярных и востребованных проектов домов до 100 кв. м, которые оптимальны для небольших и средних семей, подходят для круглогодичного проживания как семей с детьми, так и пожилых людей. Данные проекты можно адаптировать практически для любого вида строительного материала (кирпича, керамзитобетона, газобетона или монолита). Практически каждый желающий сможет выбрать проект, соответствующий его пожеланиям.

1. Проект одноэтажного дома 1-065

Проект одноэтажного дома выполнен в средиземноморском стиле. Размеры коттеджа составляют 13 на 10 м, площадь достигает 89 кв. м. Все помещения функциональны, комфортны и грамотно расположены, начиная с просторной террасы, удобно расположенного санузла и ванной, и завершая тремя спальными комнатами и совмещенной кухней-гостиной. Высокая популярность сооружения домов в средиземноморском стиле объясняется внешней простотой и одновременно оригинальностью оформления фасада и строгими конструктивными элементами. Характерной чертой является сочетание белой штукатурки на стенах с темной древесиной, используемой на оконных рамах прочих элементах экстерьера.

Более подробную информацию о проекте и стоимости строительства вы можете уточнить у наших специалистов, обратившись к нам через сайт: https://acpdom.ru/proekty-domov/proekt-doma-1-065/

Планировка дома

-2

2. Проект одноэтажного дома 1-082

Проект одноэтажного дома, разработанный в современном стиле. Внешние габариты сооружения составляют11 на 10 м, общая площадь достигает 72 кв. м. В этом рационально организованном и уютном доме предусмотрены все необходимые помещения для комфортного проживания: просторная терраса, две спальные комнаты и совмещенная кухня-гостиная. Для всех домочадцев созданы оптимальные условия для отдыха, работы и развлечений, что достигается благодаря продуманной планировке и качественному внутреннему интерьеру. Данный проект можно адаптировать как для расположения в городской черте, так и в любом загородном населенном пункте.

-3
Более подробную информацию о проекте и стоимости строительства вы можете уточнить у наших специалистов, обратившись к нам через сайт: https://acpdom.ru/proekty-domov/proekt-doma-1-082/

Планировка дома

-4

3. Проект одноэтажного дома 1-064

Проект одноэтажного дома, размеры которого составляют 12 на 12 м, а площадь достигает 84 кв. м. Функционально спроектированные помещения представлены уютной террасой, тремя отдельно расположенными спальными комнатами, качественно оборудованным санузлом и совмещенной кухней-гостиной. Такой коттедж можно расположить даже на небольшом городском или загородном участке, где он будет гармонировать с садовыми, огородными культурами, хозяйственными постройками (гаражом, баней, мастерской, летней кухней). Сложно подобрать лучший вариант для комфортного проживания небольшой семьи.

-5
Более подробную информацию о проекте и стоимости строительства вы можете уточнить у наших специалистов, обратившись к нам через сайт: https://acpdom.ru/proekty-domov/proekt-doma-1-064/

Планировка дома

-6

4. Проект одноэтажного дома «Энгельс»

Представляем проект одноэтажного дома с двумя эркерами по главному фасаду. Оптимальные размеры дома без террасы достигают 11 на 10.5 метров, а внутренняя полезная площадь составляет 87 кв. м. Планировка дома профессионально разработана и состоит из следующих помещений: удачно размещенного тамбура, просторного холла, качественно оборудованного санузла, зонированной кухни-гостиной, трех отдельно расположенных спальных комнат, котельной, обладающей достаточной мощностью, симпатичной террасы. Большие окна органично сочетаются с оригинальной конструкцией кровли и прекрасной оформленным фасадом.

-7
Более подробную информацию о проекте и стоимости строительства вы можете уточнить у наших специалистов, обратившись к нам через сайт: https://acpdom.ru/proekty-domov/proekt-doma-engels/

Планировка дома

-8

5. Проект одноэтажного дома «Аксай»

Проект простого одноэтажного дома с террасой. Внешние размеры коттеджа 13 на 11 м, сооружение обладает общей площадью 89 кв. м. В планировочном решении проект предусматривает наличие: грамотно продуманного тамбура, уютного холла, двух отдельно расположенных спальных комнат, правильно зонированной и просторной кухни-гостиной, которая подходит для домашних обедов и праздничных посиделок с гостями, двух санузлов, экономичной в обслуживании и безопасной котельной. Изюминкой проекта являются оригинально оформленные входные группы, окраска стен, индивидуальное отношение архитектора к созданию комфортной обстановки для каждого домочадца.

-9
Более подробную информацию о проекте и стоимости строительства вы можете уточнить у наших специалистов, обратившись к нам через сайт: https://acpdom.ru/proekty-domov/proekt-doma-aksay/

Планировка дома

-10

6. Проект одноэтажного дома «Озёры»

Проект одноэтажного дома с внешними размерами 11 на 10 метров, его общая площадь составляет 88 кв. м. Планировка дома функционально продумана и состоит из следующих грамотно расположенных помещений: добротного тамбура, уютного и комфортного холла, трех отдельно расположенных спальных комнат, разделенной на зоны общей кухни-гостиной, оснащенного современной сантехникой санузла, предназначенной для оптимального отопления дома котельной. Данный проект оптимален для расположения как в городской черте, так и в любом загородном населенном пункте. Дом подходит для небольшого участка, семьи с детьми или пожилых людей.

-11
Более подробную информацию о проекте и стоимости строительства вы можете уточнить у наших специалистов, обратившись к нам через сайт: https://acpdom.ru/proekty-domov/proekt-doma-ozyory/

Планировка дома

-12

7. Проект дома с мансардой 1-045

Представляем проект дома с мансардой, внешние габариты составляют 10 на 7 метров, общая площадь коттеджа достигает 98 кв.м. В планировочном решении проекта предусматривается наличие четырех спален, совмещенной в едином пространстве гостиной-кухни, просторной террасы, двух санузлов, солидного тамбура. Грамотно проработаны планировки дома под конкретные потребности с учетом расположения сторон света. Здесь отсутствуют "паразитные" площади в виде длинных неиспользуемых коридоров. Мансардой именуют этаж в чердачном помещении, фасад которого полностью или частично образован наклонной поверхностью крыши. Это помещение утеплено и включено в тёплый контур дома.

-13
Более подробную информацию о проекте и стоимости строительства вы можете уточнить у наших специалистов, обратившись к нам через сайт: https://acpdom.ru/proekty-domov/proekt-doma-1-045/

Планировки дома

8. Проект одноэтажного дома 1-060

Проект одноэтажного дома размерами 11 на 10 м, общей площадью 89 кв.м. В планировочном решении функционально проработанного проекта предусматривается наличие просторной террасы, трех отдельно расположенных спальных комнат, оснащенного современным оборудованием санузла и совмещенной, разделенной на удачные зоны кухни-гостиной, из которой можно сразу попасть на террасу. Коттедж по размерам и стилю оформления фасада подходит для небольшого участка, семьи с детьми или пожилых людей. Данный проект оптимален для расположения как в городской черте, так и в любом загородном населенном пункте.

-15
Более подробную информацию о проекте и стоимости строительства вы можете уточнить у наших специалистов, обратившись к нам через сайт: https://acpdom.ru/proekty-domov/proekt-doma-1-060/

Планировка дома

-16

9. Проект одноэтажного дома «Комфорт»

Проект европейского одноэтажного дома с террасой. Осевые размеры комфортного коттеджа достигают 14×11.5 метров, а общая площадь составляет 100 кв.м. В планировочном решении проекта предусматривается наличие двух отдельно размещенных спальных комнат, расположенной в общем пространстве и удачно разделенной на несколько зон гостиной-столовой-кухни с выходом на просторную террасу, двух санузлов, экономичной в эксплуатации котельной, рациональной гардеробной, уютного тамбура и комфортного холла. Светлая отделка стен органично сочетается с оригинально оформленной входной группой.

-17
Более подробную информацию о проекте и стоимости строительства вы можете уточнить у наших специалистов, обратившись к нам через сайт: https://acpdom.ru/proekty-domov/proekt-doma-komfort/

Планировка дома

-18

10. Проект одноэтажного дома «Югра»

Представляем проект одноэтажного дома с эркером. Внешние размеры коттеджа составляют 11.5 на 10 метров, общая площадью достигает 91 кв. м. В планировочном решении проекта предусматривается наличие функциональных помещений: теплого тамбура, просторного холла, обладающей оптимальной мощностью котельной, двух отдельно расположенных спальных комнат, расположенной в едином пространстве кухни — гостиной, двух санузлов. Коттедж гармонично подойдет к природному ландшафту любого земельного участка, в сочетании с ухоженным газоном, фруктовым садом и прочими хозяйственными постройками (например, баней, гаражом, мастерской).

-19
Более подробную информацию о проекте и стоимости строительства вы можете уточнить у наших специалистов, обратившись к нам через сайт: https://acpdom.ru/proekty-domov/proekt-doma-yugra/

Планировка дома

-20

Преимущества домов до 100 кв. м

Проекты домов до 100 кв. м являются популярным выбором среди многих семей и людей, желающих создать уютное и комфортабельное жилище. Эти проекты обладают множеством преимуществ, которые делают их привлекательными для широкого круга людей.

  1. Одним из основных преимуществ домов площадью до 100 кв. метров является их более доступная стоимость как в строительстве, так и в обслуживании. Экономия на затратах на строительство и содержание дома позволяет владельцам сэкономить средства и инвестировать их в другие нужды.
  2. Небольшая площадь позволяет оптимально использовать пространство, делая дом функциональным и удобным для проживания. В таких домах обычно есть все необходимое для комфортной жизни - спальня, гостиная, кухня, ванная комната и т.д.

Уют, комфорт, экономия - все это можно получить, имея небольшой, но функциональный и удобный дом.

Читайте наши предыдущие записи:

Готовы выполнить для вас проект и оказать услуги по строительству домов. Мы работаем в Москве, Московской области и Нижнем Новгороде.

Наш сайт: https://acpdom.ru/