Добавить в корзинуПозвонить
Найти в Дзене
ДОМОСБОР

Уютный летний домик. Дом из CLT панелей по проекту СП 379. Общая площадь: 36 м2

Дорогие друзья! Совсем недавно мы рассказывали про то, что мы создали самую большую линейку проектов из CLT-панелей в России. Разрабатывая нашу линейку проектов, мы обращались не только к зарубежному опыту, но и к опыту российских производств. Благодаря этому синтезу мы создали более 900 проектов из СLT-панелей общей площадью от 50 до 300+ м2. О технологии: В деревянном домостроении СЛТ-панель (CLT) считается относительной новинкой. Впервые этот материал стали применять в середине 90-х годов прошлого века. Относится он к многослойным. Панель состоит из ламелей, просушенных до 12% влажности, склеенных и спрессованных между собой крест-накрест, простроганных и отшлифованных. Вертикальные увеличивают несущую способность, горизонтальные придают продольную жесткость. Несмотря на достаточную дороговизну новинки, она активно востребована, поскольку: О проекте: Предлагаем вашему вниманию проект двухэтажного дома из CLT-панелей СП 379. С такими особенностями, как: второй свет, панорамные окна,

Дорогие друзья! Совсем недавно мы рассказывали про то, что мы создали самую большую линейку проектов из CLT-панелей в России. Разрабатывая нашу линейку проектов, мы обращались не только к зарубежному опыту, но и к опыту российских производств. Благодаря этому синтезу мы создали более 900 проектов из СLT-панелей общей площадью от 50 до 300+ м2.

О технологии: В деревянном домостроении СЛТ-панель (CLT) считается относительной новинкой. Впервые этот материал стали применять в середине 90-х годов прошлого века. Относится он к многослойным. Панель состоит из ламелей, просушенных до 12% влажности, склеенных и спрессованных между собой крест-накрест, простроганных и отшлифованных. Вертикальные увеличивают несущую способность, горизонтальные придают продольную жесткость. Несмотря на достаточную дороговизну новинки, она активно востребована, поскольку:

  • процесс возведения быстрый и простой, напоминает детский конструктор (минимум строительного мусора);
  • усадка отсутствует, поэтому можно сразу приступать к внутренней и внешней отделке любыми материалами;
  • поверхность идеально ровная, а для коммуникаций согласно проекту заранее проложены трассы;
  • в помещениях обеспечен идеальный микроклимат благодаря экологичности (применяется клей класса Е1);
  • допустимо строить даже многоэтажные (до 30 этажей) дома (низкая нагрузка на фундамент), и все они сейсмостойкие, пожаробезопасные, с высокой звукоизоляцией и теплоизоляцией в 3-5 раз выше бетона, кирпича.

О проекте: Предлагаем вашему вниманию проект двухэтажного дома из CLT-панелей СП 379. С такими особенностями, как: второй свет, панорамные окна, терраса, эркер.

Мы предлагаем на Ваш выбор одну из трех комплектаций, которая имеет разное наполнение, но заключает в себе все основные технологические и ответственные этапы строительства, которые лучше всего доверить профессионалам из нашей компании.

Ознакомится с комплектациями можно на этой странице.

Купив у нас дом, вы получаете готовую к отделочным работам постройку, которая стоит на фундаменте, накрыта кровлей сделанной на МЗП со вставленными металлопластиковыми окнами и дверьми, полностью сопровождена проектной документацией. Дом, баня, гараж или навес снаружи абсолютно готовы при выборе максимальной комплектации. Вам остается только сделать инженерные коммуникации самостоятельно или с нашей помощью. А также своими силами или с помощью сторонней организации выполнить отделочные работы.

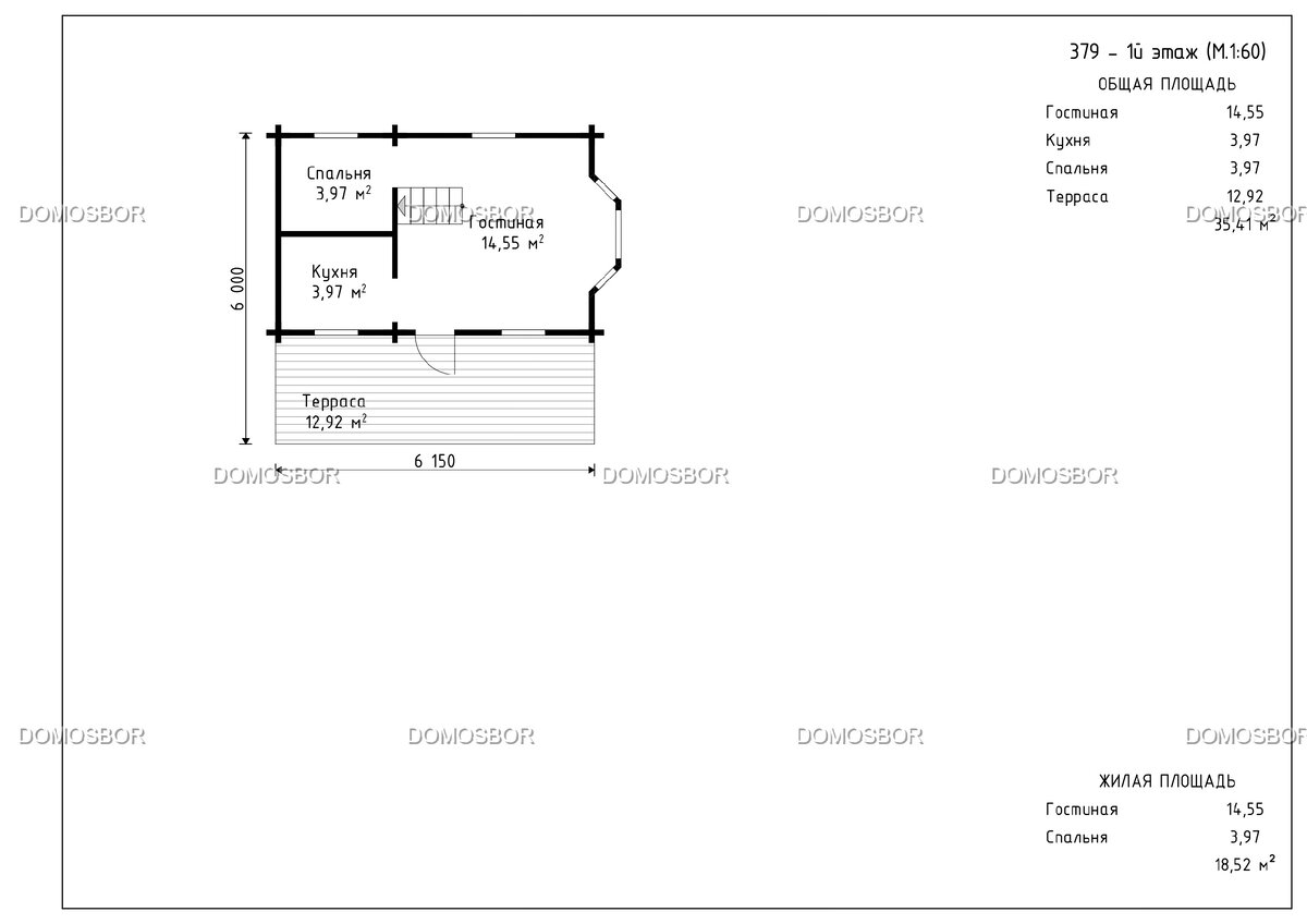
  • Общая площадь: 36 м2
  • Жилая площадь: 29 м2
  • Площадь кухни: 4 м2
  • Площадь гостиной: 15 м2
  • Пятно застройки в м.п: 6х6
  • Технология: CLT (СЛТ) панели
  • Кол-во комнат: 3 комнаты
  • Этажность: 2 этажа

Заказать строительство по нашим проектам Вы можете несколькими способами: оформить заявку на нашем сайте, позвонить нам или приехать к нам в офис. С помощью нашей компании, вы сможете приобрести ипотеку на строительство ИЖС от ведущих банков, таких как Сбер, Дом РФ, Почта банк , Росбанк и прочие. Домосбор является аккредитованной организацией во всех вышеперечисленных банках.