Найти в Дзене
ДОМОСБОР

Хватит сомневаться, пора уже решаться. Каркасный дом для всей семьи. Общая площадь: 73 м2

Дорогие друзья! В заголовке достаточно хороший призыв, поэтому предлагаем от него оттолкнутся. Хватит сомневаться, пора уже решаться. Знакомьтесь с проектом каркасного дома KR 102. Общая площадь: 73 м2. О технологии: Технология строительства каркасных домов появилась давно. Называется она так потому, что в основе строения присутствует несущий каркас. После его возведения он заполняется послойно разными современными материалами, которые обеспечивают защиту от любых неблагоприятных воздействий (влаги, ветра, холода и пр.). Сегодня по статистике более 50% частных владений именно каркасные. Что так привлекает домовладельцев в «слоеном пироге»? Среди основных факторов: По сроку службы каркасные дома уступают кирпичным, каменным, тем не менее, это от 70 до 100 лет при хороших по качеству пиломатериалах. Следует отметить, что предшественником каркасной была китайская рамная технология. На ее основе возведены храмы, которым уже несколько тысячелетий. Обязательна для каркасного строения вентиля

Дорогие друзья! В заголовке достаточно хороший призыв, поэтому предлагаем от него оттолкнутся. Хватит сомневаться, пора уже решаться. Знакомьтесь с проектом каркасного дома KR 102. Общая площадь: 73 м2.

О технологии: Технология строительства каркасных домов появилась давно. Называется она так потому, что в основе строения присутствует несущий каркас. После его возведения он заполняется послойно разными современными материалами, которые обеспечивают защиту от любых неблагоприятных воздействий (влаги, ветра, холода и пр.). Сегодня по статистике более 50% частных владений именно каркасные. Что так привлекает домовладельцев в «слоеном пироге»? Среди основных факторов:

  • возможность строительства в любым регионах, включая сейсмоопасные  (разработаны специальные узлы);
  • относительно невысокая стоимость (дом обойдется даже дешевле, чем из газобетонных блоков);
  • облегченный вес конструкции, высокая скорость строительства и возможность работать в любой сезон;
  • отменная энергоэффективность за счет многослойных стен;
  • экологичность (древесина, минеральная вата, ГКЛ, ГСП, OSB), готовность к чистовой отделке сразу после завершения строительства, возможность применять любые отделочные материалы.

По сроку службы каркасные дома уступают кирпичным, каменным, тем не менее, это от 70 до 100 лет при хороших по качеству пиломатериалах. Следует отметить, что предшественником каркасной была китайская рамная технология. На ее основе возведены храмы, которым уже несколько тысячелетий. Обязательна для каркасного строения вентиляция, а также специальные пропитки от насекомых, грызунов. Высока пожароопасность, но это относится к любой древесине, поэтому желательна и огнестойкая пропитка.

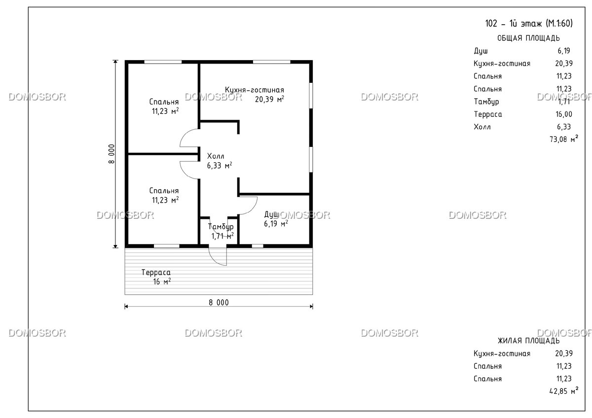
О проекте: Предлагаем Вашему вниманию рассмотреть строительство одноэтажного дома KR 102 из каркаса с такими особенностями как: тамбур, терраса.

  • Общая площадь: 73 м2
  • Жилая площадь: 43 м2
  • Площадь кухни с гостиной: 21 м2
  • Технология: каркасный дом
  • Пятно застройки в м.п: 8х8
  • Этажность: 1 этаж
  • Кол-во комнат: 3 комнат
  • Кол-во с/у: 1 санузла
-2

Мы предлагаем на Ваш выбор одну из трех комплектаций, которая имеет разное наполнение, но заключает в себе все основные технологические и ответственные этапы строительства, которые лучше всего доверить профессионалам из нашей компании.

Ознакомится с комплектациями можно на этой странице.

Купив у нас дом, вы получаете готовую к отделочным работам постройку, которая стоит на фундаменте, накрыта кровлей сделанной на МЗП со вставленными металлопластиковыми окнами и дверьми, полностью сопровождена проектной документацией. Дом, баня, гараж или навес снаружи абсолютно готовы при выборе максимальной комплектации. Вам остается только сделать инженерные коммуникации самостоятельно или с нашей помощью. А также своими силами или с помощью сторонней организации выполнить отделочные работы.

Заказать строительство по нашим проектам Вы можете несколькими способами: оформить заявку на нашем сайте, позвонить нам или приехать к нам в офис. С помощью нашей компании, вы сможете приобрести ипотеку на строительство ИЖС от ведущих банков, таких как Сбер, Дом РФ, Почта банк , Росбанк и прочие. Домосбор является аккредитованной организацией во всех вышеперечисленных банках.