Найти в Дзене
ЭТО ВАШ ИНТЕРЬЕР

«Крошечная, но своя» — супруги купили квартиру 29 м² и сделали бюджетный ремонт всего за 900 тысяч рублей. Показываю, что у них получилось

Оглавление

В моей сегодняшней статьи речь пойдёт о молодой супружеской паре. Они давно копили на свою собственную квартиру, и вот наконец-то настал момент, когда они приобрели своё первое собственное жильё. Они пока планируют жить в нём, но в дальнейшем, они хотят сдавать эту квартиру в аренду.

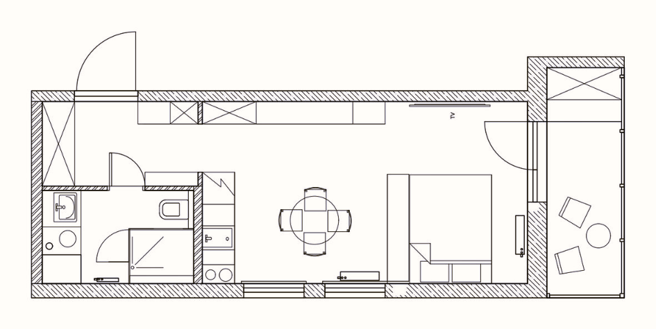
Квартира имеет небольшую площадь, всего лишь 29 "квадратов", поэтому главной задачей было создание грамотного и продуманного интерьера, чтобы максимально рационально использовать каждый сантиметр пространства. Для выполнения поставленной задачи был приглашен профессиональный дизайнер.

Проект

  • Местоположение: г. Санкт-Петербург
  • Площадь квартиры: 29 кв. м
  • Владельцы: молодая семейная пара
  • Бюджет: 900 000 руб.

Прихожая

Хоть квартира и не блещет внушительным метражом, входная зона получилась довольно просторной и функциональной. Здесь разместили абсолютно все необходимые атрибуты, которые есть в любой прихожей. Слева от входа появилась открытая вешалка для верхней одежды, черная лавочка с полками для обуви, напротив которой поставили вертикальную галошницу из "Икеи".

-2

Справа от входной двери есть глубокая ниша, где установили вместительный гардероб с зеркальными фасадами. Благодаря зеркалам, пространство кажется визуально больше. Что касается отделки, то на полу использовали керамогранит, а стены оклеили обоями, которые имитируют декоративную штукатурку.

-3

Кухня

Кухонная зона располагается по правой стороне от входа в помещение. Напольное покрытие выложено ламинатом, а стены так же оклеили обоями с эффектом декоративной штукатурки. Здесь установлен Г-образный гарнитур с двухцветными фасадами — серыми и белыми. Столешницу продлили на весь подоконник, чтобы увеличить площадь рабочей зоны. Фартук облицован белой плиткой.

В центре комнаты находится столовая зона с круглым обеденным столом, который при необходимости можно разложить.

Спальня

Рядом со столовой группой поставили книжный стеллаж, который зрительно зонирует пространство. За стеллажом была организована спальная зона. Под двуспальной кроватью сделали небольшой подиум, который скрывает в себе дополнительные места для хранения. Напротив кровати повесили телевизор.

Ванная комната

Ванную комнату было решено оформить в темных цветах, поэтому стены и пол облицевали двумя видами черного керамогранита. В качестве яркого акцента здесь выступает подвесная белоснежная тумба. От ванны хозяева отказались в пользу душевой кабины. Здесь так же нашлось место для стиральной машины (план квартиры может немного отличатся от итогового исполнения).

Если вам понравилась статья, то не забудьте поставить лайк и подписаться, чтобы не пропустить новый материал!

Так же пишите в комментариях, что вам понравилось в этом проекте, а что вызывает сомнения.