Найти в Дзене
Филдс

Лаконичный интерьер без лишних шкафов: как оформили евротрешку 88 м² с двумя гардеробными

Дизайнер Татьяна Бакланова оформила евротрешку 88 м² для девушки с ребенком. Лаконичность интерьера подчеркнули единым цветовым решением, сдержанной цветовой гаммой и похожими отделочным материалами с фактурой дерева. Планировка В квартире провели перепланировку, в результате которой появилось большое единое пространство кухни, гостиной и прихожей. Кроме этого, сформировали две гардеробных и большой санузел. В детской ремонт пока не завершился. Гостиная В отделке комнаты преимущественно использовали краску. Ее разбавили деревянными рейками в ТВ-зоне. Стены по бокам от них украшает роспись под мрамор, ее вручную выполнил художник. На пол уложили кварцвинил. Необычным элементом стала деревянная арка, которая украсила проем, отделяющий гостиную от кухни. Между панелями встроили подсветку. Кухня Гарнитур расположили Г-образно. Фасады первого ряда навесных шкафов оформили под дерево, а дверцы антресольных секций соотносятся с нижними шкафами и пеналами со встроенной техникой. Частью еди
Оглавление

Дизайнер Татьяна Бакланова оформила евротрешку 88 м² для девушки с ребенком. Лаконичность интерьера подчеркнули единым цветовым решением, сдержанной цветовой гаммой и похожими отделочным материалами с фактурой дерева.

  • Общая площадь: 88 м²
  • Место: Тамбов
  • Тип дома: кирпичный
  • Количество комнат: евротрешка
  • Бюджет: 5 млн рублей
  • Кто здесь живет: девушка с ребенком

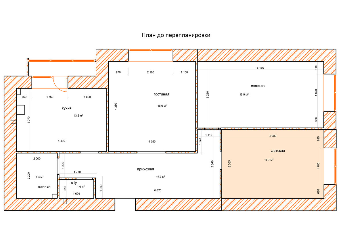
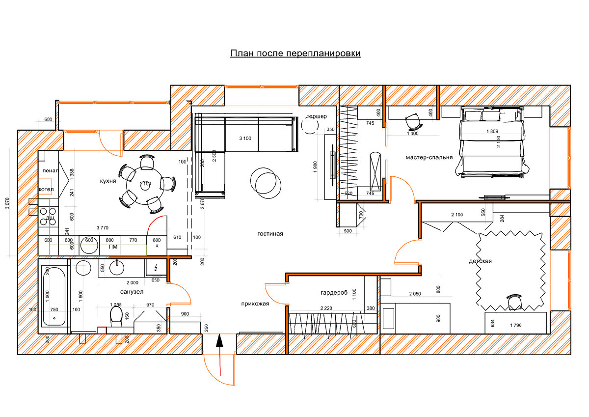
Планировка

В квартире провели перепланировку, в результате которой появилось большое единое пространство кухни, гостиной и прихожей. Кроме этого, сформировали две гардеробных и большой санузел. В детской ремонт пока не завершился.

Гостиная

В отделке комнаты преимущественно использовали краску. Ее разбавили деревянными рейками в ТВ-зоне. Стены по бокам от них украшает роспись под мрамор, ее вручную выполнил художник. На пол уложили кварцвинил.

Необычным элементом стала деревянная арка, которая украсила проем, отделяющий гостиную от кухни. Между панелями встроили подсветку.

Кухня

Гарнитур расположили Г-образно. Фасады первого ряда навесных шкафов оформили под дерево, а дверцы антресольных секций соотносятся с нижними шкафами и пеналами со встроенной техникой.

Частью единой мебельной конструкции стали открытые стеллажи при входе в кухню. На фартук уложили керамогранит под мрамор, который перекликается со стеной в гостиной.

В обеденной зоне решили сыграть на контрасте. Темные ножки стульев и стола с белой столешницей помогли добавить выразительности. Яркими акцентами стали люстра с позолоченными элементами и картина на стене.

Спальня

Нейтральный интерьер разбавили при помощи фактурных и контрастных деталей — это рельефные панели и темные рамы картин в изголовье. Прикроватные тумбы сделали подвесными, чтобы визуально облегчить пространство.

Для туалетного столика запланировали специальную нишу с зеркалом. Гардеробную скрыли за раздвижными дверьми из тонированного стекла.

Санузел

Благодаря комбинации керамогранита темных и светлых оттенков в санузле удалось добиться необычного визуального эффекта. Ванну будто бы заключили в портал. С ним соотносятся деревянный короб для инсталляции и фасады всей корпусной мебели.

Прихожая

В прихожей за разнообразие фактур отвечают стены, частично оформленные под бетон, а также деревянные рейки, которые завели на потолок. Их поддержали деревянной рамой зеркала. Поскольку в квартире есть две гардеробные, заставлять помещение шкафами не стали. Тем более что оно фактически является частью гостиной.

Интересные мнения в комментариях приветствуются. Если материал понравился — ставь лайк!

🖤 Филдс — это не только блог на Дзене, но и магазин дизайнерской мебели. Заходите на сайт, чтобы увидеть предметы интерьера, которую дизайнеры выбирают для своих проектов.