Найти в Дзене

40 КВ.М. МУЖСКОГО УЮТА В СТИЛЕ «ИНДАСТРИАЛ»

Женский и мужской интерьер для жизни выглядит по-разному. Заказчик – молодой и активный мужчина. Его квартира место не только для домашней жизни и отдыха, но и для проведения времени со своими друзьями.
Задачи, поставленные в работе:
· комфортная квартира в стиле «индастриал»;
· объединить кухню и гостевую зону;
· проектор и подвесной экран;
· открытое хранение – стеллажи;
· небольшой кухонный гарнитур.
Прежде чем приступить к составлению визуала, необходимо продумать и согласовать планировочной решение.
Было принято решение отделить спальную зону перегородкой. Зона кухни и гостевая зона была объединена. Балкона предлагалось отдать или под рабочую зону, или под зону отдыха.
Заказчику было предложено 3 варианта планировки квартиры.
Было принято решение работать с планировкой №2. Удачное решение! Все зоны чётко разделены. Для сна, равлечений и работы – своё пространство! Итак, готовы увидеть результат? Главное – проработать всё пространство.
Создать красивое, а самое главное

Женский и мужской интерьер для жизни выглядит по-разному. Заказчик – молодой и активный мужчина. Его квартира место не только для домашней жизни и отдыха, но и для проведения времени со своими друзьями.

Задачи, поставленные в работе:
· комфортная квартира в стиле «индастриал»;
· объединить кухню и гостевую зону;
· проектор и подвесной экран;
· открытое хранение – стеллажи;
· небольшой кухонный гарнитур.

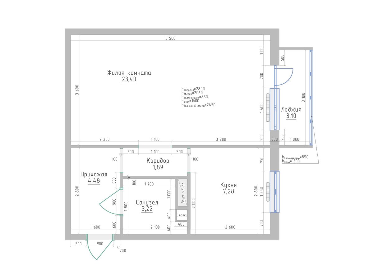
                                                            Исходная планировка
Исходная планировка

Прежде чем приступить к составлению визуала, необходимо продумать и согласовать планировочной решение.
Было принято решение отделить спальную зону перегородкой. Зона кухни и гостевая зона была объединена. Балкона предлагалось отдать или под рабочую зону, или под зону отдыха.

Заказчику было предложено 3 варианта планировки квартиры.

Было принято решение работать с планировкой №2.

Удачное решение! Все зоны чётко разделены. Для сна, равлечений и работы – своё пространство!

-3
          Цветовая гамма предпочитаемая в интерьере.
Цветовая гамма предпочитаемая в интерьере.

Итак, готовы увидеть результат?

Главное – проработать всё пространство.
Создать красивое, а самое главное – функциональные зоны.