Найти в Дзене
ДОМ с умом

Традиционный коттедж в современной интерпретации

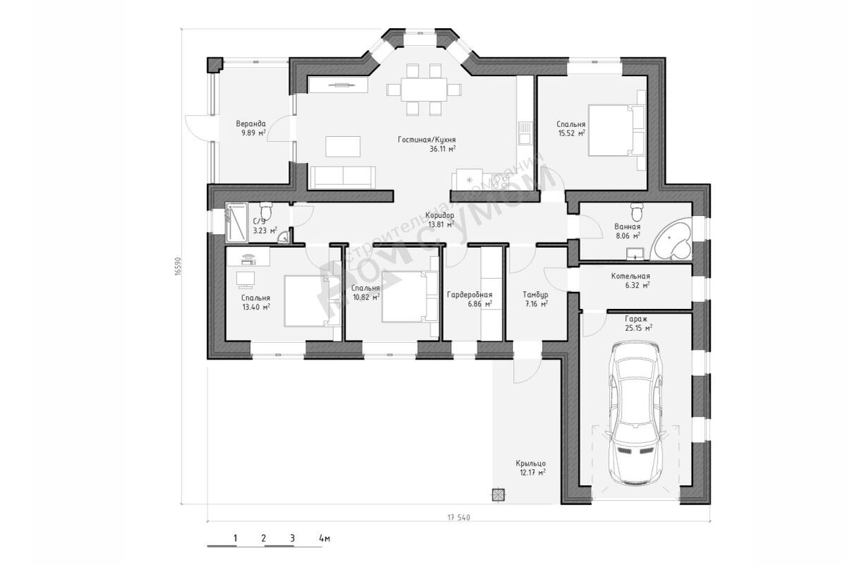
Проект "Вишня" - одноэтажный дом с нотками классики общей площадью 145 кв.м. Отличное сочетание архитектуры и планировочных решений. Характеристики: Общая площадь: 169,7 кв.м
Жилая площадь: 145,2 кв.м
Габариты: 17,5 х 16,7 м
Фундамент: свайно-ростверковый
Стены: керамзитоблок 400 мм, утепление 100 мм
Отделка фасада: керамический кирпич
Перекрытия: цоколь - полы по грунту, чердачные - по деревянным балкам Крыша - из металлочерепицы по деревянной стропильной системе Планировка: Заходя в дом, мы попадаем в просторный тамбур, где не будет тесно всем членам семьи одновременно. Рядом котельная и большая гардеробная. Проходя дальше мы оказываемся в общей зоне кухни-гостиной площадью 34 м². Из гостиной можно выйти на небольшую веранду. Ночная зона представлена 3 спальнями комфортного размера. В доме запроектированы большой совмещенный санузел и туалет. ▪️▪️▪️▪️▪️▪️▪️▪️▪️▪️▪️▪️▪️▪️▪️▪️▪️▪️▪️▪️▪️▪️▪️▪️▪️▪️▪️▪️▪️▪️▪️▪️▪️▪️▪️▪️▪️▪️▪️▪️▪️▪️▪️▪️▪️▪️▪️▪️▪️▪️▪️▪️▪️▪️▪️▪️▪️▪️▪️▪️▪️▪️
📌Жилая пл
Оглавление

Проект "Вишня" - одноэтажный дом с нотками классики общей площадью 145 кв.м. Отличное сочетание архитектуры и планировочных решений.

Характеристики:

Общая площадь: 169,7 кв.м
Жилая площадь: 145,2 кв.м
Габариты: 17,5 х 16,7 м
Фундамент: свайно-ростверковый
Стены: керамзитоблок 400 мм, утепление 100 мм
Отделка фасада: керамический кирпич
Перекрытия: цоколь - полы по грунту, чердачные - по деревянным балкам Крыша - из металлочерепицы по деревянной стропильной системе

Планировка:

Заходя в дом, мы попадаем в просторный тамбур, где не будет тесно всем членам семьи одновременно. Рядом котельная и большая гардеробная. Проходя дальше мы оказываемся в общей зоне кухни-гостиной площадью 34 м². Из гостиной можно выйти на небольшую веранду. Ночная зона представлена 3 спальнями комфортного размера. В доме запроектированы большой совмещенный санузел и туалет.

-2

▪️▪️▪️▪️▪️▪️▪️▪️▪️▪️▪️▪️▪️▪️▪️▪️▪️▪️▪️▪️▪️▪️▪️▪️▪️▪️▪️▪️▪️▪️▪️▪️▪️▪️▪️▪️▪️▪️▪️▪️▪️▪️▪️▪️▪️▪️▪️▪️▪️▪️▪️▪️▪️▪️▪️▪️▪️▪️▪️▪️▪️▪️
📌Жилая площадь – 145,2 кв.м
📌Кухня-гостиная - 34,7 кв.м
📌Спальни – 3 шт.
📌Веранда - 9,8 кв.м
▪️▪️▪️▪️▪️▪️▪️▪️▪️▪️▪️▪️▪️▪️▪️▪️▪️▪️▪️▪️▪️▪️▪️▪️▪️▪️▪️▪️▪️▪️▪️▪️▪️▪️▪️▪️▪️▪️▪️▪️▪️▪️▪️▪️▪️▪️▪️▪️▪️▪️▪️▪️▪️▪️▪️▪️▪️▪️▪️▪️▪️▪️▪️▪️
Стоимость проектной документации (серии АР, КР) - 26 000 руб.