Добавить в корзинуПозвонить
Найти в Дзене

12 популярных проектов одноэтажных домов с гаражом и террасой

Представляем 12 популярных проектов одноэтажных домов с гаражом и террасой, пользующихся среди наших клиентов особенной популярностью. По отзывам опытных жильцов в одноэтажном доме полезного пространства — максимум. Проходных зон меньше. Не нужно тратить площадь на холлы, из-за лестницы их будет два, на саму лестницу тоже. К слову, она создаёт акустическую зону. Кроме того, в таком доме легче жить и семьям с детьми, и пожилым людям. Одноэтажные дома небольшие по площади, поэтому вопрос тепла решается без особых проблем. Разумеется, если с системами всё в порядке. Если с земельным участком повезло, то, выходит — одноэтажный дом: безопаснее, быстрее, удобнее и дешевле. Проект одноэтажного дома с эркером и гаражом размером 17 на 16 метров. Общая внутренняя площадь данного варианта коттеджа составляет 195 кв. м. Планировка дома состоит из следующих помещений: тамбура, просторного холла, удобного гардероба, трех отдельных спален, оборудованной современной техникой кухни, комфортабельной гос
Оглавление

Представляем 12 популярных проектов одноэтажных домов с гаражом и террасой, пользующихся среди наших клиентов особенной популярностью. По отзывам опытных жильцов в одноэтажном доме полезного пространства — максимум. Проходных зон меньше. Не нужно тратить площадь на холлы, из-за лестницы их будет два, на саму лестницу тоже. К слову, она создаёт акустическую зону. Кроме того, в таком доме легче жить и семьям с детьми, и пожилым людям. Одноэтажные дома небольшие по площади, поэтому вопрос тепла решается без особых проблем. Разумеется, если с системами всё в порядке. Если с земельным участком повезло, то, выходит — одноэтажный дом: безопаснее, быстрее, удобнее и дешевле.

1. Проект одноэтажного дома «Флотилия»

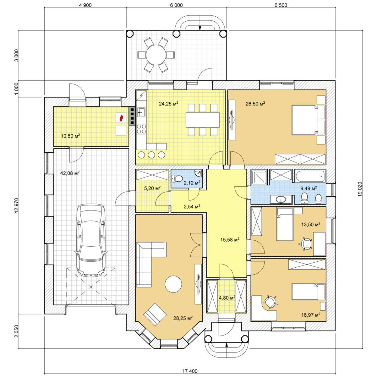
Проект одноэтажного дома с эркером и гаражом размером 17 на 16 метров. Общая внутренняя площадь данного варианта коттеджа составляет 195 кв. м. Планировка дома состоит из следующих помещений: тамбура, просторного холла, удобного гардероба, трех отдельных спален, оборудованной современной техникой кухни, комфортабельной гостиной, двух санузлов, котельной. Преимущества данного варианта состоят в том, что если взять два дома с одинаковой общей площадью, то полезной площади в одноэтажном будет больше, как раз благодаря отсутствию лестницы. Дом выделяется оригинальной отделкой наружных стен, оформлением крыльца.

>>> Ссылка на проект: https://acpdom.ru/proekty-domov/proekt-doma-flotiliya/

Планировка дома

-2

2. Проект одноэтажного дома «Каспий»

Проект одноэтажного дома с гаражом 19 на 10 метров. Общая внутренняя площадь данного сооружения составляет 151 кв. м. Планировка дома включает состоит из следующего набора помещений: тамбура, холла, котельной, трех отдельных спальных комнат, современной оборудованной кухни, просторной гостиной, двух санузлов, террасы, гаража. Несмотря на кажущуюся простоту, данное сооружение обеспечивает комфортную атмосферу для каждого человека, проживающего здесь или приезжающего в гости. Проект подходит для строительства как в черте города, так и на территории коттеджного поселка или другого населенного пункта.

-3

>>> Ссылка на проект: https://acpdom.ru/proekty-domov/proekt-doma-kaspiy/

Планировка дома

-4

3. Проект одноэтажного дома «Волжский»

Проект одноэтажного дома с гаражом и террасой 17 на 17 метров, его внутренняя площадь достигает 164 кв. м. Планировка дома функционально проработана и состоит из следующих помещений: тамбура, комфортного холла, котельной, трех отдельных спальных комнат, обустроенной современной кухни (мечты домохозяек), уютной гостиной, двух санузлов, гардероба. Благодаря продуманной планировке и качественному внутреннему интерьеру в этом грамотно организованном и уютном доме есть все необходимое для комфортного проживания большой семьи. Данный проект гармонично подойдет к природному ландшафту любого земельного участка.

-5

>>> Ссылка на проект: https://acpdom.ru/proekty-domov/proekt-doma-volzhskiy/

Планировка дома

-6

4. Проект одноэтажного дома «Валдай»

Проект одноэтажного дома с гаражом и террасой (верандой) 19 на 15 метров. Данный коттедж имеет общую площадь 151 кв. м. В планировочном решении в проекте предусмотрено наличие: удобного тамбура, просторного холла, трех отдельных спальных комнат, отлично оборудованной кухни-гостиной, двух санузлов, котельной. Проект подходит для строительства как в черте города, так и за его пределами. Данное сооружение обеспечивает комфортную атмосферу для каждого человека, проживающего здесь или приезжающего в гости, благодаря продуманной планировке и качественному внутреннему интерьеру.

-7

>>> Ссылка на проект: https://acpdom.ru/proekty-domov/proekt-doma-valday/

Планировка дома

-8

5. Проект одноэтажного дома «Ладный»

Проект одноэтажного дома со встроенным гаражом и террасой, общая площадь которого составляет 131 кв.м., а осевые размеры достигают 13.6 на 12.5 метров. В планировочном решении проекта предусматривается наличие двух комфортных спальных комнат, уютного кабинета, просторной и функциональной гостиной-кухни-столовой, двух санузлов, котельной и холла. Кровля отличается оригинальной формой, входная группа особенно комфортна благодаря террасе. Благодаря продуманной планировке и качественному внутреннему интерьеру в этом грамотно организованном и уютном доме есть все необходимое для комфортного проживания.

-9

>>> Ссылка на проект: https://acpdom.ru/proekty-domov/proekt-doma-valday/

Планировка дома

-10

6. Проект одноэтажного дома 1-033

Проект одноэтажного дома с плоской крышей и гаражом на два автомобиля. Размеры дома 12.3 на 20 м с общей площадью 161 кв.м. Дом выполнен с использованием архитектурных стилей минимализм и флэтхаус. Планировочное решение дома состоит из: трех спален, гостиной-столовой, кухни, котельной, трех санузлов и коридорной части. В загородном доме по данному проекту четко размещены помещения по их функциональному назначению, что помогает организовать комфортное проживание жильцам, а за счет всего одного этажа семье с маленьким ребенком или пожилым людям не придется испытывать трудности и опасения в виде лестницы.

-11

>>> Ссылка на проект: https://acpdom.ru/proekty-domov/proekt-doma-1-033/

Планировка дома

-12

7. Проект одноэтажного дома 1-194

Проект одноэтажного дома 14 на 15 м, площадью 190 кв.м. Планировочное решение дома состоит из удобно расположенного гаража, просторной террасы, сауны, санузла, двух удачно расположенных спален. Особенно следует отметить кухню-гостиную с камином, которая станет любимым местом сбора всей семьи. Данное помещение грамотно зонируется с помощью мебели, к нему примыкает терраса, что позволяет перенести прием пищи на открытое пространство. Планировка коттеджа сочетает максимальную функциональность с комфортом и уютной атмосферой, свойственной качественному загородному жилищу.

-13

>>> Ссылка на проект: https://acpdom.ru/proekty-domov/proekt-doma-1-194/

Планировка дома

-14

8. Проект одноэтажного дома «Парковая вилла»

Проект одноэтажного дома 20 на 16 м, площадью 245 кв.м с мезонином. Планировка дома функционально проработана и состоит из следующих помещений: гаража на два автомобиля, террасы с барбекю, гостиной-столовой с камином и трех отдельно расположенных спален, двух санузлов с ваннами. Особенную изысканность придает проекту мезонин, который можно по желанию использовать для размещения дополнительной спальной комнаты или кабинета. Многих собственников прельщает наличие просторного гаража на два автомобиля, что сейчас является признаком современных семей. Входная группа и в целом фасад здания оригинально оформлены.

-15

>>> Ссылка на проект: https://acpdom.ru/proekty-domov/proekt-parkovaja-villa/

Планировка дома

9. Проект одноэтажного дома «Комфорт 3»

Проект современного одноэтажного дома. Сооружение оснащено гаражом и большой крытой террасой, разработано в европейском стиле. Его площадь составляет 167 кв.м, а осевые размеры достигают 13.5 на 21 м. В планировочном решении проекта предусматривается наличие четырех спальных комнат, просторной гостиной-столовой с выходом на террасу, кухни, трех санузлов, котельной. Панорамные окна в сочетании с лаконичной отделкой фасада создают атмосферу света и теплого загородного уюта. Гараж на две машины зачастую является определяющим при выборе варианта проекта. Изюминкой здания станет просторная крытая терраса, особенно комфортная в летнее время.

-17

>>> Ссылка на проект: https://acpdom.ru/proekty-domov/proekt-doma-komfort-3/

Планировка дома

-18

10. Проект одноэтажного дома 1-074

Проект одноэтажного дома 15 на 16 м, общей площадью 129 кв.м. Оригинальным отличием проекта является наличие гаража и навеса для автомобиля. Типовое планировочное решение дома включает в себя наличие комфортной террасы, эркера, двух отдельно расположенных спален, санузла и совмещенной кухни-гостиной. Проект подходит для строительства как в черте города, так и на территории коттеджного поселка или другого населенного пункта. Высокие окна оригинально оформлены, фасад привлекает симпатичной отделкой. В этом коттедже внешняя простота оформления экстерьера органично сочетается с предельной функциональностью каждого помещения.

-19

>>> Ссылка на проект: https://acpdom.ru/proekty-domov/proekt-doma-1-074/

Планировка дома

-20

11. Проект одноэтажного дома 1-017

Проект универсального одноэтажного дома. В коттедже предусмотрен гараж на 1 машину и 2 террасы. Общие размеры сооружения достигают 13 на 14 м, а площадь составляет 127 кв.м. Типовое планировочное решение дома включает в себя наличие трех отдельных спальных комнат, уютной гостиной, современной оборудованной кухни, котельной, двух санузлов. Благодаря продуманной планировке и качественному внутреннему интерьеру в этом грамотно организованном и уютном доме есть все необходимое для комфортного проживания. При внешней простоте оформления данный проект вызывает только положительные впечатления.

-21

>>> Ссылка на проект: https://acpdom.ru/proekty-domov/proekt-doma-1-017/

Планировка дома

-22

12. Проект одноэтажного дома 1-052

Проект одноэтажного дома, разработанного в стиле хай-тек с плоской крышей. Габариты коттеджа составляют 19 на 15 м, общая площадь 179 кв.м. Планировочное решение проекта включает наличие гаража на два автомобиля, террасу, два санузла и три отдельных спальных комнаты. Хай-тек сочетает в себе простоту с рациональностью. Дом, построенный в этом стиле, отличается оригинальностью и лаконичностью, в их форме просматривается четкая геометрия. Элементы постройки оригинально ассиметричны и дополняют друг друга. Этот коттедж подойдет семьям, любящим сочетание функциональности с комфортом.

-23

>>> Ссылка на проект: https://acpdom.ru/proekty-domov/proekt-doma-1-052/

Планировка дома

-24

Заключение

Каждый заинтересованный землепользователь, мечтающий о собственном доме, может выбрать из представленных 12 популярных проектов одноэтажных домов с гаражом и террасой вариант по собственным предпочтениям и финансовым возможностям. Или перейти к нам на сайт и посмотреть больше проектов одноэтажных домов.

Жить в один уровень однозначно комфортнее, удобнее, более по-семейному. А при наличии детей и стариков, еще и безопаснее. Независимо от площади, выбранной технологии и материала, а также, архитектуры, одноэтажный дом строить проще и легче физически, так как нет высотных работ. И это касается как возведения стен и крыши, так и остекления, и фасадной отделки, а в дальнейшем будет меньше сложностей с обслуживанием и ремонтом.

Готовы выполнить для вас проект и оказать услуги по строительству домов. Мы работаем в Москве, Московской области и Нижнем Новгороде.

https://acpdom.ru/ (Москва и Московской область)

https://nn.acpdom.ru/ (Нижний Новгород и Нижегородская область)

Читайте наши предыдущие записи: