Найти в Дзене

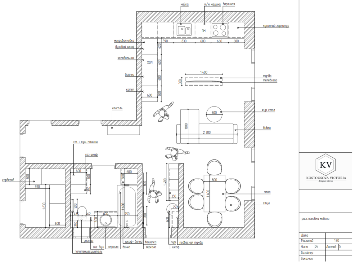
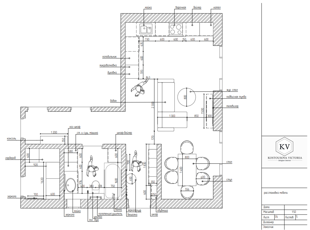
Планировочное решение

Планировочные решения - это основа успешного дизайна интерьера. Они позволяют оптимально использовать пространство, создавать уютные и функциональные помещения. Правильно спланированный интерьер не только приятен визуально, но и удобен в использовании.
Зачем нужны планировочные решения?
-Во-первых, они помогают определить функциональные зоны в помещении и распределить мебель и предметы так, чтобы они были удобны в использовании.
-Во-вторых, правильно спланированные помещения могут создать впечатление просторности и гармонии, даже в небольших квартирах или офисах.
- Наконец, планировочные решения позволяют избежать ошибок, связанных с неудачным распределением пространства и выбором мебели.
Каких ошибок стоит избегать при планировке интерьера?
- Во-первых, не следует забывать о функциональности помещения. Мебель должна быть размещена так, чтобы не создавать препятствий для передвижения и использования комнаты.
- Во-вторых, важно учитывать естественное освещение помещения при планировке
-2
-3

Планировочные решения - это основа успешного дизайна интерьера. Они позволяют оптимально использовать пространство, создавать уютные и функциональные помещения. Правильно спланированный интерьер не только приятен визуально, но и удобен в использовании.

Зачем нужны планировочные решения?
-Во-первых, они помогают определить функциональные зоны в помещении и распределить мебель и предметы так, чтобы они были удобны в использовании.
-Во-вторых, правильно спланированные помещения могут создать впечатление просторности и гармонии, даже в небольших квартирах или офисах.
- Наконец, планировочные решения позволяют избежать ошибок, связанных с неудачным распределением пространства и выбором мебели.

Каких ошибок стоит избегать при планировке интерьера?
- Во-первых, не следует забывать о функциональности помещения. Мебель должна быть размещена так, чтобы не создавать препятствий для передвижения и использования комнаты.
- Во-вторых, важно учитывать естественное освещение помещения при планировке. Размещение окон и цветовой гаммы могут оказать значительное влияние на общее впечатление от интерьера.

Таким образом, планировочные решения играют важную роль в создании комфортного и стильного интерьера. Правильно спланированные помещения не только улучшают качество жизни, но и способствуют улучшению настроения и продуктивности. Важно помнить, что даже самый красивый дизайн не будет эффективным, если не учитывать функциональные аспекты.#дизайнерсевастополь
#дизайн
#дизайнер
#дизайнеркрым
#дизайнерялта
#дизайнеркраснодар
#дизайнермосква
#новостройка
#новостройки
#недвижимость
#ремонт
#дизайнпроект
#дизайнспальни
#дизайнгостиной
#дизайнкухни
#дизайндетской
#дизайнприхожей
#комплектация
#ремонтдома
#дизайнома
#дизайнквартиры #костоусовадизайн