Найти в Дзене
Студия дизайна itBe

Как правильно выбрать мебель в квартиру без дизайнера

Задуматься о выборе мебели стоит ещё в самом начале ремонта, ведь от расстановки мебели зависит расположение светильников и розеток. Поэтому первое с чего нужно начать, это взять миллиметровую бумагу и разметить расположение основы: кровать, диван, кухонный гарнитур, обеденный стол и т.д. Можно даже вырезать из картона мебель и продвигать её на плане, чтобы найти оптимальный вариант. Так же в интернете есть несколько бесплатных планировщиков, чтобы нарисовать свой план в электронном виде и наметить всю мебель в масштабе. Ключевые моменты, о которых важно помнить при создании планировочного решения: Главные моменты о которых важно помнить при выборе мебели: 1. Где найти дополнительное место для хранения? и т.д. 2. Чтобы сэкономить бюджет, выбирайте готовую, стандартную мебель. Взять её размеры можно у консультантов в салоне или в электронном каталоге/на сайте у производителя. 3. Высота готовых шкафов обычно идёт до 2,3 метров, поэтому если вы хотите разместить готовый шкаф до потолка,

Задуматься о выборе мебели стоит ещё в самом начале ремонта, ведь от расстановки мебели зависит расположение светильников и розеток.

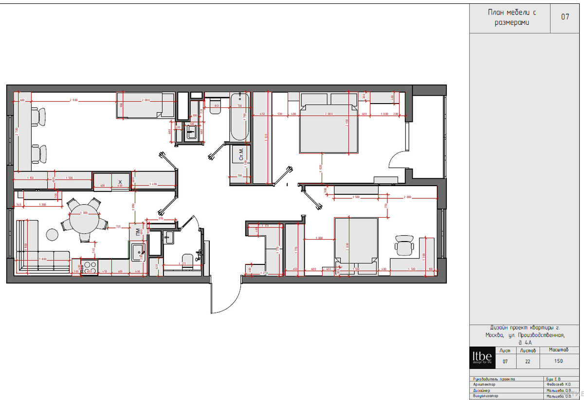
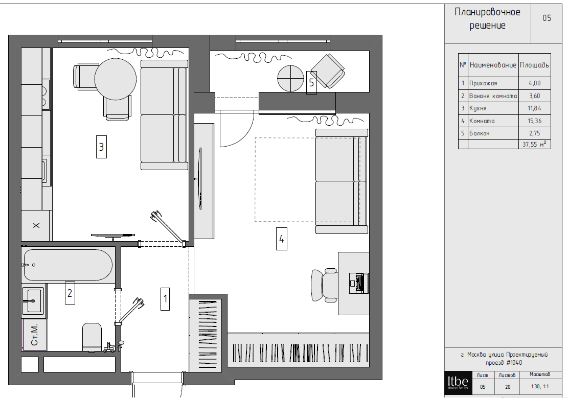
Поэтому первое с чего нужно начать, это взять миллиметровую бумагу и разметить расположение основы: кровать, диван, кухонный гарнитур, обеденный стол и т.д. Можно даже вырезать из картона мебель и продвигать её на плане, чтобы найти оптимальный вариант. Так же в интернете есть несколько бесплатных планировщиков, чтобы нарисовать свой план в электронном виде и наметить всю мебель в масштабе.

Ключевые моменты, о которых важно помнить при создании планировочного решения:

  • Распишите на каждую комнату необходимую мебель, и ориентировочный список того что и в каком количестве там будет хранится, чтобы ничего не забыть
  • Предусмотрите место для сушки и глажки белья. А так же не забудьте про хранение грязного белья перед стиркой
  • Важно не только разместить мебель в комнату, но и занести её туда! Стиральная и сушильная машины, неразборное кресло или комод, вся эта крупногабаритная мебель требует широких дверных проёмов
  • Куда будет раскладываться диван со спальных местом, какой будет для этого механизм? Просчитайте место не только под сам диван, но и под его спальное место
  • Не забывайте про толщину изголовья и боковины у кровати. Например, если ваш матрас будет шириной 160 см, то ширина самой кровати будет 170 и более см, за счёт того, какую обивку вы будете выбирать. Это важно при выборе прикроватных тумб и размещении розеток над ними.
  • Не забудьте про нишу для штор и радиаторы. Из-за них может не открыться фасад шкафа.
  • Если вы размещаете в бытовом шкафу стиральную машину, то его размер будет больше из-за петель и подключения воды. Если ваша стиральная машина 60х60, то шкаф скорее всего будет 70х70
  • Замена водяного полотенцесушителя на электрический позволит вам разместить его в любом удобном для вас месте

Главные моменты о которых важно помнить при выборе мебели:

1. Где найти дополнительное место для хранения?

  • Кровать с подъемным механизмом или выдвижным ящиками
  • Отказ от подвесных тумб в пользу напольных (1-2 ящика по высоте гарантированно прибавится)
  • Шкафы до потолка (используйте верх для хранения несезонных вещей или разместите там пантограф)
  • Хранение в диване: ящики под сиденьем или в подлокотниках
  • Откажитесь от открытых полок или стеклянных фасадов (за ними можно поставить только что-то красивое, а вот со складированием "барахлишка" придется притормозить)
  • Поставьте кровать на подиум с хранением
  • Ящики в цоколе кухни
  • Разместите шкаф над инсталляцией, а не зашивайте её полностью
  • Пуфик с откидной крышкой

и т.д.

2. Чтобы сэкономить бюджет, выбирайте готовую, стандартную мебель. Взять её размеры можно у консультантов в салоне или в электронном каталоге/на сайте у производителя.

3. Высота готовых шкафов обычно идёт до 2,3 метров, поэтому если вы хотите разместить готовый шкаф до потолка, то лучше смонтировать под его размеры потолочный короб из гипсокартона.

4. Если вы решили заказать мебель по индивидуальным размерам, то не торопитесь с заказом, что бы мебель встала идеально, при замерах у вас должны быть финальной подготовлены стены, пол и потолок! Тут лучше месяц подождать, чем подпиливать фасады, если потолок по итогу натянуть на один сантиметр ниже, чем было намечено

5. Встраиваемая бытовая техника имеет разные габариты (встраиваемый холодильник, микроволновая печь, кофемашина, духовой шкаф и др) их лучше приобрести до заказа кухонного гарнитура и предоставить тех.карту производителю

6. Обращайте внимание не только на внешние габариты дивана, но и на толщину его подлокотников, если места мало, лучше отдать предпочтение моделям с тонкими подлокотниками, но большей длине посадочного места

7. Обращайте внимание на фурнитуру (если выбираете бюджетную мебель, фурнитуру при установке лучше заменить на более качественную). Плавное закрывании, доводчики, срок службы механизма, это очень важно!

8. Обязательно выбирайте матрас и мягкую мебель в салоне! Прежде чем купить полежите/посидите на выбранной позиции, внешность часто бывает обманчива!

9. Посещайте мебельные выставки, так вы сможете не только ознакомится с интересными новинками, но и приобрести их по привлекательной цене! Часто мебель на выставки изготавливают специально, а потом её просто некуда везти, поэтому поставщик с радостью сделает вам хорошую скидку, если вы заберёте мебель с экспозиции.

10. Выбирайте мебель на свой вкус, мода меняется, советчики с вами не живут, поэтому ориентируйтесь только на то, что нравится и подходит именно вам!

Надеюсь наши советы помогут вам грамотно спланировать вашу будущую квартиру!