Найти в Дзене
DIVAN.RU

ДО/ПОСЛЕ: превращение старой коммуналки в элегантную квартиру за 4 месяца и 3 млн рублей

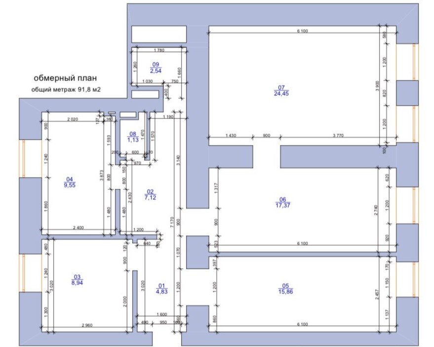
После капитального ремонта эту квартиру просто не узнать. В основу дизайна легли классические приемы и теплые тона моря, песка и солнца. Сравните фото «до» и «после» в нашей статье. О квартире: евротрешка 91,8 кв.м в старом фонде, г. Санкт-Петербург
Автор проекта: дизайнер Натела Тецошвили
Автор фото: Алексей Торозеров
Бюджет проекта: 3 млн рублей На момент покупки жилье в старом доходном доме находилось в запущенном состоянии: обшарпанные стены, ветхие полы и окна, устаревшая плитка в санузлах. От исторических элементов не осталось и следа — обычное дело для бывшей коммуналки. Перепланировка затронула почти все помещения: четырехкомнатная квартира с маленькой кухней и двумя санузлами превратилась в евротрешку с функциональной кухней-гостиной, двумя просторными спальнями, комфортным объединенным санузлом. Итог перепланировки — в галерее ниже, листайте👇 Кухня-гостиная Кухонный гарнитур спроектировали углом. Светлые фасады с фрезеровкой и полупрозрачными стеклами отсылают к классике. О
Оглавление

После капитального ремонта эту квартиру просто не узнать. В основу дизайна легли классические приемы и теплые тона моря, песка и солнца. Сравните фото «до» и «после» в нашей статье.

Проект Нателы Тецошвили; автор фото: Алексей Торозеров
Проект Нателы Тецошвили; автор фото: Алексей Торозеров

О квартире: евротрешка 91,8 кв.м в старом фонде, г. Санкт-Петербург
Автор проекта: дизайнер Натела Тецошвили
Автор фото: Алексей Торозеров
Бюджет проекта: 3 млн рублей

На момент покупки жилье в старом доходном доме находилось в запущенном состоянии: обшарпанные стены, ветхие полы и окна, устаревшая плитка в санузлах. От исторических элементов не осталось и следа — обычное дело для бывшей коммуналки.

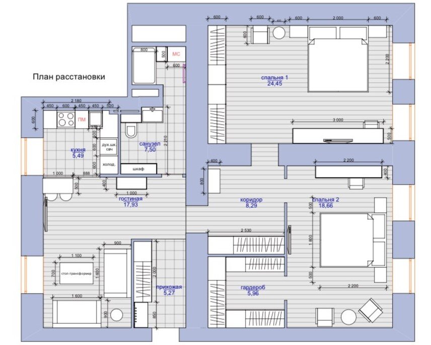
Перепланировка затронула почти все помещения: четырехкомнатная квартира с маленькой кухней и двумя санузлами превратилась в евротрешку с функциональной кухней-гостиной, двумя просторными спальнями, комфортным объединенным санузлом. Итог перепланировки — в галерее ниже, листайте👇

Кухня-гостиная

Кухня до ремонта
Кухня до ремонта

Кухонный гарнитур спроектировали углом. Светлые фасады с фрезеровкой и полупрозрачными стеклами отсылают к классике. От гостиной кухню отделяет барная стойка с мягкими стульями в розовой обивке из велюра. Барную зону выделили парой светильников с плафонами золотого цвета. Чтобы не переборщить с «золотом», основание стола сделали матовым.

Большую часть мебели для проекта заказали у отечественного бренда divan.ru. Кровати, диваны, мягкие кресла в современном и классическом исполнении — у этого производителя есть все, что нужно для обустройства.

В зоне гостиной установили пару диванов песочного цвета. Стены задекорировали молдингами, обстановку дополнили широким классическим карнизом. Грамотно подобранная цветовая гамма привносит в интерьер атмосферу тепла и солнца.

В кадре диван Лави, divan.ru от 39 990₽* >>

Спальни

Спальни оформили в оттенках, напоминающих о море, отдыхе и жарких странах: песочные, лиловые тона, цвет морской волны в текстиле, золотые акценты в аксессуарах. Здесь так же, как в гостиной, чувствуется особое петербургское настроение, подчеркнутое элементами в стиле современной классики.

Мягкое изголовье кровати Марелл от divan.ru в первой спальне по цвету сливается со шторами, «растворяя» габаритную мебель в пространстве. Покрывало подобрали в похожем оттенке. Площадь спальни позволила обустроить не только спальную зону, но и место отдыха с креслами Фабиус классического силуэта. Основание журнального столика поддерживает оттенки золота, использованные в других помещениях.

Благодаря перепланировке в спальне получилось выделить место для отдельной гардеробной.

В кадре кровать Марелл, divan.ru от 32 990₽* >>

В качестве акцентов во второй спальне выступают декор, синие кресла от divan.ru и покрывало цвета морской волны. Стилистика и наполнение помещения близко к оформлению первой спальни. Металлическое основание прикроватных тумб добавляет элегантности и делает обстановку легче.

В кадре кровать Шерона, divan.ru от 36 990₽* >>

-10

☀️️ Переключите ночь на день, а высокие цены — на низкие. Выбирайте акционные товары и применяйте к ним дополнительную скидку 5% по промокоду* APRIL5 >>

Прихожая

Входная зона оформлена в едином стиле со всей квартирой. Здесь установили функциональные встроенные шкафы для верхней и сезонной одежды. В имеющуюся нишу вписали узкую обувницу с ящиками для хранения мелочей. Всю корпусную мебель изготовили на заказ по эскизам дизайнера. Шарма и эстетики добавляют репродукции с женскими лицами и силуэтами, уюта — элегантные полупрозрачные бра.

Санузел

Ванная до ремонта
Ванная до ремонта

Нижнюю часть стен в санузле облицевали керамогранитом под мрамор, верхнюю — покрыли краской для мокрых зон насыщенного фиолетового цвета. Белые мебель, сантехника и декор приглушают яркий оттенок краски. От ванны отказались в пользу душевой кабины.

Проект Нателы Тецошвили; автор фото: Алексей Торозеров
Проект Нателы Тецошвили; автор фото: Алексей Торозеров

Для хранения предусмотрели подвесную тумбу и шкафы над стиральной машиной и за унитазом.

Проект Нателы Тецошвили; автор фото: Алексей Торозеров
Проект Нателы Тецошвили; автор фото: Алексей Торозеров

---------------
Оцените интерьер в комментариях, а если материал понравился — не забудьте поставить лайк👍

🖤divan.ru — не только блог про интерьеры, но и производитель доступной дизайнерской мебели. Ищите новые идеи и переходите на сайт, чтобы воплотить их в жизнь.

*Цены актуальны на момент публикации статьи