Добавить в корзинуПозвонить
Найти в Дзене
Журнал PR FLAT

ЖК в тихом центре Екатеринбурга: самый ожидаемый старт продаж во Втузгородке 2024

ЖК Отдельный, дом 5 расположен в районе пересечения улиц ул. Малышева - ул. Гагарина - ул. Мира в микрорайоне Втузгородок в Екатеринбурге. Старт бронирования и реализации квартир ожидается в ближайшее время. Несколько слов об уникальном расположении ЖК: в шаговой доступности - УрФУ, 3 школы, 3 детских сада, 2 клиники и детская поликлиника № 13, множество супермаркетов, кафе и ресторанов, салонов и других объектов социальной и общественной инфраструктуры. Отдельно стоит отметить, что Втузгородок может похвастаться своими зелеными зонами и парками. Центр Екатеринбурга - в 15 минутах езды. ЖК Отдельный, дом 5 в Екатеринбурге Новый ЖК комфорт-класса в тихом центре Отдельный, дом 5 - это семейные резиденции с такими удобствами, как дизайнерское лобби, подземный паркинг и отдельные кладовые. В доме запроектирован приватный благоустроенный двор. Квартиры в ЖК Отдельный, дом 5: планировки и цены Оценочная стоимость квартир в новом ЖК на старте продаж составит 170 000 - 220 000 руб. за квадратн
Оглавление

ЖК Отдельный, дом 5 расположен в районе пересечения улиц ул. Малышева - ул. Гагарина - ул. Мира в микрорайоне Втузгородок в Екатеринбурге. Старт бронирования и реализации квартир ожидается в ближайшее время.

Новый ЖК Отдельный, дом 5
Новый ЖК Отдельный, дом 5

Несколько слов об уникальном расположении ЖК: в шаговой доступности - УрФУ, 3 школы, 3 детских сада, 2 клиники и детская поликлиника № 13, множество супермаркетов, кафе и ресторанов, салонов и других объектов социальной и общественной инфраструктуры. Отдельно стоит отметить, что Втузгородок может похвастаться своими зелеными зонами и парками. Центр Екатеринбурга - в 15 минутах езды.

ЖК Отдельный, дом 5 в Екатеринбурге

Новый ЖК комфорт-класса в тихом центре Отдельный, дом 5 - это семейные резиденции с такими удобствами, как дизайнерское лобби, подземный паркинг и отдельные кладовые. В доме запроектирован приватный благоустроенный двор.

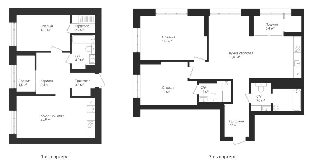
Квартиры в ЖК Отдельный, дом 5: планировки и цены

Оценочная стоимость квартир в новом ЖК на старте продаж составит 170 000 - 220 000 руб. за квадратный метр.

В новостройке не будет студий, только функциональные просторные планировки:

1-комнатные квартиры: от 58 до 58,4 квадратных метров, 
2-комнатные квартиры: от 88 до 89,5 квадратных метров
1-комнатные квартиры: от 58 до 58,4 квадратных метров, 2-комнатные квартиры: от 88 до 89,5 квадратных метров

3-комнатные квартиры: от 90,7 до 146,9 квадратных метров, 
лоты со свободной планировкой: от 90,4 до 128,7 квадратных метров
3-комнатные квартиры: от 90,7 до 146,9 квадратных метров, лоты со свободной планировкой: от 90,4 до 128,7 квадратных метров

Кроме того, запроектированы эксклюзивные резиденции с террасами.

Высота потолков - 3 м. Жилье будет передаваться владельцам с отделкой «под чистовую» или «под ключ», при выборе данной опции покупателем.

Узнать первым о старте продаж квартир в ЖК Отдельный, дом 5 | Для включения в шорт-лист, оставьте своё ФИО, контактный номер телефона и желаемый метраж квартиры