Найти в Дзене
Филдс

Клиент нашелся сразу же: как оформили крохотную однушку 25 м² для сдачи со спальней и гардеробной

Дизайнер Евгения Акимова оформила крохотную однушку 25 м² для сдачи в аренду. В квартире пытались создать атмосферу лета, отдыха, свежего воздуха, прибрежного кафе с ароматом свежих булочек. Сейчас в ней уже поселилась девушка, тестировщик по профессии, которая отметила, что жилье будто бы проектировалось под нее. Планировка до и после Комнату и кухню разделяет несущая стена, сносить которую нельзя. Поэтому мокрую зону отставили там, где ее запланировал застройщик. Частью площади комнаты пожертвовали, чтобы обустроить гардеробную. Санузел немного увеличили за счет прихожей. Лоджию использовали для обустройства лаунж-зоны. Кухня Компактный гарнитур построили линейно. Длина рабочей зоны — всего 160 см. Несмотря на это, в одну из нижних секций даже удалось уместить посудомоечную машину. Фасады без ручек не создают излишнего визуального шума. Обеденную группу зонировали цветом. Диван и столик расположили на фоне арочного цветного портала. Такое решение выгодно выделяет квартиру на фоне д
Оглавление

Дизайнер Евгения Акимова оформила крохотную однушку 25 м² для сдачи в аренду. В квартире пытались создать атмосферу лета, отдыха, свежего воздуха, прибрежного кафе с ароматом свежих булочек. Сейчас в ней уже поселилась девушка, тестировщик по профессии, которая отметила, что жилье будто бы проектировалось под нее.

  • Общая площадь: 25 м² (без учета лоджии)
  • Место: Москва
  • Тип дома: ЖК «Символ»
  • Количество комнат: 1
  • Высота потолка: 2,9 м
  • Бюджет: 2 млн рублей
  • Кто здесь живет: сдается в аренду
  • Фото: Ксения Халилюлян

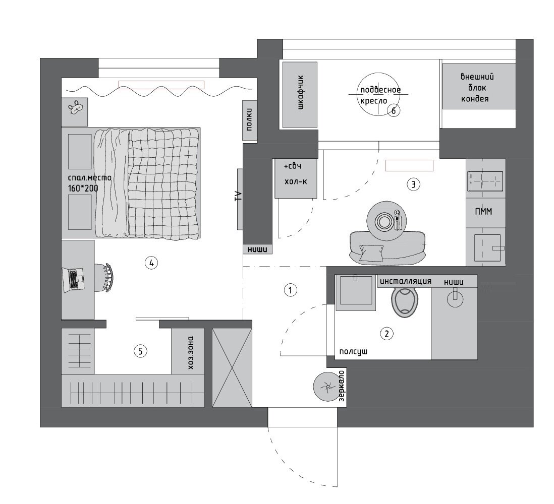
Планировка до и после

Комнату и кухню разделяет несущая стена, сносить которую нельзя. Поэтому мокрую зону отставили там, где ее запланировал застройщик. Частью площади комнаты пожертвовали, чтобы обустроить гардеробную. Санузел немного увеличили за счет прихожей. Лоджию использовали для обустройства лаунж-зоны.

Кухня

Компактный гарнитур построили линейно. Длина рабочей зоны — всего 160 см. Несмотря на это, в одну из нижних секций даже удалось уместить посудомоечную машину. Фасады без ручек не создают излишнего визуального шума.

Обеденную группу зонировали цветом. Диван и столик расположили на фоне арочного цветного портала. Такое решение выгодно выделяет квартиру на фоне другого арендного жилья. Благодаря французскому остеклению из-за стола хорошо просматриваются балкон и пейзаж за окном.

Спальня

В единственной комнате обустроили спальню. С одной стороны кровати смонтировали подвесную консоль, а с другой поставили рабочий стол, чтобы квартиросъемщик при необходимости мог работать из дома. Его дополнили акцентным зеленым креслом, которое перекликается с декоративной зеленью.

Для оформления ТВ-зоны в изножье использовали тот же прием с цветной аркой, что и в кухне. А поддержали его принтом на подушках.

Вход в гардеробную скрыли за купейной дверью. Ее зеркальное полотно помогло визуально расширить пространство.

-6

Прихожая

В отделке прихожей задействовали ту же краску приглушенного розового оттенка, которую применили и для оформления акцентных зон в кухне и спальне. В ходе ремонта запланировали нишу для встроенного шкафа, а в углублении напротив повесили зеркало и поставили пуф.

-7

Во всю толщину несущей стены спроектировали нишу. Она помогает отвлечь внимание от габаритов перегородки.

-8

Санузел

В санузле скомбинировали три вида плитки: светлую крупного формата, бледно-зеленую — мелкого, а также керамику с геометрическим орнаментом на полу. Практически всю сантехнику подобрали в темных тонах, исключение составила лишь раковина, под которой скрыли стиральную машину.

Интересные мнения в комментариях приветствуются. Если материал понравился — ставь лайк!

🖤 Филдс — это не только блог на Дзене, но и магазин дизайнерских предметов интерьера. Заходите на сайт, чтобы увидеть мебель, которую дизайнеры выбирают для своих проектов.