Добавить в корзинуПозвонить
Найти в Дзене
Кульман

Как сохранить чертеж Autocad в растровое изображение.

Чтобы сохранить чертеж в Autocad растровое изображение, необходимо набрать команду: 1. JPGOUT - сохранит в формате jpg 2. TIFOUT - сохранит в формате tiff 3. PNGOUT - сохранит в формате png 4. BMPOUT - сохранит в формате bmp Вот скриншот чертежа в Autocad. Посмотрим, что получится при сохранении в разные форматы. Формат jpg, размер файла 81кб: Формат png, размер файла 42кб: Формат bmp, размер файла 3107кб: Формат tiff, размер файла 4142кб: *К сожалению Дзен не дает загрузить картинку в Tiff формате, но четко видно, что происходит с текстом. Отсюда можно сделать вывод, что качество везде одинаковое. Разница только в размере файла. И еще один момент. Экспорт делается в Модели листа. А теперь посмотрим, что будет в Видовом окне. Видим, что все линии из модели листа пропали, а выноски и размеры проставленные в видовом окне остались. Как видим такой способ нам не подходит!!! Что бы получить качественную картинку используем следующий способ: Выбираем принтер Publish to WEB JPG Выбираем каче

Чтобы сохранить чертеж в Autocad растровое изображение, необходимо набрать команду:

1. JPGOUT - сохранит в формате jpg

2. TIFOUT - сохранит в формате tiff

3. PNGOUT - сохранит в формате png

4. BMPOUT - сохранит в формате bmp

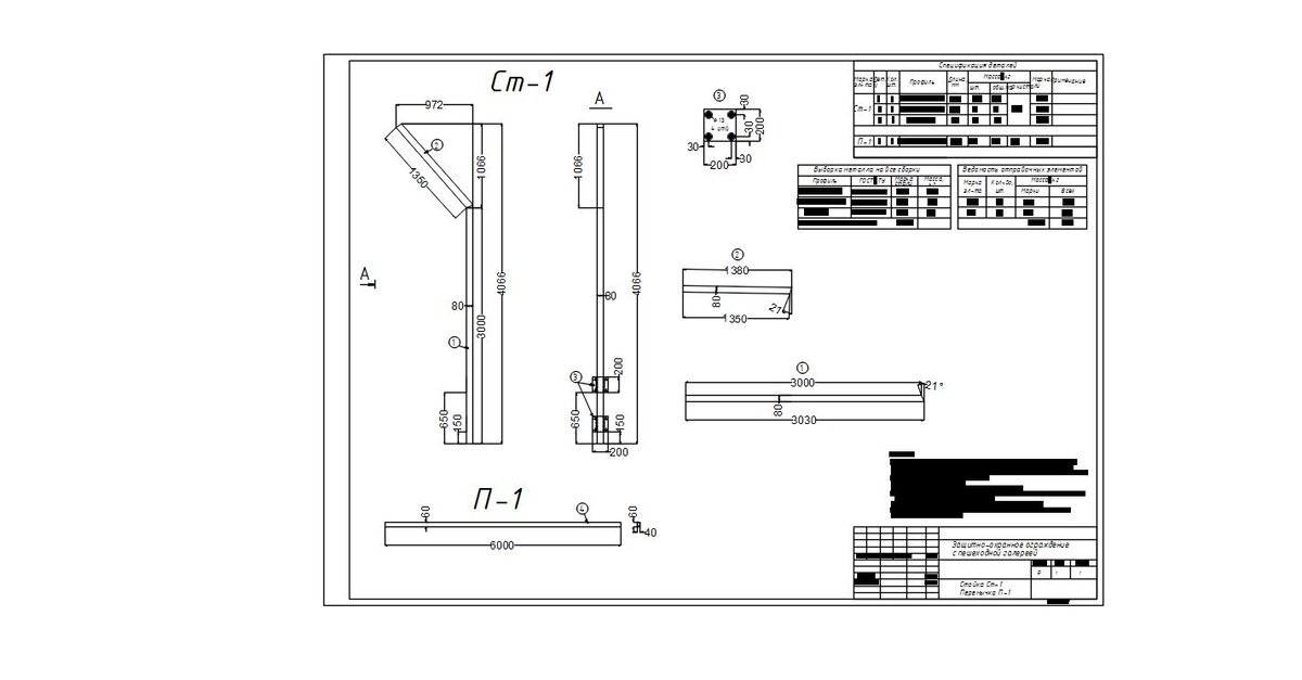
Вот скриншот чертежа в Autocad. Посмотрим, что получится при сохранении в разные форматы.

Скриншот
Скриншот

Формат jpg, размер файла 81кб:

Jpg формат, 81кб
Jpg формат, 81кб

Формат png, размер файла 42кб:

Png формат, 42кб
Png формат, 42кб

Формат bmp, размер файла 3107кб:

Bmp формат, 3107кб
Bmp формат, 3107кб

Формат tiff, размер файла 4142кб:

*К сожалению Дзен не дает загрузить картинку в Tiff формате, но четко видно, что происходит с текстом.
Tiff формат, 4142кб
Tiff формат, 4142кб

Отсюда можно сделать вывод, что качество везде одинаковое. Разница только в размере файла.

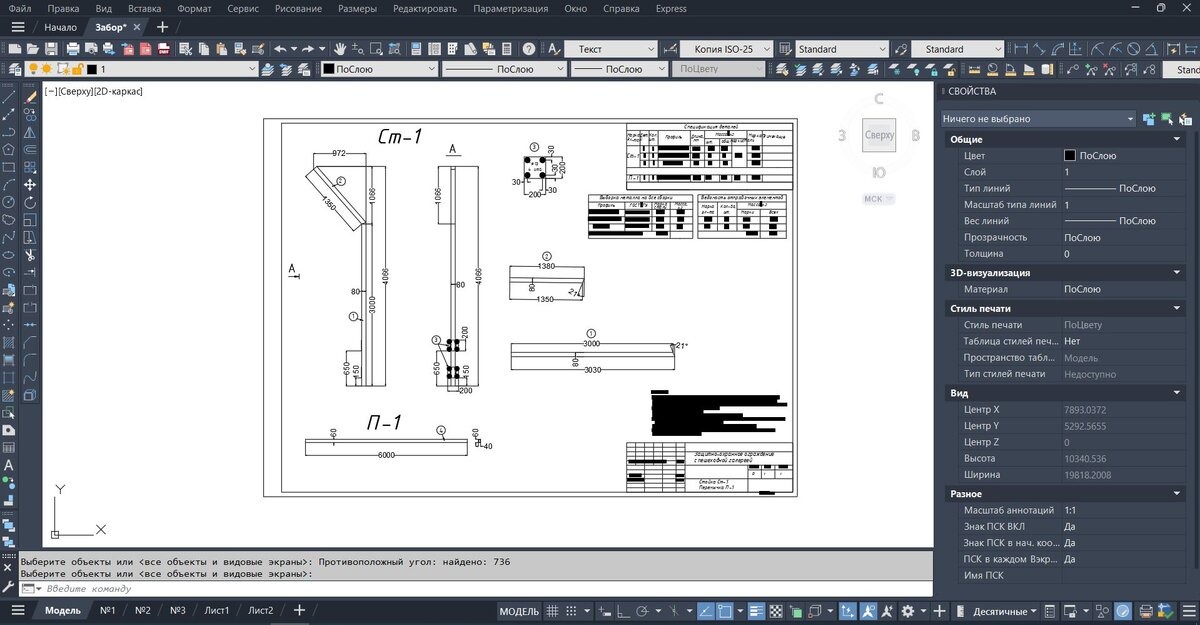
И еще один момент. Экспорт делается в Модели листа. А теперь посмотрим, что будет в Видовом окне.

Экспорт из видового окна.
Экспорт из видового окна.

Видим, что все линии из модели листа пропали, а выноски и размеры проставленные в видовом окне остались.

Как видим такой способ нам не подходит!!!

Что бы получить качественную картинку используем следующий способ:

Выбираем принтер Publish to WEB JPG

Выбираем качество максимальное (для примера я взял 8К 7680х4320пикс)

Итого получаем:

Publish to WEB JPG
Publish to WEB JPG

Увеличил для наглядности часть чертежа:

-8

Другое дело. Текст виден, линии более ровные и размер соответствующий 1371кб.

Как сохранить чертеж Autocad в растровое изображение.
Как сохранить чертеж Autocad в растровое изображение.

Конец.